查看完整案例

收藏

下载
本项目位于杭州市萧山区。房子是偏江南中式的合院,业主是一位具有文化修养的企业CEO,一家三口,追求一种既能满足现代舒适生活需求,又能安顿身心的精神居所。
对于此项目的核心设计理念是:“隐逸于市,回归本心。”摒弃繁复的装饰,通过空间、光影与材质的对话,营造出一种宁静、质朴,充满诗意的栖居体验。让室内与自然共鸣,与内心对话。
整个房子改造完大概在650平方,地下利用层高优势做了二层,最大限度的充分利用空间。原室内地下层没有采光,是原空间最大的问题。我们通过花园下挖,做了叠层的下沉式花园,让负二层有了良好的景观和采光,同时让负一层的客房拥有一个室外露台,能够走出室外感受四季的变化。在室内我们也通过不同功能的需求做一些错层的处理,让居家体验在长久待的地方有足够的层高。
一楼和二楼采用了空间叙事的方式,“起承转合”的情感序列。
玄关作为“起”的一个过渡空间。一侧的采光天井让光影和绿色形成一幅活的框景,让人一入门便卸下尘世喧嚣。玄关的转折后便进入了豁然开朗的公共区域,客厅、餐厅、厨房一体化的设计。这里承载了家庭生活的核心,朝南近10米宽的大落地玻璃窗,让整个花园的景色映入眼帘。
一楼还设计了一个独立的中餐厅。通过中餐厅,可以走进花园的一个L型风雨连廊,让视觉有一个延伸,形成一个光影画廊,同时也让就餐有一个非常愉悦的心情。连接公共区与私密区的走廊和楼梯,贯穿了客厅和餐厅,使整个空间更加灵动和自由。
二楼则以“合”的设计手法,主卧拥有最佳的观景视角,空间氛围静谧、舒缓。小孩房则位于东南面,有自己独立的书房,同时也是一家人学习交流的情感场所。
整体室内采用了大地色系为基调,如米白、浅灰、橡木色。局部点缀深色木色,营造沉稳、温暖的氛围。材质也是橡木地板,艺术涂料,天然石材台面相互搭配。强调材质的天然肌理与触感,传递出温润、质朴的美学感受。
△杨钧/露丹
我们通过精心计算的开窗,采光井,下沉式的花园,将自然光引入室内。光线在不同时间,不同季节,于墙面、地面投射出丰富多变的光影效果,成为空间中动态的有生命的装饰。庭院作为建筑的呼吸中心,尽量让室内外界限物理性消隐,从而使室内空间与庭院融为一体,实现真正的“生活在自然中”。另外,在智能家居与可持性设计的结合中,也是考虑以人为本。采用五恒系统、智能系统来提升居住的便捷性与舒适度。
《江南院》合院,通过现代设计语言,重新诠释了东方居住美学,让建筑、空间、人与自然和谐共生。
△负二层平面图
△负一层平面图
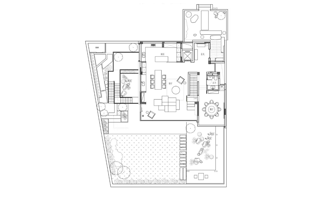
△一层平面图
△二层平面图
项目名称|江南院
项目地址|中国 杭州
项目面积|650㎡
完工时间|2025年3月
设计单位|杨钧设计事务所
设计内容|全案设计
主案设计|杨钧
软装设计|露丹
设计团队|潘思雨
空间摄影|叶松·翰墨视觉
施工单位|蓝匠精造
部分家具|Linepark家居
木作品牌|厘芈木作
智能灯光|摩根智能
岩板品牌|意东荟集合店,LAMINAM
艺术涂料|意大利萨铂
暖通机电|可瑞楼宇科技
地板品牌|米罗尼地板
门窗品牌|欧的门窗
客服
消息
收藏
下载
最近









































































