查看完整案例

收藏

下载
一百年的传承与坚守
从民国到现在,从上海到昆明
变迁的是城市的步伐和时空的记忆
不变的是对传统技艺的传承,和用心做饼的决心
入滇八十载,执着于滇式糕点的研发与制作
百年变迭与变迁
缔造了中国滇饼行业的精彩
孟萨空间设计用心为昆明冠生园
全新打造新品牌,新空间形象
助力
昆明冠生园在新百年的起点
执念
本领、本钱、本心
再续新的精彩
效果图
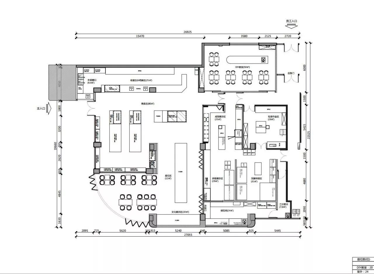
平面图
前场
后场
项目名:昆明冠生园
类型:现烤烘焙店
地址:昆明市滇池路47-49号
面积:前场317㎡+后场578
㎡
设计单位:孟萨空间设计(上海)有限公司
云南,一个多民族的美丽地方,文化多元而包容。
这次的店面设计也并不单纯是一家饼店的设计,我们更希望她能成为一个城市文化的缩影。
竣工照片
其实冠生园第一稿的外立面设计是另一个样子,但因种种因素被枪毙了,这一版设计着重强调了老字号的标识,做了一个弧形的外建筑结构,通体黑色底板,使品牌名称及标识容易被看到,辨识度更高。
昆明冠生园作为滇饼行业的领袖,百年传承的中式传统糕饼为核心产品,因此入口处两组中岛柜以陈列中式糕饼为主,边柜辅以传统鲜花饼等中式包装产品,形成了浓厚的传统糕饼新式销售氛围。设计师用了2017个密集阵列的玻璃装饰吊灯,贯穿了整个售卖区域,2017个灯又象征着冠生园新百年的开始。
进入店内入口处左侧为旗舰店的水吧及收银区域,设计师为旗舰店打造了一个长近10米的大体量水吧台,水磨石和木质更容易体现品牌的年代感,前吧台,后吧台墙面以及地面用一个水磨石材质来表现,空间整体性表现更是没话说。
入口选购完中点,再往里就是新式西点展示区,两个中岛柜以足够西式烘焙产品的展示 ,在空间布局中其售卖独立连贯,种类多样,属性区分强等特点,更容易让客户在下次进店的时候轻松便捷的找到心仪的产品。当然这么大的旗舰店自然少不了客座休息区,我们把这个区域放到了店铺的最里面,与冠生园品牌文化展示区放在了一起,这样的好处是可以让顾客不用在坐下来啃面包的时候,被其他选购的顾客打扰,小孟我每次看店的时候,坐下来啃面包被其他顾客看着就总觉得好尴尬
。
在我们把品牌传承下来的图形,LOGO,应用到货柜及墙面上,即有现代时尚的空间设计理念又让人感受到传统中式门店的气质。由于在做操作间里面的设计时,突然发现开敞式的操作间跨度太大了,里面的设备及墙面干扰了售卖区的设计氛围,最终设计了几个可折叠的装饰移门,既可以半开和居中装饰,又可以移到一边做全开敞通透展示,让传统技法的绚丽和现代工艺的精致都完美的展现在顾客面前,这样的设计手法,是否会打动您呢。
我们希望
昆明冠生园旗舰店内部空间的营造,并不单纯是产品的售卖,更要让顾客感受到传承了百年的品牌文化所拥有的内涵,同时我们也把百年间烘焙人使用过的各种器具在这里进行了展示。
记忆的表现,并不单是一种老旧的存在;
它可以是一种习惯,一种生活方式,甚至是一种文化符号;
当老的灵魂,注入到新的身躯,
它便有了另一种生命的绽放。
昆明冠生园也是如此,站在新百年的起点上,注入新的时代元素,让百年老店焕发新的光彩,重新起程。
近期分享案例
孟萨设计|香椒泼辣酸菜鱼,不吃辣的人生和咸鱼有什么区别
孟萨设计|法兰卡1876黄河银座店,因为刚好遇见你,来自8年的陪伴
孟萨设计|滨州浓情法兰卡,源自1876年的等待,让弥漫在巴黎的麦香飘洋而来!
孟萨设计|一颗匠心、一杯好茶,在比达遇见美好
孟萨设计|乐天,点一杯饮品过一个惬意的午后!
客服
消息
收藏
下载
最近




























