查看完整案例

收藏

下载
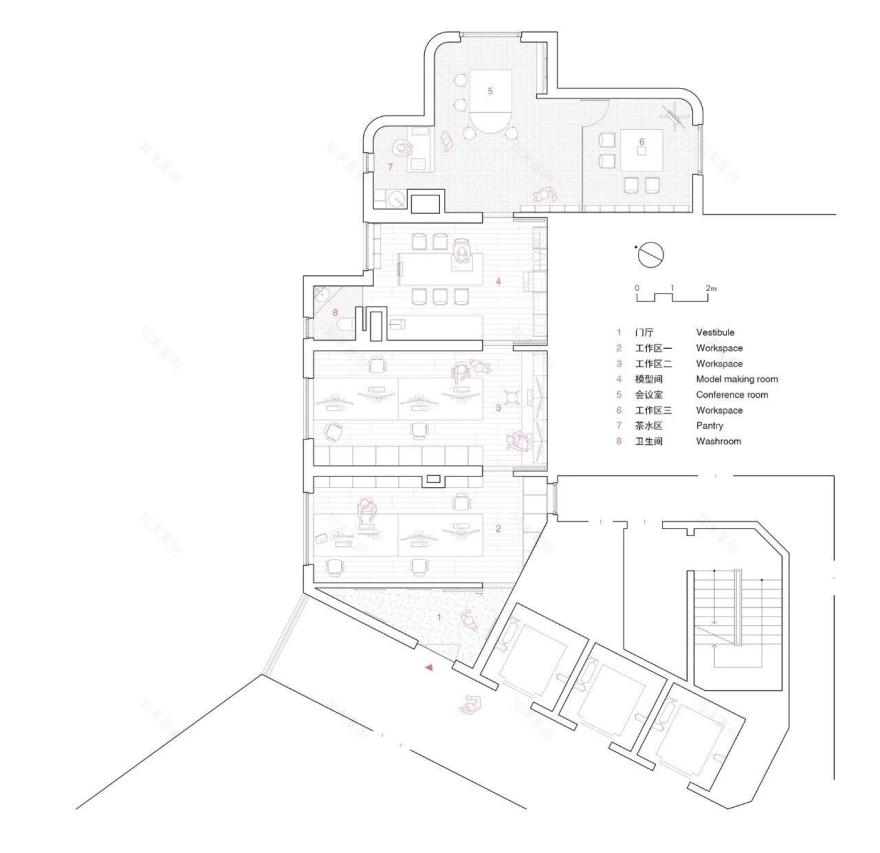
项目信息项目名称:米凹办公室
设计单位:米凹工作室
项目地点:上海市徐汇区
室内面积:110平方米
建成时间:2024年
项目负责:周维
设计团队:许曦文、韦天南、吴雪婷、叶葭焕、张冯韬、吴砚雯(实习)图片摄影:梁山
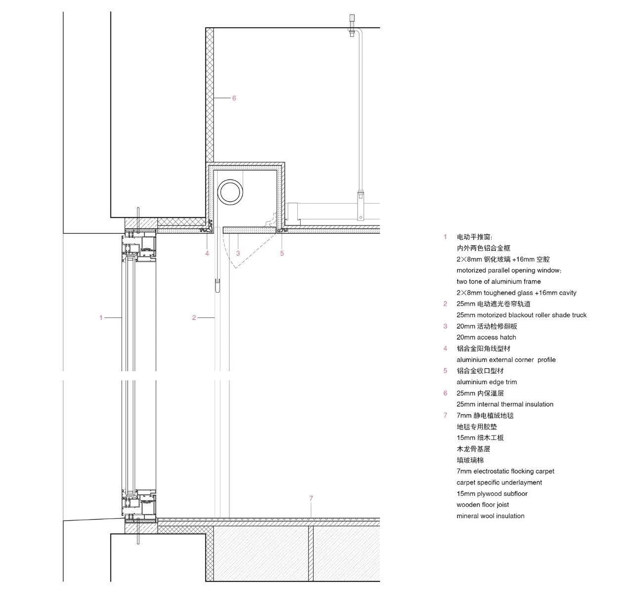
机电顾问:上海三匠机电科技有限公司
照明顾问:米绅照明设计(上海)有限公司
施工单位:禾邑精造
品牌支持:CIVRO,JUNG,RHEINZINK,Rise,KOKUYO,SPSS,Artek,DAIKEN,TOTO,SilentGliss, ege,raumplus,Benjamin Moore,迈洁石材
客服
消息
收藏
下载
最近

































