查看完整案例

收藏

下载
.
.
.
西 瑞 尔 设 计
如果你是深圳土著
那么这片土地一定承载着你成长的记忆
如果你是深漂一族
那么也可能对这片土地有着不一样的期待
城中村“握手楼”之间距离很近
但是却总缺一个握手的理由
1
项目信息 I Project Information
项目地址:深圳市宝安区
项目名称:福永 · 酒店式公寓设计
风格定位:现代
设计单位:西瑞尔设计
原始结构图↓
原始照片↓
2
航寓起源 I origin
西瑞尔在设计之初思考
在这个大社会中
每个人都有自己的定位,存在于服务于被服务之间
所以
航寓--为您提供“头等舱”VIP服务
打造美好舒适的居住地
让“服务人员”享受更贴心的服务
3
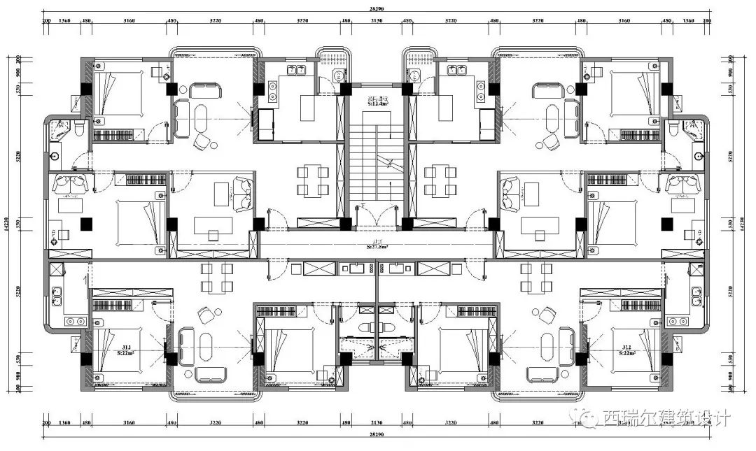
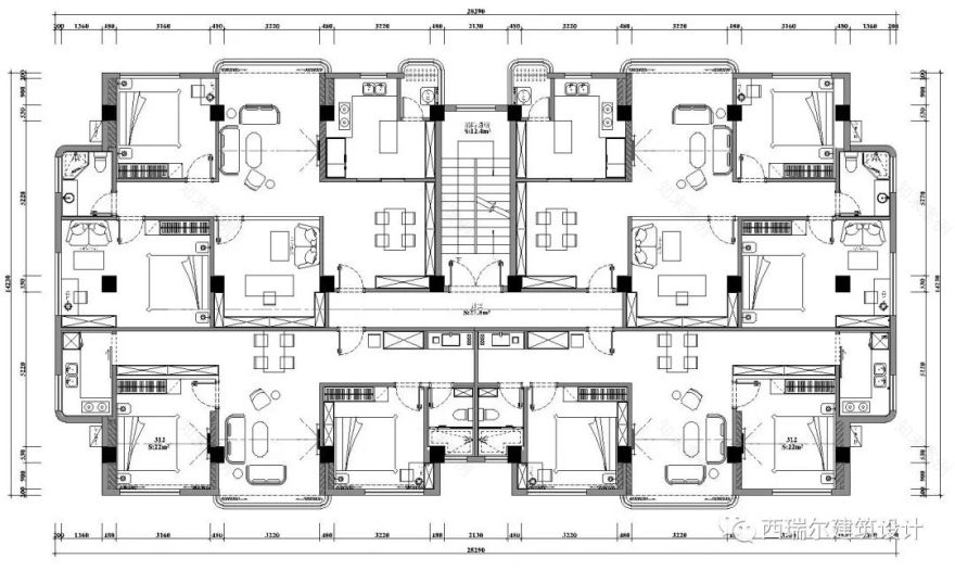
平面方案 I Planar Scheme
「三层平面图」
「四层平面图」
「五-七层平面图」
「天台花园平面图」
平面方案对比
改造前平面方案 改造后平面方案
因为客户群体的定位,相比起原本住所,航寓将每层只有四套住房的方案,增加为每层在15套以上。
以模拟家庭的模式,航寓的每一层都有中央休闲客厅,共享洗衣房以及共享厨房
增加邻里之间的互动,拉近人与人之间的距离
并且每个房间都拥有独立卫生间。
改造前平面方案 改造后平面方案
航寓六层是专门为女性准备的
只招租女性
让租户享受更贴心的服务。
改造前平面方案 改造后平面方案
顶楼的花园可提供健身、茶饮、威士忌酒吧等服务
还可提供举home party的场地
除此之外楼顶还有一个巨大的可晾晒衣物的场地
租户在航寓内就可尽情的享受生活。
改造前后对比
改造前实景
↑
改造后实景↑
在航寓的外观上,我们也是经过了精心的设计
把每个房间都划分为一个单元,用跳跃的色彩去填充
白天航寓是缤纷的
到了夜晚
加上灯光的承托更是熠熠生辉
成为这个村子的一道风景
4
设计理念 I Design Concept
据统计
在深圳市宝安区
是深圳航空人员群体聚集最多的区域
这一次西瑞尔设计为航寓打造一个专属的酒店公寓
不仅仅是居住空间上的革新
我们希望改变更多
在色彩上
以天之蓝为主
搭配各种与航空有关的颜色
给人新鲜,清雅,青春洋溢的感觉
在内部我们用安静自然的色彩去配搭住户的生活
其中一层又有可爱而优美的感觉,楚楚动人
5
设计方案 I Design Scheme
「公寓外立面」
「房间1实景图」
单身公寓
简约的设计
让生活更有品质
「房间2实景图」
一室一厅的房型
可供给家庭使用
「房间3实景图」
六层女生房
打造温暖舒适的氛围
小小的一楼民房,代表着什么?几代人的传承。
虽然深圳是一个历史文化不悠久的地方,
虽然深圳是一个暴发户超多的地方。但不影响我们对来深圳建设者的感谢,感谢为深圳出过的每一份力,有了你们才有现在的繁华。
为此我们把住户居住的环境设计出最优的品质来回报你们。
客服
消息
收藏
下载
最近
































