查看完整案例

收藏

下载
live the life you love .love the life you live
《
Simple Love
》
将所有细腻平行于一个空间
是过去 是现在 是未来
不露锋芒
项目地址 | 居之安小区
项目面积 | 80㎡
设计风格 | 北欧休闲
设计主创 | 邹志文
软装陈列 | 京点团队
设计单位 | 京点设计
项目摄影 | 郎朗
软装支持 | 北欧静谧
前言:原木色,一种最本质的美感,朴实无华,自然沉稳。看似简单,实质比金碧辉煌更有生活气息。柔软、刚硬、温暖、冷冰,让人从感官和精神上感受着空间建筑的情感表达。
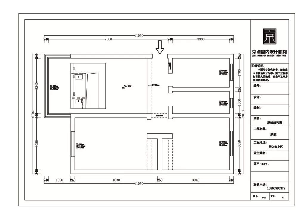
原始结构图
▼
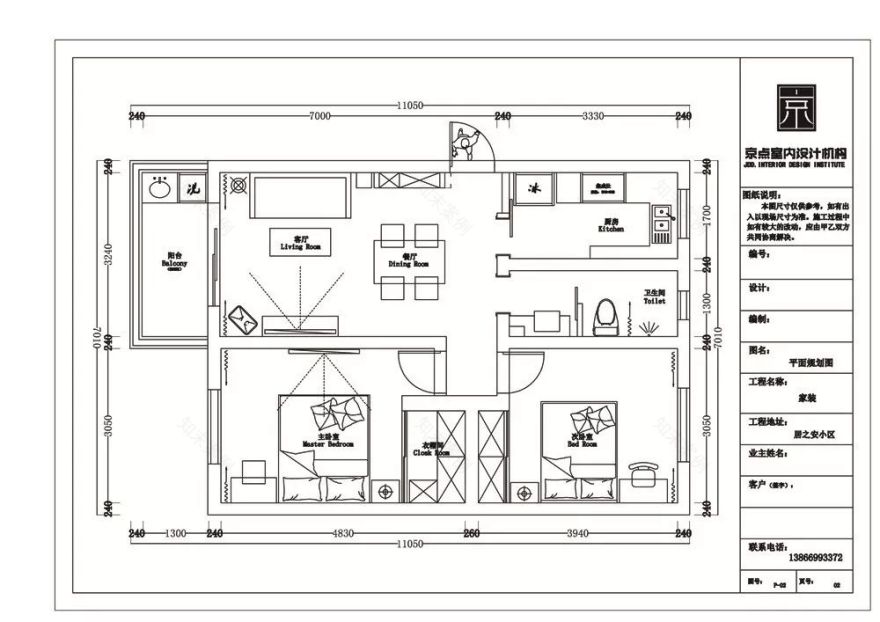
平面规划图
▼
本案是一套老房翻新案例,坐落于芜湖市二街居之安小区。
业主喜欢无拘无束的生活状态,闲暇时刻,他们喜欢用相机记录下走过的每一座城市。自然的,会将记忆中最美的样子唤醒。
客厅改造前
▼
客厅改造后
▼
主卧改造前
▼
主卧改造后
▼
次卧改造前
▼
次卧改造后
▼
厨房改造前
▼
厨房 改造后
▼
卫生间改造前
▼
卫生间改造后
▼
拍摄花絮
▼
The End
遇见京点 . 真正“
0
”操心
芜湖原创室内设计品牌
Add:芜湖市镜湖区绿地新都会B座622室
13866993372
▼
客服
消息
收藏
下载
最近



























