查看完整案例

收藏

下载
中装美艺”
,一键免费关注本账号
C
o
l
o
r
/
大师教你学色彩
多彩风格与艺术品唤醒空间活力
citizenM已入驻上海最具潜力的闵行区虹桥商业区。Concrete负责新建成的拥有303间客房citizenM酒店的室内设计。citizenM上海虹桥店是该品牌在亚洲的第二家门店(第一家位于台北北门)也是citizenM,Shun Tak(信德集团),China Resources(华润集团)与Concrete的第二次合作。citizenM是紫藤路地铁站大规模开发项目的一部分,正在建设的建筑有办公楼、酒店和MixC购物中心。项目位于上海西部中环路与外环路之间,靠近古北区,这一地区又被称为韩国城。
citizenM has landed in one of the most up-and-coming business areas of Shanghai: Hongqiao, in the Minhang District. Concrete designed the interior of the freshly built 303-room citizenM hotel. It’s the brand’s second location in Asia (after Taipei North Gate). It is also a second collaboration between citizenM, Shun Tak, China Resources with the creative direction by Concrete. citizenM is part of a larger area development at the Ziteng road metro station where offices, hotel and the MixC shopping mall are being build. The project is located in the west part of Shanghai between the Middle and Outer ring road near the Gubei district also known as Koreatown.
▼
citizenM酒店内部空间概
overview of the citizenM
酒店公共空间设计的目标是成为客人和周围办公人员可以休闲的地方,除了是为酒店客人塑造的一个充满活力的大厅也是这个新区域所有人员的活动空间。酒店二层一个面积较大的societyM区域可以让人们在这里坐下来工作。公共空间有两个入口:一个正式入口和一个非正式入口。正式入口连接着出租车停靠处。从外部进入citizenM,人们立刻就能看到这里典型的橱柜和多彩风格与艺术的空间。在前台上空有一条游动的发光巨龙。从这个酒店的核心空间,人们能够对citizen呈现的一切一览无余:collectionM,一座连接到societyM的标志性楼梯,会客区域和中央吧台。非正式入口位于公共空间的前端,毗邻一个露台和一面从外部一直延伸到室内的艺术墙。露台与配备有乒乓球桌、秋千椅和座椅的室内空间形成联系,从内到外展现出citizenM的活力。
▼
公共空间有一个正式入口和一个非正式入口,
the pubic space has two entrances;
a formal and an informal entrance
The design for the public space is a destination in itself in order to be the place to hang out for hotel guest and the users of surrounding offices alike. It’s meant to be, in addition to the usual lively lobby for our guests, a place for all participants of the new area. A large societyM on the first floor makes the hotel a place for people to sit down and work.The pubic space has two entrances; a formal and an informal entrance. The formal entrance is linked to the drop-off for cabs. After entry you step into the world of citizenM with the typical cabinets filled with colorful styling and art. Above the check-in there is a big light-giving dragon floating over your head. From this point, the heart of the hotel, you have an overview of everything that citizen has to offer: collectionM, an iconic staircase that takes you to the societyM, the living rooms and the centrally located bar. The informal entrance is at the head of the public space with an adjoining terrace and an art wall continuing from the outside to the inside. The terrace forms the connection with the indoor space in which ping-pong tables, a swing bench and seats draw the liveliness of citizenM from the inside to the outside.
▼
正式入口处的大厅空间和通往societyM的标志性楼梯,
the formal entrance area and the iconic stairs leading to societyM
▼
前台上空漂浮的巨龙
the big light-giving dragon floating over check-in area
▼
室内橱柜及多彩的风格、艺术品
the typical cabinets filled with colorful styling and art
▼
会客区域
living rooms
吧台是公共空间的核心,一旁标志性的沙发区铺有锦鲤地毯,坐在上面仿佛是坐在中国传统池塘中一样。吧台两侧各有一个庭院,为内部房间和首层的公共空间提供光照。庭院是一个封闭空间,内部有红色树椅、家具和灯笼,这些都是citizenM特征的一部分。公共空间的入口和尽端空间由贯穿整个空间多彩艺术墙清晰地突显出来,艺术墙延伸到餐厅空间。
The bar is the heart of the public space. The adjacent iconic sofa has a koi carp carpet as if you are sitting in a Chinese pond. There are two courtyards on eithers sides of the bar that provide daylight to the internally located rooms and the public space on the ground floor. The courtyard is a closed off place with the red tree benches, furniture and lanterns that are now characteristic of citizenM. The beginning and end of the public space are clearly visible as they are marked by colorful art wall that runs through the entire length of the space, the wall includes the canteen.
▼
吧台空间和铺有锦鲤地毯的标志性沙发区
bar area and iconic sofa has a koi carp carpet
▼
延伸到餐厅的艺术墙
colorful art wall extends to the canteen
标志性的楼梯将人们从首层引入位于二层的societyM。这个空间包括7个会议室和一个休息区。环绕着会议室的走廊靠近内部庭院,外部露台可以看到地面层的露台和大厅。
The iconic stairs take you from the ground floor to societyM on the 1st floor. This space includes 7 meeting rooms and a breakout area. The corridor surrounding the meeting rooms adjoins the internal courtyard and an external terrace that has a view of the terrace and the lobby on the ground floor.
▼
靠近庭院的会议室与休息区
meeting rooms and a breakout area
near the courtyard richard powers for concrete
▼
会议室内部
meeting room
▼
客房
guest room
▼
首层平面
ground floor plan
▼
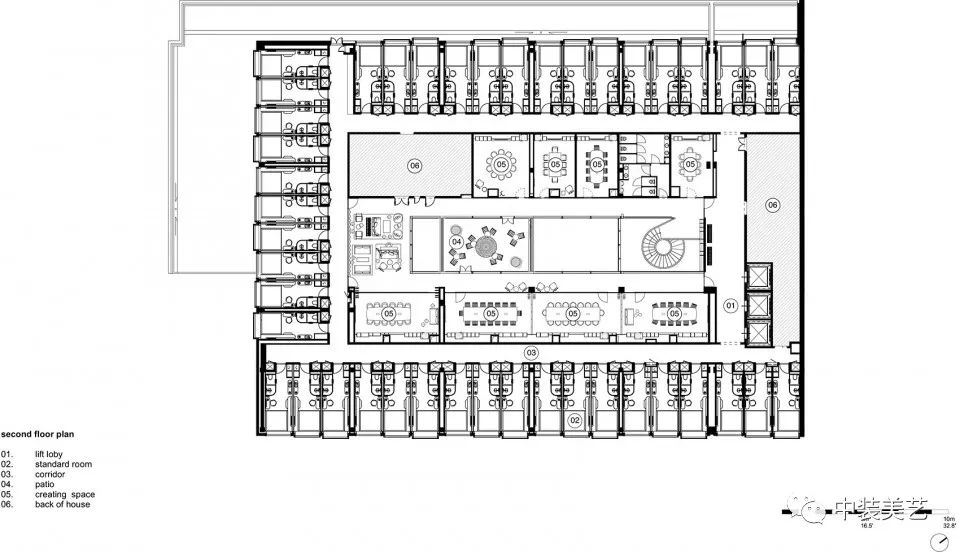
二层平面
second floor plan
▼
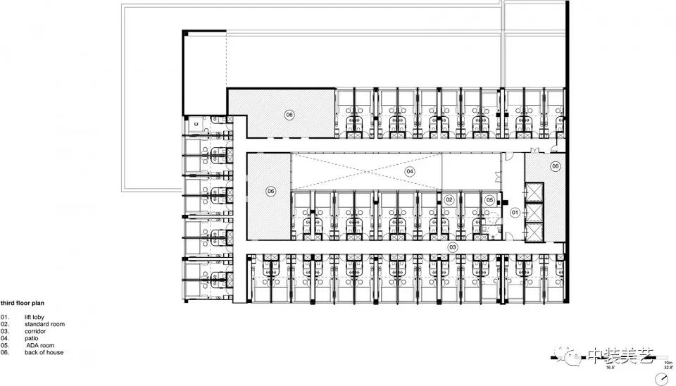
三层平面
third floor plan
▼
四层平面
fourth floor plan
Project:
citizenM Shanghai Hongqiao
【 编 后 寄 语 】
中装美艺软装教育
国内首屈一指的专业化软装设计教育黄埔军校
定向培养专业软装科班生
定期更新软装资讯文章、资料方案请关注。
有志于投入到软装设计事业中的朋友,
欢迎私信留言咨询学院专业软装设计课程。
—— 中装美艺软装教育基地实景——
更多的生活美学就来中装美艺Family
我们张开双臂带你开眼界长技能。
客服
消息
收藏
下载
最近




























