查看完整案例

收藏

下载
“邀请客人走进吧台”
汵奇咖啡
咖啡、咖啡师、咖啡馆,会形成一次整体的体验过程。这个过程在每个咖啡馆会有所不同,在汵奇咖啡是“邀请客人走进吧台”。
▲由街道看项目
▲外观
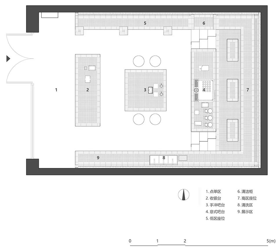
我们把这个临街的小空间作为一个大吧台来进行布局:整个咖啡馆就是一个开放的大吧台。点单台、手冲咖啡吧台和意式咖啡吧台三个模块在中轴线上排开,所有的客座都处于吧台区域的内部。顾客唯有走进吧台的领域才能落座。三个吧台都是可以环绕的,像家里厨房的岛台一样,这也就打破了吧台的“内”与“外”,“正面”与“背面”的区分。
▲室内空间概览
▲整个咖啡馆就是一个开放的大吧台
顾客在刚刚走进这个咖啡馆的时候会觉得布局有一点“陌生”。而一旦唤起了“到朋友家作客,在厨房的岛台旁边和主人一起边准备晚餐边聊天”的记忆之后,就会真正的放松下来。
▲由室内看街景
▲操作岛台旁客人和主人的互动
落座之后看到咖啡师在身边近距离的操作,准备一杯咖啡,之后转身端到其面前的时候,会自然的拉近主客之间的距离感。甚至餐具清洗的操作台也在座位的附近,就像在家里的厨房一样随意。
▲操作台营造出家里厨房一样的随意氛围
▲操作台区域细部
在靠近门口的一侧是可以“喝一杯就走”的座位,配置了随手放杯子的小桌,在手冲咖啡吧台两侧有近距离观看咖啡师滴滤操作的吧椅,而在最里侧的一排座位所在的地面升高了40公分,这就使客人坐下之后的视线与意式吧台的咖啡师齐平,方便长时间的“边喝边聊”。
▲座位区
这个“邀请客人走进吧台”的想法来自于汵奇咖啡的两位主人对经营的一些设想:服务于周边社区的熟客,为咖啡爱好者提供聚会的场地,不定期的举办杯测会和分享活动等等。
▲光线洒落在座位区,营造出惬意的休闲环境
白色瓷砖材料为汵奇咖啡带来了识别性。我们希望通过对瓷砖拼贴方式的设计减弱观看者对空间进行“风格化”归类的急迫感,转而关注材料的“趣味”。白色瓷砖由于它的经济性,在八九十年代城市建筑的外立面被广泛的使用,如今已经成为一种“有时代记忆的材料”。它的坚固性会带给人安全感。而在拼贴设计中,我们用长条形瓷砖做出“包边”,马赛克小瓷砖作为“芯材“,按照柔软的藤编家具的用材逻辑处理瓷砖这种坚硬的材料,使人产生”从未见过“却又”似曾相识“的印象。
▲白色瓷砖材料为汵奇咖啡带来了识别性
▲马赛克小瓷砖与白色长条砖的组合
场所和材料都是既熟悉又陌生的,而在这两端之间的感受,可以一边喝咖啡,一边玩味。
项目图纸
▲平面图
▲剖面图
▲收银台拼砖示意
▲拼砖节点图
(
如有侵权请联系后台删除)
客服
消息
收藏
下载
最近
























