查看完整案例

收藏

下载
咖啡品牌Largo开进老城区
40㎡老建筑成网红打卡地
青岛宁阳路,毗邻青岛火车站,是青岛德占时期最早开发的街区之一。宁阳路街区开启旧城更新。我们受到青岛本地的咖啡品牌Largo的邀请,对其中一处房屋进行改造设计。
▲宁阳路卫星地图
▲1915年宁阳路照片
▲原状模型照片
项目改造的场地位于宁阳路一栋百年德式住宅院落内,由三间大小不一的房屋组成,与德式住宅主体分离,大约建于50年代前后。三间房共计40平米,均为砖木结构。中间的单坡屋顶大房间面向街道,是由原住宅院墙的车行入口改成的“门脸房”,后面是与之相连的小房间。左边是平行于街道向内院开启双坡屋顶的房间,与其余两间并不相通。双坡屋顶的房间的一侧利用原住宅的石砌院墙作为墙体,上方屋顶由一个轻巧的钢拉杆屋架与两侧的山墙托起,形成了一个有趣的、如原型般的房屋剖面。
▲改造前内院
▲改造前外立面
布局的开始在于思考如何用新置入的功能将三间房进行连接。我们延续了中间大房间的原门脸作为主要出入口,将吧台设置在大房间的右侧,与街道垂直,同时也与小房间入口串联,小房间则用作储藏的仓库。在双坡屋顶房间与大房间的共墙中间新开门洞,形成与吧台垂直的动线。这样,双坡屋顶房间的等级便被强调,并作为主要的客座停留的空间。
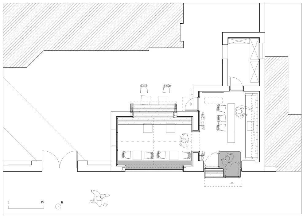
▲原建筑平面图
▲改造设计平面图
▲吧台区与入口
形态上,我们希望能尽量保持旧有空间感知的完整性,而不是简单地对空间进行分割。
▲双坡屋顶房间的天花和屋架
在双坡屋顶房间我们用黑色钢板作为室内的饰面,高度与门窗齐平。除了带来新的围合感,也整合了墙身的加固构造、管线以及灯光处理。中间钢拉杆屋架作为重要的空间特征被保留下来,同时在西面山墙上段铺装镜面亚克力来映射屋架及双坡天花,以增强空间延伸感和仪式感。
在双坡屋顶房间面向街道的一侧,我们保留并裸露了下半部分的石砌院墙,并在上半部分的砖墙高窗的基础上开横向的长窗,来加强与街道的联系。工字钢作为长窗过梁,与钢柱搭接,落在石砌院墙上,支撑上方的屋架的荷载。长窗分上下两个部分,在人站立的视线的高度,用空心玻璃砖吊挂砌筑,不至于从外面一览无余。下半部分用中空透明玻璃,制造室内和街道视角、视线的差异,当客人在窗边就坐时,才可清晰看见街道的行人。
▲双坡屋顶房间的围合与长窗
面向内院的一侧,把原有的房门改为折叠的推拉窗。下端设计成内外统一的长凳,并将折叠窗扇设置在墙体的外侧。当窗户开启时,除了可以把内院空间纳入到室内,同时,室内裸露的石砌院墙与德式住宅的立面石墙呼应,以显现出原德式住宅的院与宅的空间关系。
▲从内院看向双坡屋顶房间室内
▲改造后剖透视图
▲双坡屋顶房间
吧台是用实心的玻璃砖砌筑而成,并将其整合成一个量体,如“冰屋”般置入在旧有的房间内。玻璃砖墙与裸露的砖墙脱开,与旧建筑裸露的红砖形成等尺度下的新旧对照。留下的空隙既作为背景照明的呈现,也方便了吧台设备管线的铺设施工。入口,设置门斗作为进出门的保温措施,也能增加了进入店铺的空间感受的层次。门斗钢制雨棚下悬吊的坐凳,是行人及顾客歇脚、留影的位置。
▲入口斗室
▲斗室与吧台
在外部,玻璃长窗和带座椅的入口门斗被细心地嵌入在老建筑外墙上,连同上方的镜面金属球店招,以及后方老德式住宅、旧式里院,形成了时间与空间上的对话。
▲外部
(
如有侵权请联系后台删除)
客服
消息
收藏
下载
最近



























