查看完整案例

收藏

下载
"Tao gives birth to one, one gives birth to two, two gives birth to three, and three gives birth to all things." The Tao of material science is derived from all things, synthesized in heaven and earth, and created in the future. After deeply interpreting the project background, corporate culture and spirit, and exploring the architectural features and spatial height advantages, designer Fang Lei used "Tao gives birth to all things" as the design link, and through artistic construction and design logic coordination, emphasized the site, atmosphere, emotion, material and meaning, etc., to tell the interesting relationship between people and products, fields and natural environment.
“道生一,一生二,二生三,三生万物”,材料科学之道衍生于万物,合成于天地,创见于未来。设计师方磊在深入解读项目背景、企业文化和精神,挖掘建筑特征与空间层高优势后,以
“道生万物” 为设计链路,通过艺术化建构和设计逻辑统筹,强调场地、氛围、情感、材质及寓意等,讲述人与产品、场域及自然环境的趣味关系。
Daosheng Tianhe is a national high-tech enterprise integrating R&D, production, sales and service. Its core industry provides comprehensive solutions in the field of new energy. The Yishe team designed the exhibition hall from the perspectives of brand experience, product display, and aesthetic enjoyment. The space is divided and connected with a "box" structure, and the flexible exhibition lines and in-depth interactive forms are used to explore the infinite possibilities of material technology.
道生天合是一家集研发、生产、销售与服务为一体的国家级高新技术企业,其核心产业为新能源领域提供综合解决方案。壹舍团队操刀展厅设计,从品牌体验、产品陈列、美学享受等维度出发,以
“盒子” 结构划分与串联空间,借助灵动的展陈动线和深入的交互形式,探索材料科技的无限可能。
△概念草图
△
空间分析图
△
轴测图
Starting point of the visit: magnificent momentum and architectural aesthetics
探访起点:磅礴气势与建筑美学
The entrance is concise and elegant, with a large-scale cantilevered shape, geometric form and array, and well-arranged. The hollow openings show a light texture and delicate changes under the collision of light, shadow, color and composition. Large areas of red are laid out to enhance the contrast between objects and components. The booth grid has both display and decoration functions, extending from the wall and attached to the structure, injecting rich imagination and vitality.
入口处简练而大气,超大尺度悬挑造型搭配几何形式与阵列感,分割排列错落有致。镂空开口在光影、色彩和构图碰撞下,呈现轻盈质感与细腻变化。大片红色铺陈,增强物体与构件映衬,展台格架兼具展陈与装饰功能,从墙面延伸并附着结构,注入丰富想象与活力。
The design embodiment of "sustainability"
“可持续性” 的设计体现
Daoshengtianhe attaches great importance to "sustainability". In the design, a carbon-neutral landscape courtyard is enclosed inside the building, which increases the relationship between virtual and real structures and deepens the integration of space and nature.
加深空间与自然的融合。
△
剖面图
Display unit: Continuation, interaction and exploration of fun
展示单元:延续、交互与探索趣味
Each display unit continues and interacts with the building and the courtyard. Simple geometric forms are organically intertwined and superimposed, releasing the tension of the three-dimensional structure and exploring the fun contained therein. Under the free and open outline, the brand culture is subtly output. The second floor can see the whole picture, showing the company's R&D process and future development direction through the combination of dynamic and static and images.
每个展示单元与建筑、庭院相互延续与交互,简约几何形态有机交错叠加,释放立体结构张力,探索趣味蕴含其中。在自由开放的廓形下,品牌文化潜移默化输出,二楼可览全貌,通过动静态结合及影像展示企业研发过程与未来发展方向。
Covered bridge: connection, penetration and communication
廊桥:连接、贯通与交流
The corridor bridges set up according to local conditions connect the various "boxes" to achieve spatial connection and play a role of buffering and transition. The handrails are made of glass and metal grilles, blending the virtual and the real, emphasizing integrated communication.
因地制宜设置的廊桥连接各个 “盒子”,实现空间贯通,起到缓冲与过渡作用。扶手采用玻璃与金属格栅材质,虚实交融,强调一体交流。
Second floor central exhibition area: Application of the concept of "kaleidoscope"
二楼中心展区:“万花筒” 概念的运用
The central exhibition area on the second floor draws on the concept of "kaleidoscope", with a mirror on the top to break the sense of oppression and embedded in the light trough. The metal strips on the facade run through the whole structure, serving as suspension support and element continuation, making the function, details and vision perfectly integrated.
二楼中心展区提取 “万花筒” 概念,顶部镜面铺展,打破压抑感且嵌入灯槽。立面上金属条一体贯穿,作为悬吊支撑和元素延续,使功能、细节、视觉完美融合。
Inward-projecting balcony: interaction and connotation
内挑阳台:互动与内涵
An inward-projecting balcony is built on the second floor to achieve interaction between upstairs and downstairs, indoors and outdoors. It is a place where you can take a rest and think, and the meaning behind it can cleanse your heart.
二楼因势打造内挑阳台,实现楼上楼下、室内户外互动,可在此小憩思考,其背后涵义能涤荡内心。
Transportation hub: migratory routes and design features
交通枢纽:洄游动线与设计特色
A series of irregular openings guide the movement and sight lines, and are also part of the spatial modeling and structure, creating a sense of winding paths leading to a sudden enlightenment. The staircase boxes and step stacking are introduced with sculptural installation techniques to shape the migratory movement lines, which allude to the green circulation footprint of the enterprise. The fusion of regular blocks and irregular shapes, the interlacing of light and dark, the contrast of colors, and the degree of ups and downs interpret power and beauty, and the free transformation of spatial emotions. Although the tour route is enclosed and wrapped, it focuses on the sense of breathing and air permeability. The neat lines, embedded light strips and natural light and shadow add rhythmic beauty and become the guide for behavior, which is full of casual meaning.
一连串不规则开口既引导动线与视线,又是空间造型与结构的一部分,营造曲径通幽而后豁然开朗之感。以雕塑装置手法介入楼梯盒子和踏步叠级,塑造洄游动线,影射企业绿色循环足迹。规整块面与不规则造型融合,明暗交错、色泽对比、起伏有度,诠释力与美,空间情绪自由转换。参观路线虽围合包裹,但注重呼吸感与透气性,利落线条、内嵌灯带与自然光影增添韵律美并成为行径导向,富有随性意味。
"Heaven and earth coexist, and all things are one." The Shanghai Daosheng Tianhe Exhibition Hall follows the logic of the site, displays the aesthetics of architecture and exhibition in a dynamic way, implements the proposition of ecological environmental protection, echoes the corporate culture and brand concept, and is based on the balance between spatial expression and display. In the natural and artistic scenes, it empowers design to make the journey light and solid.
“天地并生,万物为一”,上海道生天合展厅遵循场域逻辑脉络,在动态中展现建筑与展陈美学,贯彻生态环保主张,呼应企业文化及品牌理念,立足空间表达与展示陈列平衡,在自然、艺术场景中,以设计赋能,让穿梭之旅轻盈又踏实。
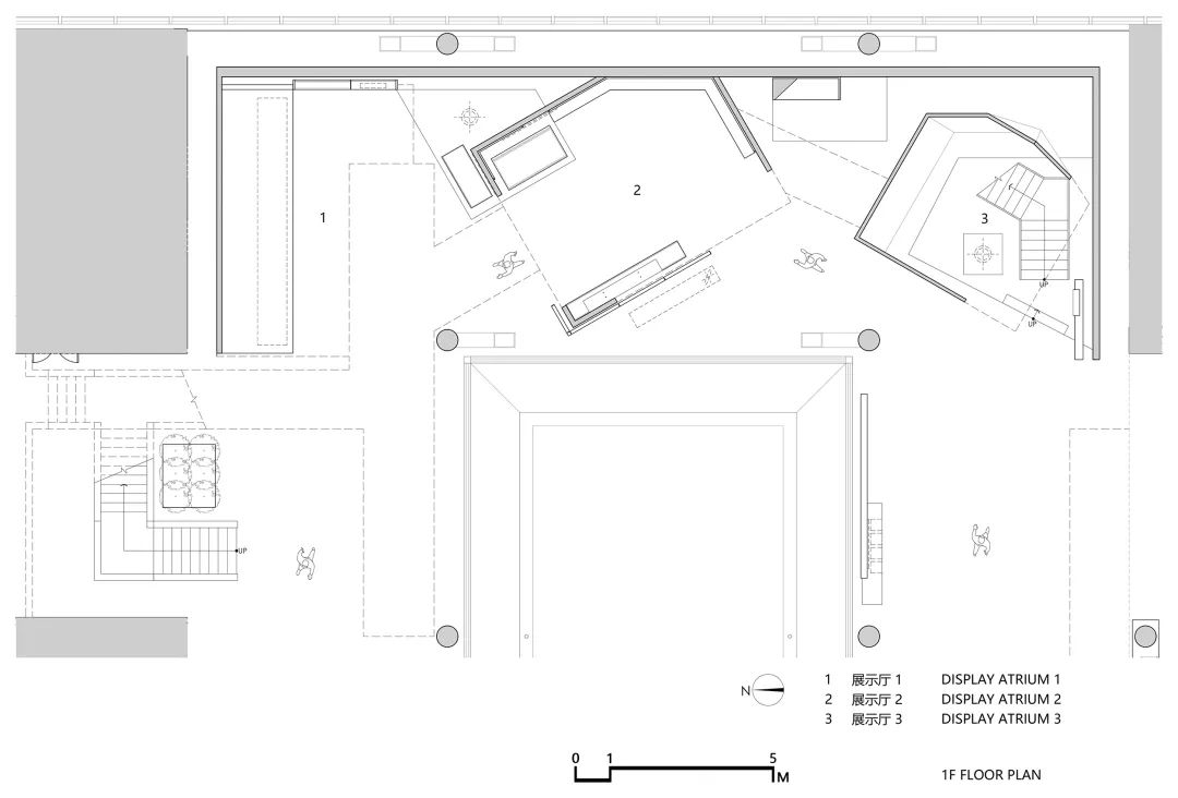
△1F/2F平面图(请左右滑动查看)
项 目 信 息
项目名称 |
上海道生天合展厅
项目面积 | 400m²
完工时间 | 2024年8月
设计公司 | ONE HOUSE DESIGN 壹舍设计
设计主创 | 方磊
参与设计 |
蒙程鹏、胥磊
项目摄影 | 张静
方磊,现代简约设计先行者,都市精英生活方式引导者,壹舍设计创始人。
近年来获得诸多国内外室内设计大奖。他认为设计师思维是感性与理性的结合,擅长用现代简约的美学精神展开空间多维描述,以克制与平衡的手法、表象和内在的矛盾统一来表现丰富而纯粹的设计本质。
ONE HOUSE DESIGN壹舍设计由方磊创建于2009年,凝聚了一批拥有前瞻性理念、国际化视野的活力团队。作为集室内设计、软装设计、环境设计等一体化的综合性专业设计公司,壹舍主要从事地产售楼处、样板间、会所、商业空间、办公空间、精品酒店等设计项目,为众多知名地产商提供至高水准的个性化定制服务。以过硬的专业能力和不懈的探索,积极面对未来与市场的全新考量,致力于当代新人居观念的启迪与更新,为设计提供更多可能。
编辑:
Pioneer
撰文:
设计先锋队
校改:Pioneer
编排:设计先锋队
本文素材图片版权来源于壹舍设计,
建筑 | 室
内 | 设计 | 艺
术
商务联络
客服
消息
收藏
下载
最近





































