查看完整案例

收藏

下载
△ 户型优化,设计师必备技能 △
说在前面
来自壹舍设计
-
世间万物,唯有爱和美食不可辜负。日式铁板烧作为日料中最高级别的就餐形式之一,俘获了万千饕客的芳心。位于南京永隆·圣马可国际家居广场的龍·铁板烧餐厅,近期启幕迎宾。其空间由方磊率领的壹舍团队倾力打造,以极致的黑色与简约,开启一场至臻设计与高端美食的全新体验。
"
我们透过简练的笔触谱写风貌,践行克制平衡之道让环境渐隐,也令人与食物回归餐厅主角。抚平宾客心绪,使其能更好地感知食物本身蕴藏的能量与慰藉,尽情享受当下的美好。”方磊阐释其设计愿景。
"
01
开篇:深邃前行 空间礼序
门廊处以大块面纯粹的用材与用色铺就,硬朗凌厉的勾勒出酷黑基底。立面则贯彻极简与解构概念,引入框景、造景及构成语言,并谨慎把控内外界的衔接尺度,造就高辨识度的个性形象,恰如“屏”的形式,滤掉周遭喧嚣,欲拒还迎,邀人入内。
逐光而行,展示中庭巧用线条、比例,两侧置以透明格架对称而立,延伸至顶部的不锈钢镜面与灯带的多维交织,似乎令这一领域无限扩容,酷炫非凡。
虚实交错间,展示中庭仿佛化身为一方神秘之地,意境悠远,包罗万象。穿梭其中,既有视觉错落的震撼,亦似引领人们迈向更加科幻的未来,同时也饱含礼序仪式。
从门廊至展示中庭,再至接待前厅,以先抑、后扬、再抑的节奏把控,逐步指引宾客置身静谧之中。以物理空间的循序渐进,达到对心理层面的融通契合,一切显得自然而然。
02
前奏:别开生面 各显其趣
呈十字交叉分布的主动线,起承转合间顺畅引出各功能区,并合理分流后厨与用餐区。中国古典的视觉落点方式则出现在末端,以熟稔的美学观念连接起情感记忆与共鸣。
吧台则采用体块穿插来塑造,整合原始柱体,化零为整,于一体化的层叠并置中,透露细节巧思与表现张力。格栅的设立与自然光线的点缀,打破单调与沉闷,亦带来了活力。
材质一路沿袭至横轴动线,同时也因地制宜加以变动。一端借由不锈钢的折射,强调趣味性和延伸感。另一头则以墙体作端景,引导宾客踏入两侧的开放就餐区。
03
递进:隔合有道 灵动自如
设计师从外形、视野、触觉等不同维度落笔,参照独立墙体,将动线、操作区、就餐区进行相应规划,营造出全方位沉浸式体验。整体呈环绕式布局,避免了过度设计,也充分尊重动作尺度与场景需求,以便更及时便捷的响应对宾客的服务。
整个就餐区色调统一,间或些许跳色,木质、石材、金属、皮革等相互碰撞,近可感受肌理质感,远能一览结构轮廓,在光线和视角的转换之下,意味深长。
基于用餐需求,移门隔断随之而出,开合之间,既可保留完整的开放体,也可机动独立,保证专享之需。这也是沿用“屏”的精髓,一屏之隔,两个世界,别有洞天。
若以开放、通透为需求强调整体,虎皮兰绿植则可形成一定的视线遮挡,让宾客落座之际也兼顾私密度。当就餐区各自独立时,两个窗口又可与室外建构微妙的联结,并延用格栅漏景,贴合东方人的审美情绪。
大片黑色温和包裹,带来沁入内心的安宁,远眺窗外隐约的城市景象,似乎能在不经意间引发此种情境下的思考与感知。
04
尾声:润物无声 意犹未尽
包间被碳烤木铺展,质朴的木作以返璞归真的面貌,促成丰富的内涵。墙体下方用细节成就惊喜,安插一块玻璃,让包间与开放就餐区无形中增强联系,也提升了室内的呼吸性与氛围感。
高低交错的陈设、明暗交叠的色调,在灵动的节奏下,克制却又不失重点。鉴于包间的面宽情况及使用需求,餐台圆弧采用侧边处理,刚柔兼济,彰显俊朗又不失细腻特质。这也是团聚的象征,亦被赋予私密性与安全感。
转折状的金属层板也是对“屏”的形体演绎,将造型美学和谐地融入切实的功能中,以期实现展陈与妆点的完美结合。
卫生间遵循着材料、比例与秩序,利落从简。粗粝的肌理与光滑的表面,配合光线映衬,强化其质感,也进一步凸显层次。
设计师方磊补充道:“我们希望在南京龍·铁板烧餐厅,以创意设计赋能商业。强调就餐环境为载体,美食需求为主体,配合空间本身、灯光调试、餐台设备、座椅及餐具选配,甚至软装陈设等,温暖慰藉宾客的身心。最终透过这个场域,诠释出对内在的探索,润物无声。”
写在最后
-
餐厅本身定位为高端预约制,基于场地、功能与客群分析,我们拒绝过多的元素堆砌,放弃刻意的故事营造,试图传达一种沉浸式的餐饮氛围。透过暗黑色调的铺陈,加强对宾客心理的引导,在不断的深入中产生回响,无形中凝聚出一种力量,可以打动自己,打动宾客,打动观者。
铁板烧制作全过程也能尽收眼底,一边欣赏大厨展示厨技,一边酣畅品尝美食,邂逅一场视觉与味觉的饕餮盛宴。我们着重考虑宾客的需求、大厨的操作、大厨和宾客的互动,以及服务人员的便捷响应等多者之间的关系与距离感拿捏。密切关注不同行为主体的交互过程,以及蕴藏在其中的人文、心理和服务状态,以期带来更高质量的体验感受。
——方磊
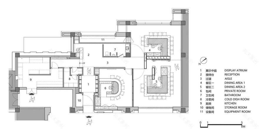
平面图▲
项目名称 |
龍·铁板烧餐厅
项目地点 |
南京 永隆·圣马可国际家居广场
设计面积 |
221㎡
完工时间 |
2022年6月
设计公司 |
ONE HOUSE DESIGN 壹舍设计
设计主创 |
方磊
参与设计 |
胥磊、谭超杰
项目摄影 |
张静
方磊
方磊,
壹舍设计创始人,
现代简约设计先行者,都市精英生活方式引导者。
近年来获得诸多国内外室内设计大奖。他认为设计师思维是感性与理性的结合,擅长用现代简约的美学精神展开空间多维描述,以克制与平衡的手法、表象和内在的矛盾统一来表现丰富而纯粹的设计本质。
ONE HOUSE DESIGN壹舍设计由方磊创建于2009年,凝聚了一批拥有前瞻性理念、国际化视野的活力团队。作为集室内设计、软装设计、环境设计等一体化的综合性专业设计公司,壹舍主要从事地产售楼处、样板间、会所、商业空间、办公空间、精品酒店等设计项目,为众多知名地产商提供至高水准的个性化定制服务。以过硬的专业能力和不懈的探索,积极面对未来与市场的全新考量,致力于当代新人居观念的启迪与更新,为设计提供更多可能。
壹 舍 设 计 代 表 作 品
▼壹舍设计新办公室
▼上海季公馆
▼上海Smelix仕觅男装高定店
▼上海招商虹桥公馆二期
小编插话
联盟好课
▽
客服
消息
收藏
下载
最近





























































