查看完整案例

收藏

下载
以下原文来源于PChouse家居APP
小L从音乐学院毕业后,在文艺团从事艺术工作,她和父母一直住在
建造于1997年的老房子里,并且房型还是近年来很罕见的错层结构,
一半层高3.6米,另一半只有2.4米
。
对家的憧憬和期待,L小姐姐有对艺术的执着和追求,希望满足自己美美的愿望,希望有特色的配饰,同时也想把父母
一再
强调的功能与
收纳
的想法全部融合,
利用好格局,垂直空间上的优势,
改善过去二十多年来的不足
,
把空间做的实用且有趣。
项目信息
地址:武汉 紫晋公寓
面积:100㎡
风格:现代北欧混搭
户型:复式二室
预算:35万
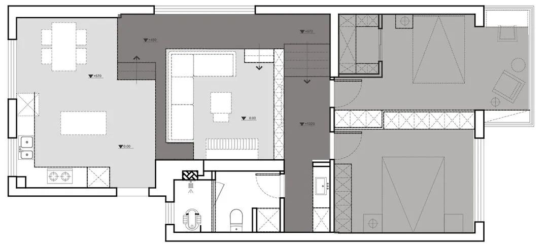
户型图
原来的老装修中
,整个房子被楼梯分为左右两个部分,左边客餐厅厨房区3.6米的超高层高,而右边卧室与卫生间区域是2.4米的低层高,全屋的顶面是一个平面,中间的楼梯将他们相连,复式结构的楼梯也不能挪动,唯一的“阳台”和次卧相连。
入户后的整个“左半边”打造成了2.0+1.5的双层暗楼结构,压迫感十足。
经过反复推敲后,决定做出这样大胆的改造:
1:去掉大暗楼,同时将厨房打开,少了一个楼梯间,把岛台,老物,餐厅空间聚集于此,大大增强了厨房的功能与储物性,空间宽敞而明亮。
2:考虑到厨房上空的吊顶、排烟管、原始下水管等因素,在厨房上空做了一小截暗楼用来储物,并充当厨房吊顶,不让密集的空间过于高。
3:
最大的亮点、精髓之处
:利用房子错层的乐趣性,将整个“平面图深色区域”抬高,让客厅与餐厅成为整个屋子的下凹区域,不仅大大增强了观感,更是让原本暗楼的“天上”储物挪步到脚下,方便拿取。
4:两个卧室间墙体打通,
做好
隔音
利用衣柜隔墙分给两边卧室主人使用,这样就增加出一处L小姐姐
梦寐以求的衣帽间。
打通原本阳台区域作为工作间......
5、卫生间干湿分区,洗衣分区,因为家人对于蹲便的需求已经到了依赖的地步,所以坐便与蹲便做了同时保留,蹲便与淋浴区结合,坐便与洗衣区结合,洗漱区单独分离。
一系列的改动,将整个双层高的老屋改造成了三层高,形成“俯视”“下沉”“平视”三种不同的视角,相互呼应,增强了屋子的趣味性与观赏性的同时,也大大改善了原本的收纳性。
玄 关
进门口侧边即是一长条半高的鞋柜,常用鞋、当季鞋放门口,其余的通通收起来,半高的设计不仅可以让整个空间通透起来,体现出层高的巨大优势,台面同样可以用来放置一些进出门顺手的物品。
楼梯踏步抬高,并打造成抽屉的形式,辅助鞋柜储藏功能让空间
实现0浪费,
美观协调的同时,也注意到作为地面走路的耐磨性。
相比于原先的鞋柜,储藏量可以算是质的飞越了。
正面看向大门,可以看到压缩并提高后的“暗楼”储藏区,去掉了原本的楼梯间让地面空间释放的同时,提高了厨房的层高,让常用区域的生活感受更加宽阔舒适。
也因为减少了原本楼梯间的缘故,厨房与餐厅的结合也更加平顺,中间增加了岛台区,不仅解决了各种烘焙的空间和仪器问题,也让餐厨功能相结合。
一组折叠式楼梯,省地的同时让上下楼变得不那么困难,一人即可操作。
餐 厅
打破传统厨房形式,餐厨一体的形式融合后,无论站在这里的哪个区域,都有很充足的空间活动与使用。
更让热心快肠喜爱聊天的妈妈在揉面与做饭的空闲,可以侃几句家常,望一望电视,告别原本孤单的“厨房笼”,搬进了大豪宅~
原本的餐厨空间,空高不足2米,过道也仅能侧身过去......
空间以白色为基调,浅灰色为辅助,结合去掉原本大“暗楼”后吐露出来的大面窗户,瞬间让整个空间重获新生。(绿色小冰柜是两代人保留下来的珍贵回忆)
有了光线的最强加持,待在厨房的时间与坐在餐桌的食欲都随之增强了不少。顶层储物间也增加了木色围栏的搭配,呼应客厅的基调,让整体更加协调融合。
感受一下3.6米的餐厅空高,除了感官上的舒适外,作为餐厅的仪式感也体现出来。原本的楼梯间被拆除,仅以一株绿植替代它,“留白”的感觉总是比填满了好,还增添加一丝生气。相比起不到一年前此处的景象,L小姐姐更愿意把这里当做“餐厅”,而不是“吃饭的位置”。
进大门看过去的视角 没有遮挡,没有阻碍,通透与宽阔就是第一感受。用武汉话说叫“透态”。
客 厅
客厅也是重点改造区域,从鞋柜旁的抽屉踏步上去,整个通道抬高处理,在层高的支持下剩下的垂直空间依然充足,也正好补充原来减小的那一大层储物“暗楼”的收纳,让拿取更加方便,也让收纳更加整洁。
原本的电视在现在的钢琴墙面,而沙发却在背靠窗户的过道处,不仅极大的限制了动线的流畅性,也让看电视的时候因为背光“关窗帘”成为了一种习惯,久而久之,窗帘就很少打开。
整排过道抬高,让改造后的客厅变成了一个下沉式的休闲空间,过道也转化为了一个可以休闲的地台区域。原本放置在卧室的钢琴挪进下沉区,不仅在弹奏时有着更大的空间,平时对学生教课的时候也更加方便,演变成一个有层次的演奏厅。
相差1.2米的两端空间,通过这个抬高的过道减少了高低差的大错落感,让每一个行动的过程变得更加平缓,各截可以作为抽屉的楼梯也成为了好客妈妈的客人常坐。
和普通榻榻米的开启方式不同,过道地台储物的开启盖板用了专门的床板荷叶来作为开合之用,可以保证长期踩踏不会造成松动与摇晃,也可以在开启时,定在某个角度,方便拿取。
站在鞋柜后俯身看过去,依然是浪漫与温馨的场景,保留了一些老房小物品,放在这里依然和谐,带着过去的回忆。
家里所有楼梯扶手,由原来的铝合金栏杆改为了木框的通透玻璃扶手,踏步的材质也由油腻的花岗石改为了和地面同材质的地板踏步。
白白净净的空间里,有着各种木色的基底,加上各种大植物的点缀,仿佛有无限的生气与爱意。
我们都非常喜欢的角度之一 从房间出来的楼梯平台上可以看到整个公共起居空间的全貌,整合之后的空间里,每个人都找到了自己最喜欢的位置,整个动线里都可以“走走停停”,从一个压抑的房子骤然转变为一个舒心且放松的“家”。
与L小姐姐同龄的小凳子,“妈妈专属”的各种家具脚套,还有简单的饰品与随意摆放的小肉们,和谐与爱的体现往往也就在惊鸿一瞥的那一瞬。
卧 室
父母卧室
空间并没有太大的变化,本着储物为王,尽量减小预算的需求来说,保留了原来早已习以为常的大床
。
将两个房间的墙体拆除,重新计算开间后,利用一大面柜子来作为隔断,然后重新进行隔音处理,将原本的主卧储藏量翻倍,最大程度的满足了L妈妈的收纳要求,也以最简单的配饰和略微增强一些的光源达到基础的美观需求与功能需求。
L小姐姐的卧室拆掉了原来的书桌书柜,里面的连体结构阳台当做扩充空间,将书桌与电钢搬到了这里,把卧室里这个唯一的采光处打造成一个可以工作,可以兴趣的娱乐空间。
从床尾看向门口
床尾对面的一大面墙其实是主卧衣柜的背面,末端处分割了一块,在门的背后补充了原来书柜的储藏任务。
原来的钢琴搬到了客厅的下沉空间中,进门另一侧打造一个小型衣帽间,毕竟,衣帽间永远是女孩们最爱,隐藏收纳更让空间显得更加整洁。
衣帽间尺寸不大,但一人使用足以,大多采用隔板+反光灯槽+挂件的最大化diy空间打造,三扇折叠门的形式来作为开合形式,既保证了门的作用,也最小占用空间。
在床上翻来覆去,把衣服堆在身边,手机与杂志在睡前随手的摊在身旁,应该是每个女孩都有的一面。一个更大的床与一组美美的床头柜,自然是更加满足L小姐姐的需求。
卧室不同的色彩也更彰显出音乐才女的与众不同与爱好,让家里的每一处,都是自拍的好场景。
原来阳台与房间全部结合后的房间一角,相比之前,更加轻巧,自由。
卫生间
干区单独搬到外面,解决了一家人早上争抢的问题,采用大量白色配色为空间提亮。
原本2.4米的层高,外加无下沉结构的楼上排水管沉水弯的下压后,卫生间空高仅仅2米。
在保障沉水弯的基础上最大的把压高给提高,让卫生间的空间有略微的提高,也仅仅是这一点点尺寸,让现在的淋浴器可以完美安装。
客服
消息
收藏
下载
最近















































