查看完整案例

收藏

下载
光顺着物体表面的痕迹,细细镌刻或明或暗的阴影结构,立体而富有层次。
时间于此缓慢流动,恒久流光隐喻着人文气息,唤醒一室静谧。
项目视频
人文形态,时光闪耀
The Form Of Culture
本案叠墅拥有2层地下室和3层地面结构,宽阔的立面优势,将生活区域与居家情绪进行合理调度,秩序化规整不同的功能载体,塑造宽阔自由的别墅升级,承载时光丰盈。
自下而上纵览全域,负一层和负二层互为挑高结构,视觉上延伸了立面感官,视野开阔通透。
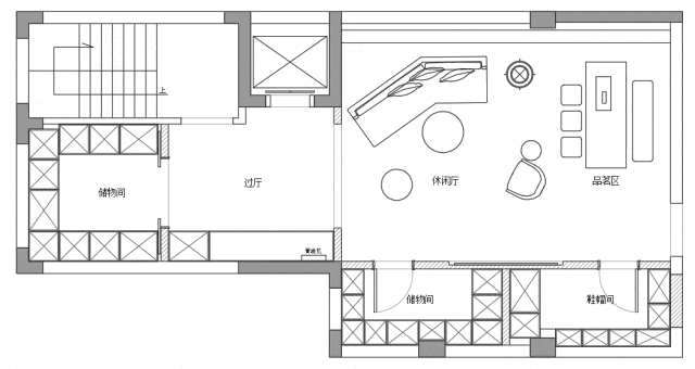
两层地下室涵盖了沙发区、茶室、储物、多功能室等复合功能,聚焦家庭休闲与互动。
温润木作结合岩板纹理铺展整体,
刻画几何、悬浮等结构形态
,赋予居家美学的生动演绎,释放纯粹包容的场域力量。
手机横图查看
一层作为生活功能区,整层空间应用于中西厨的操作区域,餐厅、厨房、娱乐在此展开。设计师落笔轻盈流畅,
动线纵横交错,各区域呈现开放式联动,打造空间的连贯与递进,进一步柔化区域界限。
落日余晖,优雅入梦
Elegant Dreams
二、三层为私人居住区,营造相对独立的静谧氛围。长辈房蕴含人文娟秀的气息,清雅水墨为背景,结合新中式元素,古色古香中承载现代感的轻盈。落日余晖,优雅入梦。
次卧在留白与线条中徐徐展开,纯净的空间中点缀时尚的蓝色,奠定现代风格基调。岩板黑白肌理在一隅舒展,前置一抹绿植,塑造一处自然之景,清丽雅致。
主卧以奶油肌理铺展,整体勾勒立体线条,呈现当代美学。咖色作为主调进行层次感的渲染,深浅明暗的韵律中释放生活的灵动。时光渐缓,浓淡相宜。
卫浴注重实用主义的操作,线条流畅轻盈。三分离的结构,在注重效率的同时享受生活的精致感。
平面图
Plan View
在人文内涵中解构当代元素,为生活调度自由与浪漫,定格日常叠影,现代与时光同启。
项目名称:万科南山沁庐
坐落地点:浙江·宁波
建筑面积:340㎡
设计单位:S空间设计有限公司
设计师:史峰
/ 设计师个人简介 /
史峰
理性的思维逻辑,热忱的设计,有感情地,
创造有温度的家。
从事建筑室内设计行业18年
S空间设计有限公司 设计总监
中国室内装饰协会 会员
宁波室内设计师协会 会员
IDG金创意奖国际空间设计大赛 大学生导师
T.K HOME德光居国际软装设计中心宁波公司 设计总监
2021年度百度馨居奖百度家居行业设计师大赛最佳平面规划设计奖 全国TOP30
2020年度Home Italia全球接触年轻设计师奖
2020年度上海国际设计周 金梁中国设计奖
2020年度第八届IDG金创意奖国际空间设计大赛—大学生导师
2020年度第十届国际空间设计大奖IDEA-TOPS艾特奖最佳别墅设计入围奖
2019Design Focus空间设计大奖年度别墅豪宅空间设计大奖(实景类)
2019年度法国双面神GPDP AWARD年度TP100国际影响力创新设计师
2019年度中国室内设计青年TP100
2019年度PCHOUSE AWARD私宅设计大奖宁波TP10
2019年亚太设计师大赛实景类·别墅空间·至尊奖
2019年度亚太设计师大赛别墅空间·十大设计师
2019年亚太设计师大赛实景类·住宅空间·至尊奖
2019年第二届红创奖设计大赛·年度优秀作品奖
2019年度欧神诺意境大师沙龙·十佳作品称号
2019年度CYIDA中国浙江青年室内设计奖·别墅豪宅空间优秀奖
2018年度红创奖设计大赛·最佳色彩搭配奖
2016年第十一届金外滩奖·入围奖
2014年第五届中国国际空间环境艺术设计大赛筑巢奖·公寓类优秀作品奖
2011年金堂奖·年度优秀住宅空间奖
2009年中国室内设计论坛家居装饰设计大赛·提名奖
2008年全国室内装潢设计大赛·优秀奖
/ 近期回顾 /
500㎡大宅|现代之域,时和沉稳
420㎡暖居,观岚山诗意
古今交融,精神栖居
客服
消息
收藏
下载
最近

















