查看完整案例

收藏

下载
玻璃盒子
广州图书馆 - 品秀星樾分馆
最终万事万物 | 人类, 思想, 物体,都将连接
连接的质量的关键就是本质质量的关键
——查尔斯·伊姆斯
Charles Eames
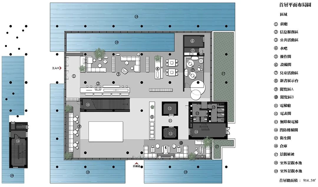
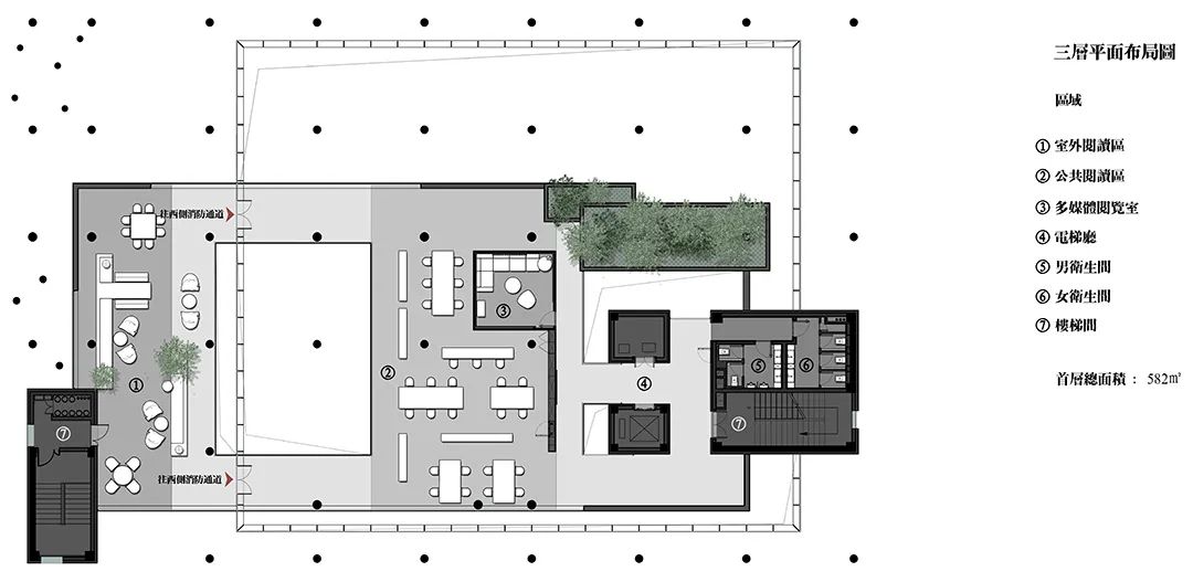
广州图书馆于2013年6月23日全面落成并对外开放,作为城市最具代表性的文化符号及文化地标建筑之一,如今更是跻身世界最忙碌的图书馆之列。2018年,广州图书馆及其分馆、24小时图书馆等全年接待访问量高达932.9万人次,日均接待公众近3万人次,刷新了中国公共图书馆的服务纪录。自2019年起,广州市政府持续投入推进广州市“图书馆之城”的建设计划,其中广州图书馆的品秀星樾分馆项目面积约为2000平方米,选址于建筑面积近100万平方米的超大体量的社区内,旨为打造现代化科技展示及体验型专业公共图书馆。
文化空间于城市而言,究竟意味着什么?
文化是一个极其抽象的概念,一方面它悄然地改变城市的气质及内涵,另一方面它服务于市民的文化生活且提升生活品质。广州图书馆的品秀星樾分馆,作为社会力量参与共建的分馆,塑造传承与创意的映射的空间形象具有相当重要的意义。
透明盒子
该馆位于社区的入口处,三层高的建筑主体为一个以玻璃幕墙为主材的透明盒子,创建一个易于看见且识别的形象。该建筑在白昼的日光中晶莹灵动,在黑夜的灯光里释放温柔。这栋玻璃建筑的外部分布着通高的柱体,与柱底的灯光结合,形成灯塔光柱,强调空间的神圣性。
设计师以审视城市与人的情感联系、空间与人的共鸣关系的视角,让市民在穿行于这片超大体量社区时,以它为原点,无论是离开还是返回,都起到灯塔的作用,释放出“抵达”的信号。
为了让读者不再“困“于建筑内,视野上获得更开阔的室外景致,设计师采用大面积玻璃幕墙作为建筑表皮。使空间满足双向通透后,阳光直射的问题又给设计带来挑战。在简洁的建筑外表下隐藏着一个看似简单实则复杂的设计方案。
露台阅读
照明系统
从城市生活空间这一维度思考,城市的物理空间或许可视为一个恒量,而文化信息借助人们的生活方式及建筑空间,以动态的方式展现人们的智慧、文化和精神力量。
客服
消息
收藏
下载
最近












































