查看完整案例

收藏

下载
设计师简介
从业时间:2014年
毕业院校:石河子大学
就读专业:土木工程
擅长风格:现代简约 北欧 新中式
主要作品:美仑环球港 一品九点阳光 观园路公务员小区
设计理念:宏观看问题,微观看世界,用专业的态度去对待每个设计。
项目名称:世界冠郡
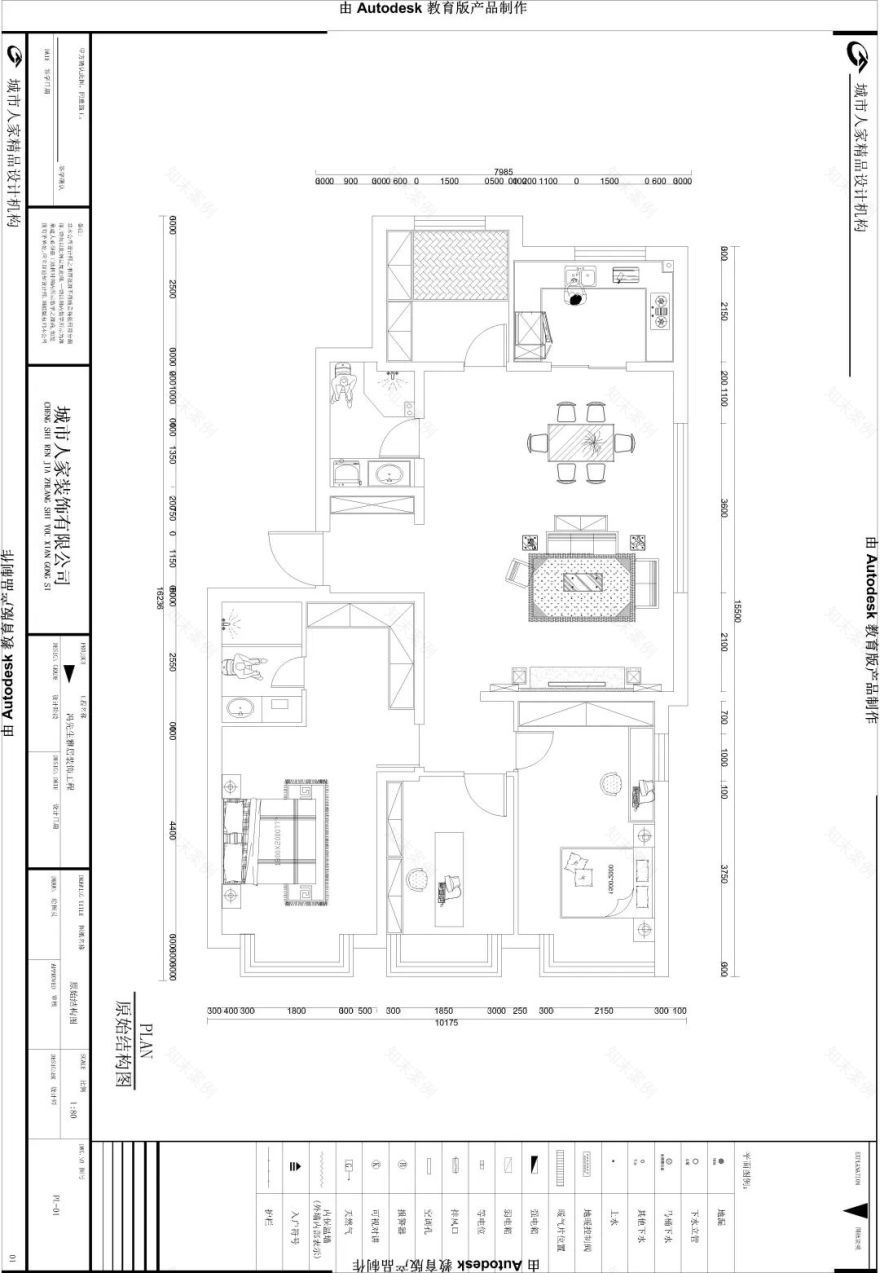
户型结构:三室两厅
建筑面积:130㎡
设计风格:简约
施工单位:城市人家装饰
原始结构 · 平面布局
客厅
客厅空间整体硬装以简洁大方为主,搭配现代舒适的家居,营造出一种闲适优雅的空间气质,给人以惬意情趣的华丽体验。
餐厅
客厅沙发墙与餐厅背景墙连贯一体,布置上优雅舒适的餐桌椅布置,一排独特精致又华丽的吊灯,也营造出了精致情趣的用餐气质。
厨房
厨房浅灰色调的的墙面地面,搭配白色的定制橱柜,让空间显得简洁优雅而气质,做饭氛围都是闲适而档次。
主卧
我是以床架+软包靠背的墙脚,墙上还用金属线条装饰,侧边的定制柜里侧留空了一个展示架,摆上主人的小饰品,让睡眠空间也更加端庄气质。
次卧
次卧空间也是与主卧一样以软包靠背+床架布置,床头墙挂了一幅水草装饰画,搭配一个活泼可爱而舒适的次卧空间。
书房
书房摆上一张成品书桌与到顶书架,整体空间比较时尚个性的布置,是属于主人的个人发挥空间。
卫生间
卫浴空间注重实用的同时,也非常的时尚有艺术感。
扫码关注
地址:高新街盈科广场A座11楼
官
网:
客服
消息
收藏
下载
最近

















