查看完整案例

收藏

下载
这不是一次推倒重来
而是一场恰到好处的唤醒
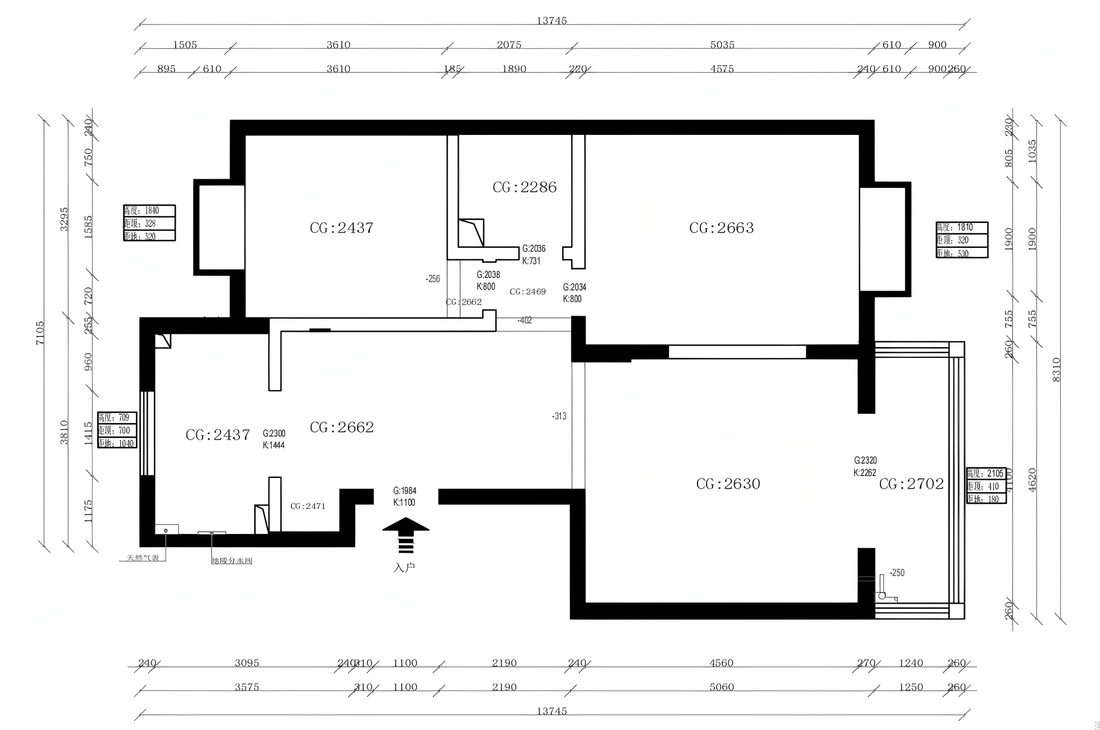
本案110
㎡,当服装设计遇到室内设计,家成为审美哲学的立体延伸。设计师任飞鸿
在保留格局的基础上,以极致的功能优化,为孩子的成长留白,这不仅是学区房,更是一件为生活量身定制的“高级成衣”,让日常起居在经典中滋养,于沉淀中生长。
勾勒出一个既能陪伴孩子成长,又能安放主人高级品味的精神栖居地。
敞开的风景,无界的日常
Open scenery, boundless daily life
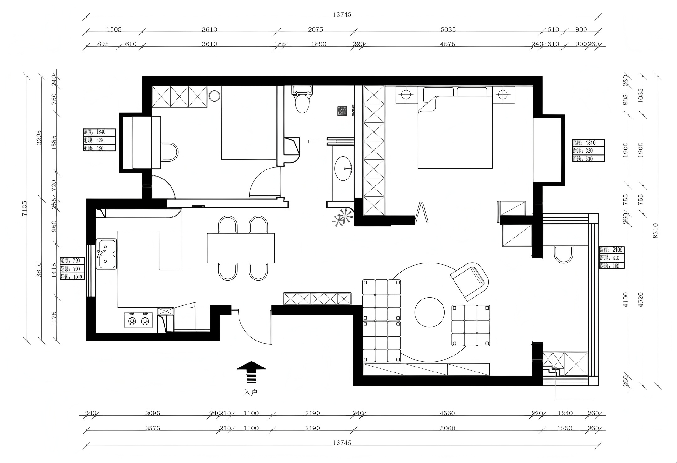
客厅完全敞开,以一种不设防的姿态拥抱生活的所有可能。白色的舒适沙发如一片柔软的云,邀请人深陷其中。温润的木元素在中古风里从不缺席,于地面、家具上静静散发着时光的温度。巧妙利用连接阳台的弧口墙垛,将其塑造成一个巨大的取景框,悄然将窗外的风光与天光纳入室内。这里摒弃了传统的视觉中心,让空间自由呼吸。靠墙而立的简易书架,既是收纳杂物的实用载体,也是一面展示着主人品味与故事的装饰背景墙。
整个空间无拘无束,让人与景、光与影,成为真正的主角。
链接情感的纽带
The bond that links emotions
拆去隔墙,将封闭式厨房彻底打开,以一个兼具质感与功能的吧台作为空间隔断。这里不仅是简餐与咖啡的便捷台面,更成为了连接客餐厨的核心枢纽,让家人在烹饪、工作与闲聊中随时互动。餐厅则选用一张温润的木质小圆桌,没有棱角的柔和形态,自然而然地聚拢起家的温度。在此处,日常三餐与欢声笑语交织,勾勒出一幅开放而亲密的居家景象。
空间变奏,
界分喧嚣与沉静
Spatial variation, separating quiet from noise
主卧一改常规,以正对客厅的木质双开门,完成空间的华丽变奏。这不仅是一次布局的大胆突破,更是一种生活态度的宣告。推开门,是家的热闹与互动;关上门,是世界的静谧与独享。门内截然不同的氛围悄然铺陈。棕色的床品与木质地板及床体一同呼吸,勾勒出沉稳的休憩基调。黑色的定制衣柜并非冰冷的存在,而是以利落的线条,成为空间里一抹有力的锚点。倚靠飘窗,光与景在此停驻,为这个私密场域注入片刻的诗意与宁静。
项目名称 / Name | 云顶园
项目类型 / Type | 私宅
项目位置 / Location | 中国·西安
项目面积 / Area | 110 ㎡
完工时间 / Time | 2025
主创设计师 /Chief designer | 任 飞
鸿采编撰文 / Write | 小 宫
项目摄影 / Photo | 冯 哲
客服
消息
收藏
下载
最近




























