查看完整案例

收藏

下载
麦子店街——现代前卫风格
This style emphasizes individuality and preferences, but when designing, it should pay attention to its own lifestyle and habits, and not to be flashy. What's more, we should pay attention to color contrast, pay attention to material category and texture.
GO
↓
项目简介:
项目滴点:北京市
项目地址:麦子店街
设计单位:文君设计机构
业主需求
1:风格时尚前卫
2:储物功能强大,可提供多人居住
原始结构图
Advantage
原始结构优点:
房型长方,通风较好
shortcoming
原始结构缺点:
门厅过大,占据了很多的功能,过道狭窄,没有预留储物空间
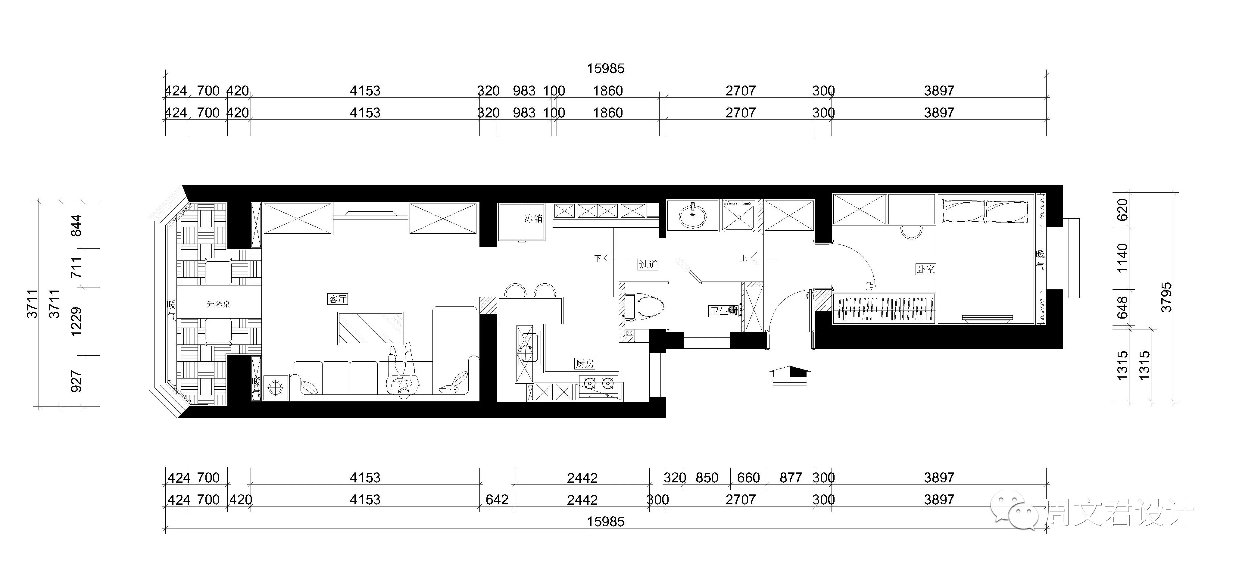
平面布置图
设计说明:
1、保证了空间的流通性, 客厅的电视墙整体利用
2、阳台榻榻米的储物利用
3,、敞开式厨房打造出时尚的现代人生活
4、卫生间采用雾化玻璃,得到充分的采光
5、原木色与天蓝色的碰撞,凸显现代人的活跃生活
效果图欣赏
文君设计机构
公司地址:方庄桥东鑫源国际1号楼209
4006601899
010-67625100
客服
消息
收藏
下载
最近











