查看完整案例

收藏

下载
Vancouver design firm, Edit Studios, recently completed the workplace
design for Sandstorm Gold Royalties’ new 40,000 sq. ft. office expansion
in Vancouver. Renowned for its exceptional portfolio of precious metal
royalties, Sandstorm's office is in Vancouver's newest AAA office tower,
Vancouver Centre II (VCII), which spans four floors. The building is
designed to LEED Platinum, WELL Gold, and WiredScore Gold standards.
温哥华设计公司
Edit Studios 最近完成了 Sandstorm Gold Royalties 在温哥华新建的 40,000
平方英尺办公室扩建的工作场所设计。Sandstorm 以其卓越的贵金属特许权使用费组合而闻名,其办公室位于温哥华最新的 AAA 办公大楼
Vancouver Centre II (VCII),该大楼横跨四层。该建筑按照LEED铂金级、WELL金级和WiredScore金级标准设计。
Working closely with the Sandstorm team, Edit Studios' designers created
an innovative workplace ecosystem. This space houses their geologists
and engineers and offers a collaborative environment for junior mining
partners to phase in and out as projects cycle through, similar to a
co-working model. Sandstorm's office design concept evolved during the
return-to-work period to meet the post-COVID trend of requiring more
focused private and shared office spaces.
Edit
Studios的设计师与Sandstorm团队密切合作,创造了一个创新的工作场所生态系统。这个空间容纳了他们的地质学家和工程师,并为初级采矿合作伙伴提供了一个协作环境,可以随着项目的周期逐步加入和退出,类似于联合工作模式。Sandstorm
的办公室设计理念在重返工作岗位期间发生了变化,以满足 COVID 后需要更专注的私人和共享办公空间的趋势。
The top and bottom floors make up the functional part of the office,
while the middle floor behaves as a common amenity for all companies. It
includes a shared reception, kitchen, and various meeting spaces of
different shapes and sizes. Coffee bars and lounges are strategically
placed on each floor around the stairwell to facilitate spontaneous
interactions among the team and promote vertical circulation.
顶层和底层构成了办公室的功能部分,而中层则是所有公司的共同便利设施。它包括一个共享接待处、厨房和各种不同形状和大小的会议空间。咖啡吧和休息室战略性地放置在楼梯间周围的每层楼,以促进团队之间的自发互动并促进垂直流通。
Edit Studios drew inspiration from Sandstorm's deep connection to the
mining industry to celebrate natural resources and highlight mining
operations. With an increasing focus on renewable energies, Sandstorm
emphasized the use of copper in the design, making it a key material for
the curved stair connecting all four floors. The stairs are a
structural and architectural marvel, with curved glass railings, BC wood
treads, and copper accents. The logistics alone are a miracle,
considering the quantity of metal craned up 33 flights into an occupied
office building.
Edit
Studios 从 Sandstorm
与采矿业的深厚联系中汲取灵感,以庆祝自然资源并突出采矿作业。随着对可再生能源的日益关注,Sandstorm
在设计中强调使用铜,使其成为连接所有四层楼的弧形楼梯的关键材料。楼梯是结构和建筑的奇迹,有弯曲的玻璃栏杆、BC 木踏板和铜装饰。考虑到 33
次航班升入被占用的办公楼的金属数量,仅物流就是一个奇迹。
Each floor features artfully displayed rock and mineral samples,
geological objects, and historical mining tools. Custom planter boxes
and plant life denote the entrances to each meeting room, smartly
inscribed with elements from the periodic table, once again enforcing
the link to the mining industry.
每层楼都巧妙地展示了岩石和矿物样本、地质物品和历史悠久的采矿工具。定制的花盆和植物生命代表了每个会议室的入口,巧妙地刻有元素周期表中的元素,再次加强了与采矿业的联系。
Unconventional materials that make up the space include rammed earth
walls and sand-infused plaster, illustrating the topographic contours of
the world. The reception area features abstract, hand-scraped plaster
walls, while BC native wood and granite bases mined from a local quarry
were used to create all the meeting room tables throughout the space.
Artist Mareo Rodriguez's pieces, inspired by the earth's materiality,
enhance the space with topographic references and drill core sample
motifs.
构成空间的非常规材料包括夯土墙和注入沙子的石膏,展示了世界的地形轮廓。接待区以抽象的手工刮石膏墙为特色,而从当地采石场开采的
BC 原生木材和花岗岩底座则用于创建整个空间的所有会议室桌子。艺术家马雷奥·罗德里格斯(Mareo
Rodriguez)的作品受到地球物质的启发,通过地形参考和钻探岩心样本图案增强了空间。
One of the important features to Sandstorm was the building's radiant
heating and cooling system in the ceiling, making it one of North
America's most sustainable buildings. This advanced system enhances
energy efficiency by reducing the reliance on traditional HVAC systems,
lowering energy consumption and greenhouse gas emissions.
Sandstorm 的一个重要特征是该建筑在天花板上的辐射供暖和冷却系统,使其成为北美最具可持续性的建筑之一。这种先进的系统通过减少对传统暖通空调系统的依赖,降低能源消耗和温室气体排放,提高了能源效率。
The use of radiant heating and cooling aligns with the team's objective
to mitigate the mining industry's environmental impact by adopting
cutting-edge, sustainable building technologies exhibited in this
building. In addition, there was a strong emphasis on weaving plant
life into the design.
使用辐射供暖和冷却符合该团队的目标,即通过采用该建筑中展示的尖端、可持续的建筑技术来减轻采矿业对环境的影响。此外,还非常强调将植物生命融入设计中。
"Since the pandemic, our clients have shown a strong desire to
incorporate nature and plants into the workplace. Science now supports
the idea that plants reduce stress and anxiety, boost creativity and
productivity, and enhance cognition and memory," notes Edit Studios
founder Janay Koldingnes. "Our planting strategy at Sandstrom
compliments the celebration of what the earth provides as you migrate
between floors, and ties seamlessly into our earthly palette."
“自大流行以来,我们的客户表现出强烈的愿望,将自然和植物融入工作场所。科学现在支持这样一种观点,即植物可以减轻压力和焦虑,提高创造力和生产力,并增强认知和记忆力,“Edit
Studios创始人Janay Koldingnes指出。“我们在 Sandstrom
的种植策略是对地球在楼层之间迁移时所提供的一切的庆祝,并与我们的地球调色板无缝结合。”
Sandstorm's versatile office space caters to employees and guests,
offering an abundance of areas for focused work and for employees to
feel rejuvenated while in the workspace. The enriching environment,
highlighted by greenery and earthy materials, strongly connects to
Sandstorm's mission and values.
Sandstorm 的多功能办公空间可满足员工和客人的需求,为员工提供丰富的专注工作区域,让员工在工作空间中焕发活力。丰富的环境以绿色植物和泥土材料为亮点,与Sandstorm的使命和价值观紧密相连。
△效果图
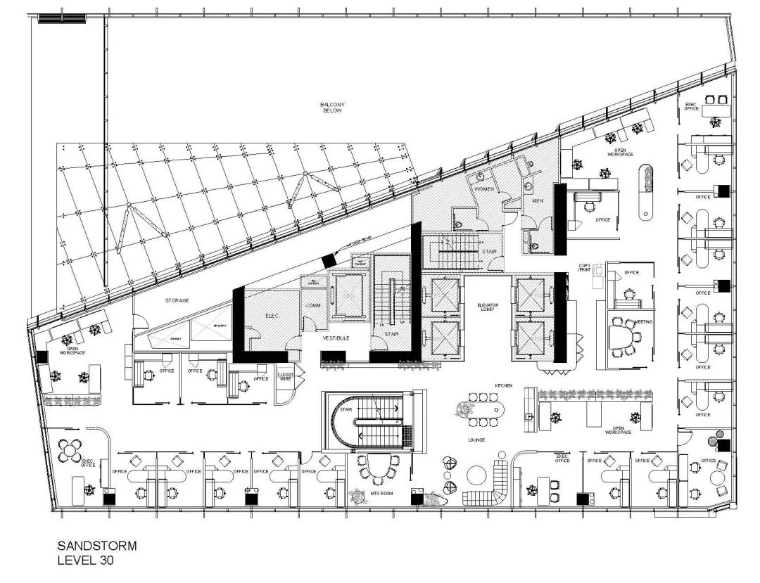
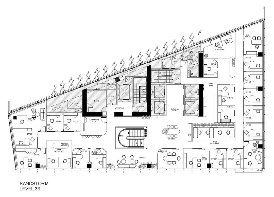
△平面图(请左右滑动查看)
编辑:
Pioneer
撰文:豆宝宝
校改:吴一仁
编排:
蚂蚁工兵
本文素材图片版权来源于网络,
如有侵权,请联系后台,我们会第一时间删除。
建筑 | 室
内 | 设计 | 艺
术
商务联络
客服
消息
收藏
下载
最近
































