查看完整案例

收藏

下载
美 · 因 苛 求
来自菲拉设计
-
感受空间状态、顺应空间逻辑,再而应势而变;在实用主义美学所需之下,精修各区域比例、细部连接的形式,将空间的合理性、家居的感性、集结为生活的序,继而掀开生活的又一章。
01
玄关
PORCH
面的延展不止于物理平面,
以主体为人的主观角度来转换,
在视角下形成新的立面做处理,
深蓝色彩便成为了区域间的有机互动载体。
02
客厅
LIVING ROOM
减少功能区间的物理隔断,
代之以结构、层次上的感官调配。
空间导向作用加强区域仪式感,
客厅、餐厅、玄关之间各有姿态。
以米色、浅灰为空间主要色彩,其间加入些许木色、咖色提升视感的层次丰富性;运用对称美学优化空间结构,并处理好体块间的衔接。
03
餐厅
RESTAURANT
就餐空间着重区域氛围刻画,
色彩和材质上加入稍显强势的元素,
轻盈雅致而又浓墨重彩的手法加持就餐仪式感。
毗邻餐厅的客卫后移,为餐边柜留出空间强化餐厨的收纳功能;纳入岛台元素,为家居生活方式提供更多的便利性。
04
主卧
MASTER BEDROOM
适配于睡眠空间的浅淡色彩,
除舒适度以外夹杂着设计的婉转。
表现于顶面结构造型的雕琢,
可见光的趣味性、微建筑的概念玩转。
05
卫生间
TOILET
光与气、观与感的通透,
展现更丰富的空间故事性。
06
儿童房
CHILDREN ROOM
以功能载体上的连接性
扩容空间视感,处理好其自洽。
不对有限的空间进行区域分割,
书桌兼具床头柜功能与床头靠背一体生成。
07
父母房
PARENTAL ROOM
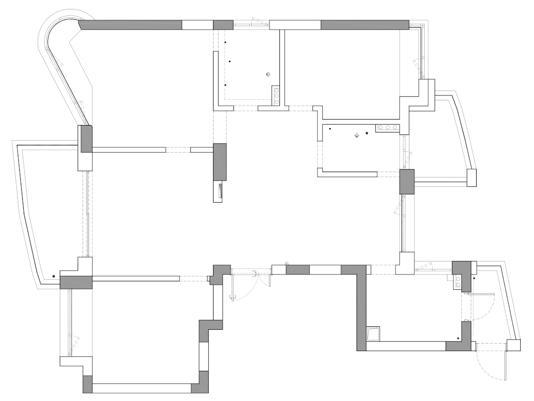
平面图
设计机构 I
菲拉设计
项目地址 I
浙江杭州 ·东方福邸
项目类型 I
硬装设计,软装宅配
项目面积 I
138㎡
项目户型 I
三室两厅
主案设计 I
宋雄飞
软装设计 I
牟纯之
项目摄影 I
瀚墨视觉-小四
创始人/设计总监:宋雄飞
抛弃固有思维 寻求一切可能 让设计回归生活
宋雄飞,专注于室内空间设计,创立了自己的品牌公司“菲拉设计”。带领着一批具有崇高设计梦想的青年团队,一直在设计的矛盾中寻求突破。善于结合生活将空间重组,把空间特色发挥到极致,强调功能与美感平衡,尊重使用者的真实需求。生活方式决定空间形态,为众多业主量身打造属于他们自己别具一格的家。
如您需要设计
延伸阅读
EXTENSION READ
▽
2022高颜值卫生间设计 | 50款
城市森林中的优雅之家 | JAAK
客服
消息
收藏
下载
最近








































