查看完整案例

收藏

下载
「
未建成的项目总是更有意思。
」
新威尼斯医院是柯布一个未建成但却声名远播的项目。
关于实现这个威尼斯战后第一项重要建筑工程的讨论始于1959年,当时的城市发展总体规划将民用医院确定在在圣乔布地区,从而为城市提供了一个最新的医疗设施,水路和陆路均可到达。
直到1962年,由市长乔瓦尼·法瓦雷托·菲斯卡
(Giovanni Favaretto Fisca)
担任主席的市政府才建议由柯布负责这个项目。柯布虽然没有正式同意这一建议,但在一封回信中说明了他认为建造新建筑应遵循的新原则:
“尽你所能,用最现代的建筑风格来建造,并让那些有权的人制定构成外墙的采光和通风标准。使用钢筋混凝土来建造这些标准,不要试图复制老威尼斯的旧手工砖。”
柯布的这一观点在当时的报刊上广为流传,柯布因此陷入了现代与古典的争论漩涡,因为他提议按照现代运动的原则来改造威尼斯,毕竟他是现代运动的绝对诠释者。
1963年,由于公众对新医院的关注增加,决定面向意大利建筑师和工程师举行公开竞赛,但最终没有胜出者。与此同时,柯布首次前往威尼斯实地考察,考虑认真参与项目,从一些准备草图中可以看出,未来医院的构想在建筑师的脑海中已经非常清晰:对柯布来说,建筑必须满足城市发展的需要,因此要横向而不是纵向发展,不改变城市轮廓,但要与环礁湖景观一起延伸。
1964年11月,项目初稿抵达威尼斯,并附有一封信,大师在信中阐明了整个设计结构的出发点:
“医院是人的房子。关键在于人,人的身高、步伐、眼睛和手。因此,起点就是他的居所,也就是病房"。
柯布提出了一个可容纳1500张病床的初步方案,同时忠实于两个原则:以人为本的室内空间的私密性和体量的平面衔接,使人想起城市的纪念性建筑群。最终形成了一座三层开放式医院,在忠实于其设计原则的同时,还可以进行扩建和改建。
设计真正开始的第一阶段是在1964年至1965年,也就是柯布逝世的那一年,威尼斯市政府批准了这一初步设计。
项目是一个主要用于急诊和急救的大型医疗中心,使用者的数量和项目的性质要求规划的建筑本身实际上就是一座小城市,这就模糊了城市规划和建筑之间的界限。
柯布的大部分城市规划方案都是与旧城结构形成对比,而在这个晚期项目中,规划则诠释了威尼斯古城的发展逻辑及其空间结构,即由水道分隔并由桥梁连接的半独立岛屿和威尼斯广场系统。这个项目的目标不是成为一个地标,而是成为城市组织的延续。
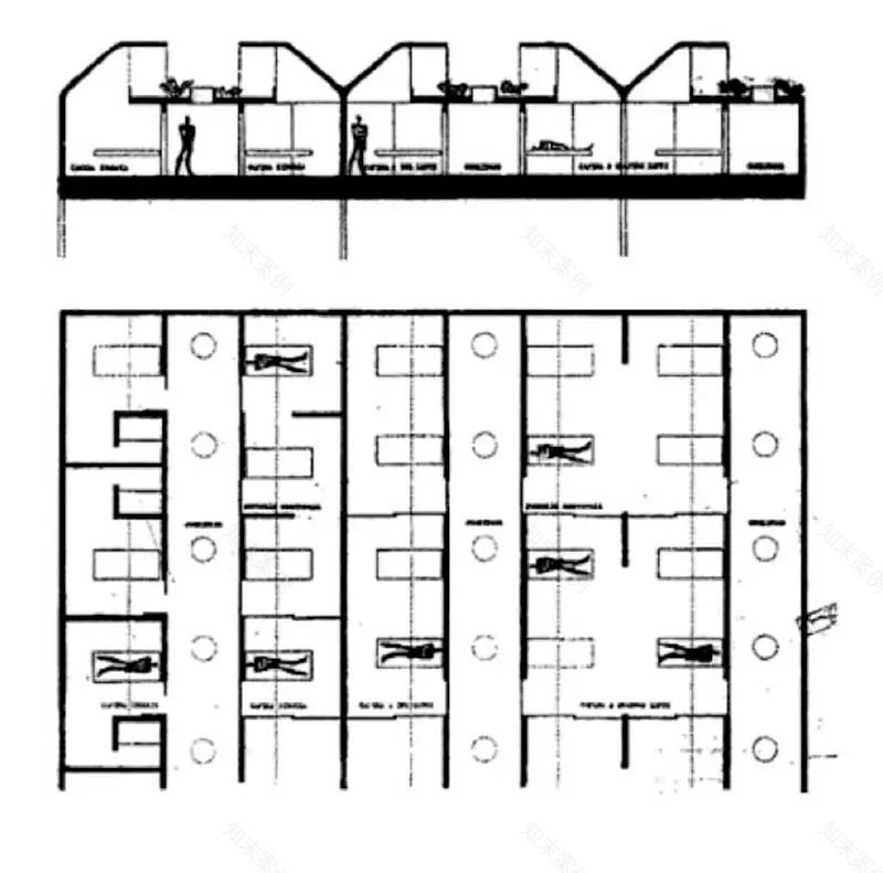
单个房间是建筑的最小单元,也是整个项目建筑的起源。建筑师对这种类型进行了彻底的改造:房间是一种完全隔离的手段,没有窗户可以向外看。光线只能通过天窗进入房间,病人可以利用天窗调节光线强度。
每两间病房面向中间走廊,顶部有横向天窗,这种设计在整个建筑中到处都是。病人区总是位于顶部,而其他活动区则位于底部。一楼建在引水道上,用于入口、管理、服务和乘船接送;二楼设有急诊室、医生办公室、手术室、免费诊所和实验室。
这种安排背后的基本概念是在人,即病人,其大小与单元的大小直接相关,与城市之间建立一种理想的联系,而城市的“成长逻辑”与建筑的构成相呼应。
虽然看不清但我还是放了
建筑单元之间相互连接:这种增长系统旨在满足医院未来对更多面积的需求,并能够容纳未来的医疗创新。
项目以某种方式将威尼斯历史上迷宫般的结构、其基本功能、Campi和Calli的关系合理化,并将其转化为可复制、可修改的结构,严格控制其几何形状。
在材料方面,设计采用了防水的钢筋混凝土原材,以便能够保持可见性,从而在木质结构和涂有灰泥的威尼斯中彰显其压倒性的存在感。公共区域铺设石板,内墙使用砖块。
不过,项目最有趣的彩蛋之一是对病人看着天花板的姿势进行了思考。考虑到病人被迫躺在床上,无法欣赏威尼斯地平线的景色,柯布设计了一个天花板和窗户系统,可以捕捉到自然光的变化。通过每间病房的玻璃窗可以欣赏到多色效果,还有特殊的面板手动调节光线的强度和颜色。
1965年,勒·柯布西耶在威尼斯医院项目展览上
右边的是企业家Carlo Ottolenghi和医疗总监Ignazio Muner
1965年8月,柯布在签订医院执行项目合同几个月后,因心脏病突发去世。项目前期研究和设计团队的负责人吉列尔莫·尤利安·德拉富恩特
(Guillermo Jullian de la Fuente)
被任命领导团队完成建筑。然而,出现了一系列法律和行政矛盾,威尼斯当局拒绝继续施工,医院最终没能如愿落地。
人们可能会认为,这不仅是这座城市,也是意大利建筑史上又一次错失良机。不过,可以肯定的是,这座医院不仅将是一座先进的多功能建筑,能够有效应对当今著名的健康问题,最重要的是,它将成为威尼斯的又一处景点,不同于我们习以为常的景点,但却能够展现出这座城市现代化的最新面貌。
”
客服
消息
收藏
下载
最近
















