查看完整案例

收藏

下载
慵懒木屋,珍藏私物
俩人爱好疯长的“小宇宙”
项目视频
写在前面
-Preamble-
「 家像朋友,越聊越熟 」
房屋是中性的建筑,当它融入了居住者的故事和经历,才能焕发出生命力。
她是文科生,经常有些可爱的念念叨叨,喜欢收集各种各样的小玩意儿,热爱音乐,从心水的乐队聊到民谣的发展史······
在装修过程中,两个人的想法常常会“打架”:她喜欢“原始质感的东西”,他“不要家里太原始”;她喜欢凌乱美感,他只要“干净的台面”;她需要开窗让家通透,他希望保留一面大白墙······
这些看似啼笑皆非的拉扯,实际上帮助两人更加清楚自己的需求。家的模样也在一次次的讨论下逐渐清晰,从构想进化成实物。家与人的关系就像朋友,总是越聊越熟。
拍摄当天,成都难得出了个大太阳。我们趁着晨光来到这儿,一起听听这家人的故事吧!
设计思路
-Ideas-
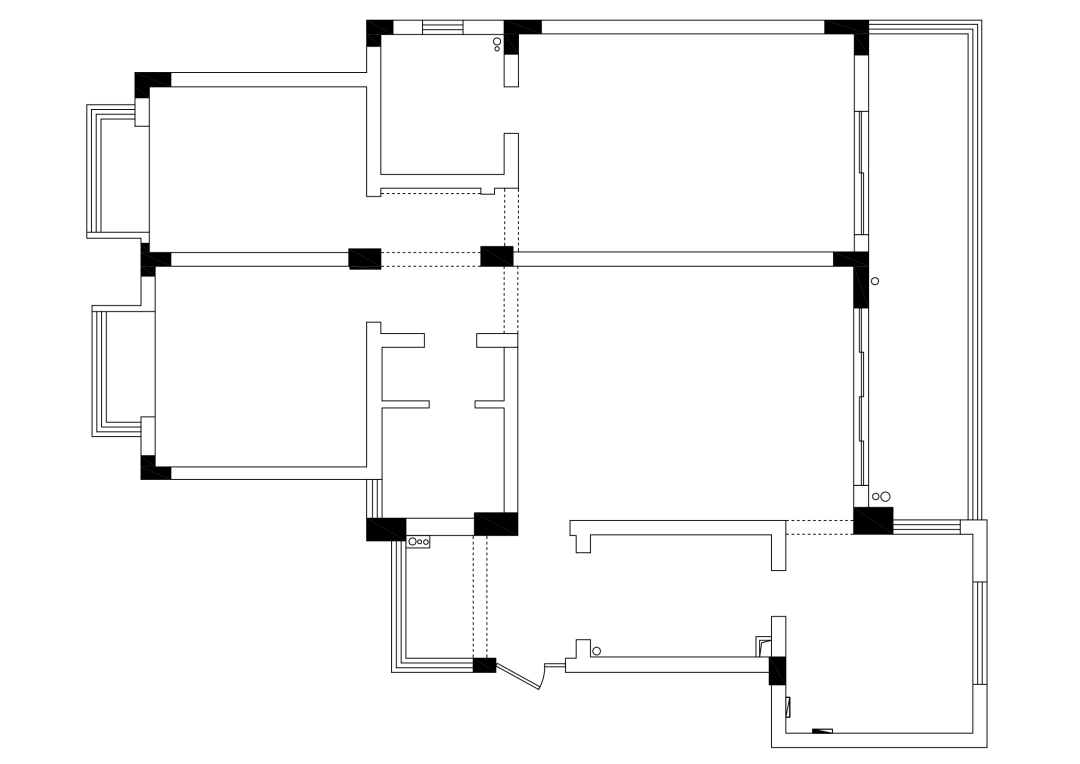
原始平面
平面布局
左右滑动查看更多
「 在”温度“逐渐妖魔化的当下,让设计回归到生活本身,不为了设计而设计」
“家不是一成不变的建筑,而是随着人一起成长的,不是一个简简单单的、用风格就能概括或堆砌几件网红单品就能奏效的一个概念,它要经得起时间的考验。
家还原的是真实的生活,不但要符合屋主的生活习惯,也要与他们的经历、感情相匹配。
“
设计师语嫣秉承着这样的设计理念,房屋的设计思路随之出炉。
本套案例除常规的硬装施工外,阳台封窗占了较大比重。
并无太多改造的地方,仅仅在入户位置增设门窗,让入户和室内成为两个相对独立的空间;
同时将主卫门移位,在原位置设计一组L形衣柜,满足主卧的收纳需求。
屋主希望家里通透、各空间有互动,所以屋主使用了较多木质窗元素,使各空间相互连接;
此外,选择较多成品家具,更具灵活性。
实景呈现
Live-action rendering
进门第一眼,看到的就是亮堂的玄关,两扇大窗将光线很好地引进室内,经过香格里拉帘纱的过滤,温和地洒进来。这么好的采光当然不能被遮挡,于是换鞋凳和鞋柜便主动“低头”让道,只留下足够的空间放置屋主的常穿鞋。
女主人对生活的热爱体现在各色的小物件上,即便是入户这个小小的空间,也不允许只留空白。朋友曾送过一副版画,但屋里没有合适的地方来挂它,入户处的挂衣钩正好解决这个难题。
“右边是工具书和他的专业书,《电路》、《信号与系统》这些,平时的话,他喜欢读非虚构类作品。我们基本上各种书都会读,但我会喜欢更偏理论、偏抽象的。有时候买书,会送些很好看的画,或者那些很好看的封面,我会把它们剪下来,粘在冰箱或者洞洞板上。“
客厅里最吸睛的也许就是这整面墙的书柜。屋主两人有许多书,所以需要一个超大书架。
书架上还摆着各种小物件:
两人喜欢穷游,希望亲身体会多样的世界,用脚来丈量土地。每一次旅行,男主人都会细心地收集票据,留下旅行的痕迹。
此外,客厅的布局十分灵活。平常沙发靠着书柜,宽敞便于行走;有朋友来,座椅和沙发可以面对面拜访,三五好友围坐,削弱主客之分。
女主人希望家里每个空间都是有互动的,在客厅里不止能闻到厨房传来的香味,也能看到做菜的人。与设计师沟通后,一致决定在这儿开扇窗。
男主人不希望窗开的太大,一番拉扯之后,各退一步,最终呈现出现在的效果。后期还可在左侧粘贴软木板,装饰各种明信片、照片。
屋主喜欢轻巧可移动的家具,于是便选择了了可拼装的极有家置物架,无厚重的提快感,简洁且用途多样。
当初购房时,房屋的视野和采光也是屋主的考量因素之一。整面落地窗,苍葱绿意尽收眼底,仿佛置身森林一般。正是这一处美好的景致,促进屋主在此安家的意愿。
屋主两人对功能性的要求不高,所以阳台区域并未规划储物区,而是简简单单地用来观赏、放松,日后也可用于运动健身、朋友聚会。
小老虎玩偶已经跟着男屋主很多年了,依然保存完好。长凳是它的宝座,设计团队拜访时,它正乖乖地趴在上面。
男屋主希望家里温馨一点,具体而言就是”木头多一些“。所以餐边柜和餐桌都选择了颇具中古风的樱桃木,再搭配上屋主的各色物品,温暖质感油然而生。
餐厅、厨房或许是最有烟火气的地方,这里浓缩了一个家的特质和气息。入住时间不长,但这一角显然已经烙上了屋主自己的印记:琼浆玉液酒,抵不过餐桌上的小油瓶;五谷不贵,却最能饱腹;经历无法复刻,却可以承载于物件上,越南、埃及模糊的印象,从千里之外搬进画框,最后陈列在餐边柜上。
为保持房屋的通透性,保留下了原始户型里阳台与餐厅相连的窗洞,并安装木质窗框。不仅形成了有趣的空间互动,也能作为临时工作区,放置笔记本电脑、手写板等。
屋主喜欢无吊柜的厨房设计,对功能性的要求并不高。所以设计师只使用了一排地柜,释放出上部空间,更显通透。
“以前租房的时候,因为房东身高的关系,厨房台面只有80cm。我们俩的颈椎不好,每次做饭的时候,低着头很不舒服,所以装修之前,我们一致决定:‘嗯!台面一定要做高点儿!’然后,我们就去宜家试了一下高度,感觉90cm是最合适的,就跟设计师沟通,最后还是做到90cm。”
对于家,屋主更希望这是一个可以随性慵懒的场所。正如她自己所言,“家,就得舒服,每个人舒服的点不同,这得看个人生活体验。我理解中的舒服就是不膈应,我甚至想过,手机掉地上不能碎……”
作为睡眠的场所,卧室很好地践行了屋主对舒服的定义。
简单的布局,大面积留白,释放空间,带来更轻松的空间氛围;
无床头的木质背景板设计,削弱单一的体块感,与宽敞的主卧空间更和谐。
次卧空间较大,因此做出一个超能装的储物空间,轻轻松松收纳两人户外玩耍的用品、杂物,并使用传统日式风的樟子门作为隔断,兼具实用与观赏性。
女屋主很喜欢这些奇奇怪怪的小东西:看着是幅画,实际上也可以当果盘;看着是木头摆件,其实是个抽纸盒,外观颇像纪念碑谷里的建筑。
相机记录下了新家的模样,也代表拾光悠然与它的故事告一段落,但屋主和家的故事才刚刚开始,就像那间没被相机拍下的空房间一样,还有许多“未完待续”······
项目面积 |
147㎡
户型结构 |
2厅2卫
项目类型 |
毛坯房
项目花费 |
50w
服务模式 |
全案设计 + 造梦家施工 + U然木作
设计团队 |
拾
光悠然设计
摄影负责 |
独立空间摄影师 刘斌
SHI GUANG YOU RAN DESIGN
拾光悠然家庭大合照 ●
拾光悠然设计成立于2015年。
从最初3个人发展
至今,现已拥有成熟的运营团队、设计团队及设计执行团队(工程落地) 共40余人。
7年时间为100多位业主提供了EPC交钥匙服务,拥有100多项标准的SOP流程去确保每个项目的服务标准化与专业度。他们
不care项目的大小与风格,追求去风格化设计,追求一切设计都回归实用性,愿意为提升空间价值而不断努力创造。
小编插话
联盟6.18
▽
客服
消息
收藏
下载
最近





































