查看完整案例

收藏

下载
The Student Hotel (简称TSH)是荷兰2012年以来活跃于酒店业的一家充满活力的年轻初创企业,目前在佛罗伦萨一处景色宜人的区域开设了它在意大利的第一家酒店。
TSH为意大利带来了一种新的住宿理念,一个向学生(正如其名所示)和意大利本地人、国际游客开放的混合居住模式。
酒店成为全球年轻大学生聚集的场所,他们最多可以在这里待满两年,除此之外许多游客、专业人士、商人、研究人员、环球旅行者可以在这个托斯卡纳首府中待一段时间,从2个晚上到12个月不等。
门廊式的酒店入口
©Sal Marston
TSH Firenze于2018年在城市具有商业战略意义的区域开设了第一家酒店,其位于前Palazzo del Sonno内,与Fortezza da Basso相对,并且距离Santa Maria Novella车站只有10分钟的距离。酒店拥有390间客房,57%专门供学生居住,43%供其他客人使用。
这种服务目的在于营造一个年轻、充满朝气和国际化的客户群:TSH将充满吸引力的设计与高端接待服务(会议教室、礼堂、餐厅和咖啡厅、室外泳池、健身房、室内球场、屋顶酒吧)相结合。公共空间是酒店活跃的心脏,每一位客人无论是学生还是游客都会尽可能少待在自己的房间内,让自己能有更多时间在会客社交空间中学习、运动、工作、休闲和体验文化。
入口庭院
©Sal Marston
大厅与接待台
©Sal Marston
The Student Hotel 没有遵循传统的住宿模式向顾客提供多样化服务,为佛罗伦萨创造了一个极为独特的事物——一个欧洲最有趣的“创意中心”( CREATIVITY HUB) 之一。
内部600多平方米的Collab实现了这一目的,这是一个专门向公众开放的共享工作空间,让TSH成为思想和行业的摇篮,满足任何人寻找一个充满活力、自由、舒适工作空间的需求。“创意中心”( CREATIVITY HUB)的核心是内部庭院,这是一个向城市开放的真正的“意大利广场”,用于组织文化活动、会议和音乐会。
毗邻庭院阳光充足的会面区域
©Sal Marston
内部600多平方米的Collab是一个专门向公众开放的共享工作空间
©Sal Marston
酒店内提供多种学习与工作区域
©Sal Marston
酒店目的在于不仅能为大家提供一个在佛罗伦萨历史中心的房间,还能够提供一种独特的体验:把握(或者说恢复)大学时光最好的精神状态、回归到那时自由而有趣的活动中、拥有和来自世界各地游客接触的机会、成为TSH客人制造的全球社交网络中活跃社区的一份子。
在自由、创造力和交流的精神指导下,设计师设计了位于首层地面、地下室、内部庭院,尤其是酒店六层的公共空间。音乐室、公共厨房、泳池和礼堂供客人随意使用,目的是将不同的文化融合在一起。
地下公共空间
©Sal Marston
会议室
©Sal Marston
健身区域
©Sal Marston
音乐室与洗衣房
©Sal Marston
酒店客房
©Sal Marston
屋顶酒吧
©Sal Marston
室外泳池
©Sal Marston
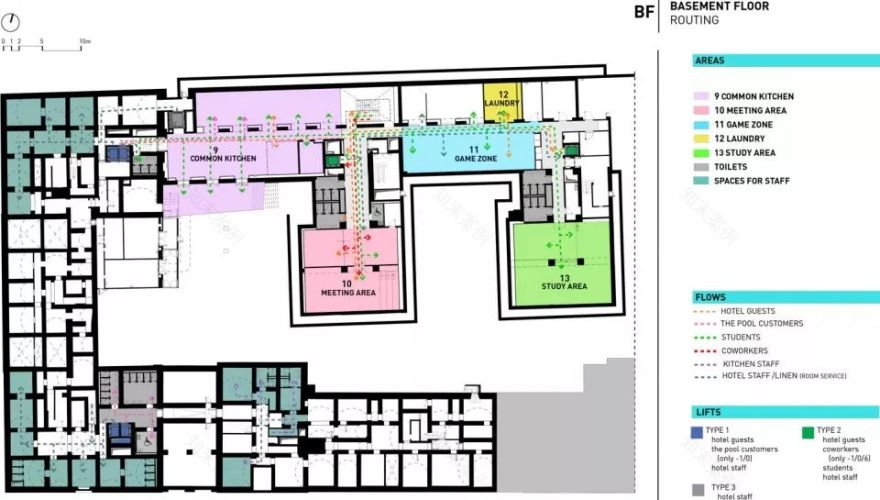
项目图纸
首层平面图
地下平面图
屋顶平面图
===============
筑嘉商业空间设计
(如有侵权请联系删除)
筑嘉商业空间设计以商业空间设计为主,用前所未有的视角,
将设计带进一个充满哲学意味与强烈的感官冲击并存,极端的、富有“攻击性”的领域。
据说点赞转发的人会变美哦~~
客服
消息
收藏
下载
最近






















