查看完整案例

收藏

下载
室内作品•建发玺院6#2302室,
福建漳州
客户: 黄总
方案: 苏小明(设计)、张运波
(效果)
施工图
: 苏小明(
装施
)、陈怡安
(给排水)、吴少平
(电气)
面积: 约120m²,四房两厅两卫
项目年份: 2021
项目概况
项目位于福建省漳州市龙文区碧湖生态园西侧江滨路北侧湖滨路
7
号。原建筑四房两厅一厨两卫两阳台,改造风格为现代简约风格。
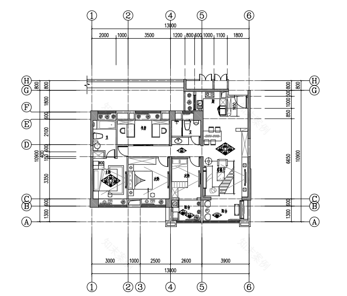
平面布局基本保留原有厨卫阳台布局,四个房间中北侧居中一间为书房,这样南侧每个房间与书房交通都很方便。南侧左边与私卫相邻一间为主卧,其余为次卧。装修风格中客餐厅采用米黄色的地板,主要墙面用浅灰色墙,电视背景墙采用浅蓝色,门框衣柜等用白色,沙花家具用米色。主卧也类似,卫生间采用米色仿木纹瓷砖。灯具采用黑、黄、金等色调。整体风格以浅色为主,同时又不太单调。这样简单而不平凡,让生活更加精彩。
项目区位图
平面布局
房间效果
全景链接:
客厅
主卧
卫生间
喜欢的朋友在下方点个
----相关作品----
室内作品|福建
泉州
•
桥南套房
室内作品丨福建泉州•美欧小筑
室内作品|福建
福州
•
朵伶朵俐连锁店之福州
宝龙、无锡万达、三明店
客服
消息
收藏
下载
最近







