查看完整案例

收藏

下载
诗意场所
建筑是拿捏自如的体块在光线下
神奇、恰当而又绝妙的表演
我们的眼睛生来是观看
光线下的各种形式的
光与影让形式得以显现
几何是光线下最善于展示的
伟大的基本形式
他们的形象对于我们来说
是明确的、肯定的、毫不含糊的
因此,他们是美的形式
是最美的形式
——《走向新建筑》1923年
01
光与几何
光影的人为性建构空间的几何形态
建筑是一种关系,一种纯粹的心灵创造,抽象的、静寂的、纯粹的、几何学的空间创造。建筑空间内部自然与人为地导入了各种光的启示,感受空间的力量,让人与精神共振。
项目位于广东佛山的中国陶瓷总部基地,作为欧文莱总部公共空间与品牌体验中心,是一次品牌形象的升级工作,承载着接待与展示体验为一体的多维度空间。
△图源网络
△图源网络
将细微的主观感受转化成技术参数
以挑剔的眼光探索产品与人的边界
品牌定位
欧文莱素色瓷砖是创新性地将人对瓷砖细微的主观感受转化成技术参数,把素色美学与现代制造技术相结合,基于自然、现代元素以及人文创作的纹理,从触感、视觉、功能创新上设计研发瓷砖产品。颜色上以高级灰素色调性为主;纹理题材是在自然材质上融入现代人文美学创作,强调自然与时尚的元素融合;尺寸以岩板等大规格为主。主打具有独特审美眼光的消费群体市场,推崇现代舒适、简洁纯粹的格调。
通过建筑、空间、几何与光,构建出材质机能场景来阐述对产品的认知,一种有导向性的艺术美学价值体系。
品牌探索
基于一个代表中国创造力量进行了23年国际化的瓷砖品牌,设计既要符合当代与探索未来的创新逻辑,同时要尊重品牌的文化与内核,深挖欧文莱尊重自然,强调素色美学,纯粹的品牌文化,通过建筑空间与光,用自信的态度来阐述我们对产品的认知。尊重自然、和谐共生。
02
破冰逻辑
如何呈现未来的品牌展厅,如何破冰,这是对中国陶瓷展厅固有定势的一次实验性思考。
△陶瓷行业现状展厅示意
设计探究
从商业行径中的思考
设计师正在一个行业里制造一个正向的事件
一次兼具把握与冒险的探究
去样板间去展示的统一化,产品表现的思考,不再是为了产品而产品,而让产品与空间与自然与人,同时与时间产生共鸣,是艾克建筑对中国陶瓷展厅的,一次兼具“把握与冒险”的探究。
自由维度的平面为多元的材质系列腾让出呼吸空间,展示产品本身的性格。
释放空间的柱网,充分获得一个自由轻松的空间逻辑的同时梳理参观动线,让客人可以按照设定的路线感受全部产品,参与到每个空间节点中。
通过空间的多层次状态,多维度的设计技巧为多元的材质系列腾让出空间,产品在空间中呼吸释放微状态。
03
让产品与空间的事件进行对话
如何以设计的技法脱离现实状况之外的可能,探索材质多元的使用维度,是设计师对当下命题发出的思考。
38款岩板,适用于54个空间细分区域,产品丰富,实现高效且多样性的展示是陶瓷展厅的基本诉求。产品过多,空间容易出现乱象,而想要解决这个问题,我们需要通过严密的计算来体现产品的搭配,强调空间的整体感。岩板与金属玻璃等材料的结合运用,岩板赋形于橱柜柜体,家具,吧台等空间中的运用,从而让产品产生更大的价值表现,让产品与空间的事件进行对话。艾克建筑认为这对产品的运用有很好的示范意义。
空间阐述
以高耸的空间反向降低高度,让场景形态有趣与富有力量感。
接待前厅,打破原本高耸且封闭的空间,降低天花高度的同时让空间的形态有趣与富有力量感。
立面的视觉延伸,使空间层次更加丰富,有效地解决了空间封闭所带来的压迫感。
导演一出触摸行动,
互动解读的参与感从而产生记忆点是“设计”出来的行径。
品牌展示以一种互交的概念呈现,空间12根方柱与品牌发生了关系。品牌展示采用多媒体触摸体验的形式,人必须经由触摸岩板获得产品信息。与空间的整体结合,目的在于让人在解读欧文莱品牌的过程中更有趣,更加有互动性与参与感。而这个过程也会让人更好地产生记忆点。
空间功能的对搭,
冲撞的情绪是“特意制造”的情绪和感受被无限放大。
空间中设计师置入了几个灰空间,作为空间节点的链接,让人在进入空间高潮前有一段平静,制造更加强烈的震感与惊喜。人的情绪和感受被无限放大。
创造富有力量感的形态,利用光引导形成的触感,
产品的质感被表现到极致,且是“自然”的状态。
穿过柱网,进入20米的中空,人会从压迫感中得到释放,自然光透过富有几何构成的钢结构,穿透玻璃,进入空间与岩板发生关系,随着时间的变化感受情绪的起伏,享受光带来的愉悦。同时进入了整个事件的高潮。几何形体的空间形态与尺度,突显岩板大规格的特点,岩板的自然质感在光的作用下也被表现到极致。人会被空间中静谧的光、富有力量感的形态以及自然的触感所感动与吸引,在这里可以产生各种状态、思绪与场景。
光与几何形态碰撞发生的物理反应
用建筑美学的方式以此放大产品的高级感
产品展示空间延续空间整体思考逻辑,解决产品展示问题,将产品分类成四个体系,让多种产品通过空间的平立面以一种纯粹的状态展示出来,光与几何形态发生反应,用建筑美学的方式,既阐述了空间的自信同时放大了产品的高级感。
探索多维度下的产品运用,激发观者对空间的感知认为是产品气质的释放,这是设计引导的结果。
容纳销售场景下的多元产品体系。与此同时,亦能构造出独属品牌调性释放的空间艺术美学,空间与光影刺激观者对产品释放出更多的想像力,创意力,感官力,而此种艺术美学感知恰是反哺于产品的价值体系之中。空间「附能」于产品,产品建造得到空间,构造三角稳固的品牌系统……
光影自由流动的状态糅合产品层次感的边界,对材质的细微的主观感受转化成空间的状态输出。
激发材质的性格,直向展示产品,去中心化与焦点性,糅合产品,空间,与观者的感官,更趋于自由与流动的状态,将产品与空间融合,挑剔的眼光审视产品与人的边界,让“美好”与“惊喜”自然发生……
空间行进中制造一个激进但是又缓慢的过程
导演出戏剧化的情绪体验,这是一出设计的预谋
艾克建筑由此制造了一个激进但是又缓慢的过程,酝酿产品与人、空间、自然、时间的关系,将空间互交、节奏控制、对光的思考纳入优化的动线与人的行为尺度,软化原本生硬冰冷的空间,有效展示产品与品牌阐述的同时形塑空间精神。
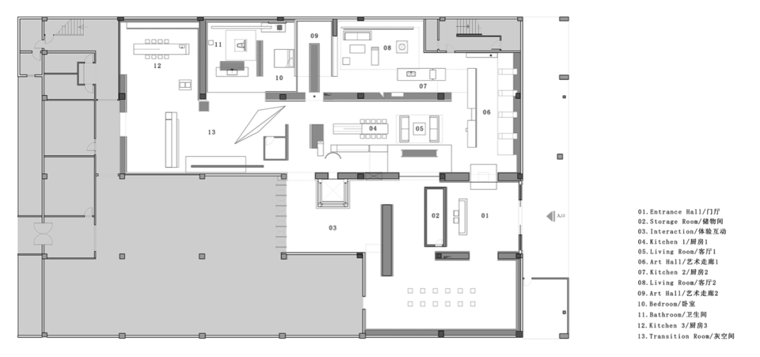
△平面图
△空间剖面图
项目名称|追光·欧文莱陶瓷总部
项目地点|中国 广东·佛山
建筑面积|890㎡
设计机构|艾克建筑设计
总设计师|谢培河
软陈艺术装置|艾克建筑设计
主要材料|岩板、艺术漆、不锈钢、亚克力
设计时间|2021年08月
竣工时间|2021年11月
项目摄影|欧阳云
人心与空间同振共鸣,即是遇见美好
AD艾克建筑设计(深圳)致力于建筑及室内空间独特视角的设计与研究,为每个项目打造卓异的视觉艺术。团队拥有突破自我界限的决心、国际化的设计视野和系统化的项目管理策略,坚持以探究性的态度来实践空间创作过程中人与物、人与人的交互关系。
AD艾克作品已在全球范围内获得广泛认可,近两年囊括英国Andrew Martin国际室内设计大奖,英国餐厅&酒吧设计大奖,缪斯设计奖,美国建筑大师奖,英国《世界室内新闻》杂志大奖,德国国家设计奖,红点奖,ICONIC AWARDS Best of Best至尊奖;美国IIDA全球卓越设计大奖,Interior Design杂志Best of Year Awards大奖;英国FX Awards,WIN Awards,LEAF Awards,Blueprint Awards;荷兰Frame Awards;亚太室内设计大奖赛APIDA等国内外权威荣誉。
谢培河 ∣ Xie Peihe
AD艾克建筑设计创始人及总设计师
2020、2021 Golden Trezzini Awards 评审
2020 LOOP 设计奖评审
谢培河怀抱强烈的情感张力和原创精神,主张以感性丰富驾驭理性简约,高妙且自然地融合空间功能与个性。在简单与复杂的动势中呈现空间美学,让人心与空间精神同振共鸣。
凭借商业、住宅和办公领域的一系列极致空间作品,在过去几年内斩获了一系列国际知名奖项。其独具先锋性的“极简派艺术”空间设计语言,也已融贯东西方的认知并在全球业界得到极高的认可。现受邀成为2020年俄罗斯金特列吉尼建筑与设计奖(2020 Golden Trezzini Awards for Architecture and Design)的国际评审之一,该权威级奖项以“建筑即艺术”为箴言,评审席中包括Daniel Libeskind,Mario Botta,Toyo Ito,Ricardo Bofill等建筑名师。同时受2020年LOOP设计奖(LOOP Design Awards 2020)邀请,成为此初创奖项的首届评审之一。亦于2018年被香港Perspective透视杂志评选为“40位40岁以下优秀设计师”之一。
代表作
▽
△ANBONG HOME 艺术涂料展厅
△吴会所 Wu Club
△GENTLE L BY ALAN YU 法餐厅
△哈尔滨SOOYOU美容院
△红盒子
△Novacolor艺术漆展厅
△衍生-TRONGYEE设计师品牌集合店
如您需要设计
延伸阅读
EXTENSION READ
▽
2022年最新80款衣帽间设计 | 不管你是大房子还是小房子,统统装进去
什么是室内居住空间
的无障碍设计?
客服
消息
收藏
下载
最近






























































































