查看完整案例

收藏

下载
地址:台北市, 中国台湾
室内设计: Studio In2
面积 : 145 m²
项目年份 : 2020
摄影师 :Jackal Liu
由于原始建筑外部有一个超大的回型走廊,且建筑与隔壁邻居建筑之间视线距离较近,设计师第一步首先将原始零碎的墙面重新整合,利用似建筑皮层般的设计概念,制造室内看向室外的视野景深。
在三面采光、半高窗景围绕的建筑体块中,创造一过渡的廊道空间、一个室内外连结的媒介,模糊、打破室内外透过窗户的直接视线,使想象、视觉、感受多一个层次,同时在室内走廊通过多处开窗来满足各种实用的机能。
将原结构柱、墙串联整合成为廊道、门片、书桌、书架、窗帘等机能设置,其余墙与墙之间的空间便适合移动、收放常使用的家电用品,形成多功能的内廊空间。
规矩、工整的抽象符号使用纵横排列营造书卷气息,为来自和屋主风格的连结,并利用曲线、穿插、色块比例等手法在空间中增添象征设计与艺术的语言。
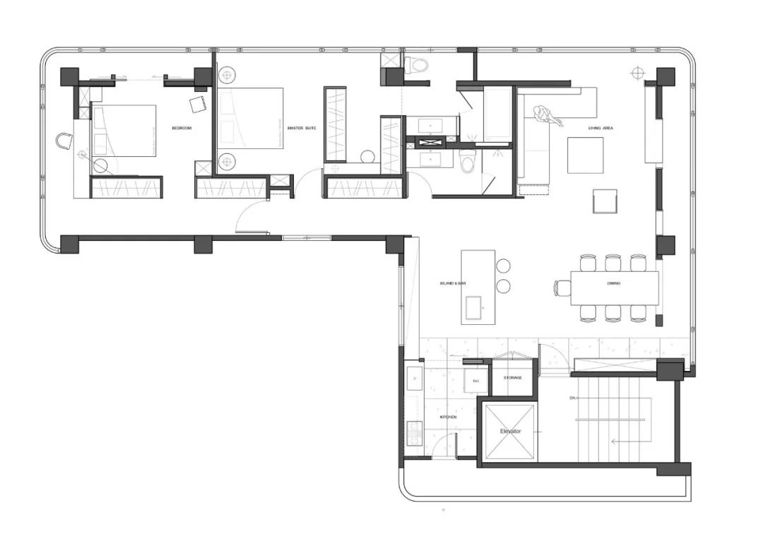
▲项目平面布置图
视频解析
往期推荐
2022《花西户型优化集训营》学员招募中
花西每日方案总目录(2019-2022)
方案合作
合作:HUAXIKF2
客服
消息
收藏
下载
最近
























