查看完整案例

收藏

下载
“逛南京像逛古董铺子,到处都有些时代侵蚀的遗痕。你可以摩挲,可以凭吊,可以悠然遐想;六朝的兴废,王谢的风流,秦淮的艳迹......”(朱自清)
历史洒落在金陵的脂粉与文墨,使得南京的贩夫走卒都带上了绵长的况味,而金陵养育的女儿们更有着六朝烟
水气。
本案业主
就是这样一个南京女孩,把江南的温婉、细腻、精致带到了北京家中的角
角落落
。
一个人、一所房子、一方庭院、两只猫,用一种宠辱不惊的从容气质让毛茸茸的生活一天天在这里有滋有味地生长。
物质与精神双向独立,这个90后南京女孩除了江南的细腻,还有一股韧劲
,知道自己想要什么,然后毫不退步的去实现它。
从装修开始到项目结束,所有的环节全程参与。可以为了确定尺寸,晚上驱车一个多小时从昌平到朝阳找设计师面对面确认;上班太忙,可以在公司楼下咖啡厅跟厂家聊一两个小时,只为达到百分百的零误差;晚上自己亲自跑工地,看到一些小问题会留下便条给工人......
雪瑞Shirley / 鲍勃Bob
你无法想象一个垃圾桶都看不到的家会精致成什么样!
ABOUT ROOM
房屋信息
户型:
3 室
使用面积:
150.0 ㎡
项目风格:
美式
房屋位置:
北京 昌平
主案设计师:
蔡黎
软装设计师:
杨杨
设计机构:
香港高迪愙设计事务所(北京)
▼
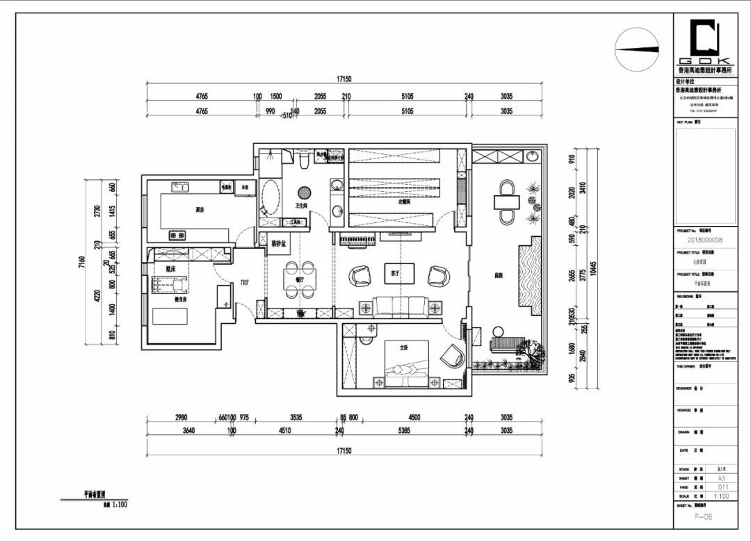
户型分析 UNIT TYPE ANALYSIS
本案原来是一个下跃的复式,业主在购置这套二手房的时候,只买了负一层,150㎡外加一个30㎡下沉式庭院。这样的面积相较于
只有一个人、两只猫的生活可以说非常惬意了。所以业主的最主要需求是将生活品质最大化,以及方便两只猫的活动。
①
将楼梯封掉,上下两层分开,楼梯间改成厨房
②
将两个卫生间打通合并成一个
③
将三居保留一居,另外两个分别改成衣帽间和健身房,重新调整门洞位置,动线更加合理。
④
庭院局部景观设计+休闲区
▼
玄关
Entrance
入户玄关正对位置是楼梯间改后的厨房,这里我们做了一个双面色隐形门的设计,棕色与门外玄关环境一致,而背面采用墨绿色,与厨房环境保持一致。
▼
厨房 kitchen
一进厨房,一股自然复古的气息扑面而来,大面积的墨绿,
尽管明度很低,却不晦暗,它与生俱来一种安定的个性,气质典雅,可饱满可浪漫可乡村。
同属自然色系的暖木棕,给空间添了一份温暖亲和。
除了高颜值,嵌入式冰箱,烤箱、蒸箱等等功能也一应俱全,
业主是一个及其细致的姑娘,大到柜体与电器的契合尺寸小到金属拉手的间距都反复与设计师和厂家确认,精准到毫米也不夸张
。
看到最终呈现的效果,一切都是值得的。
即使是厨房也会装个书架,摆上鲜花,小推车也是统一的金色。
金色配件是提升整体质感的关键,与整屋定制的墨绿色橱柜,明度一高一低,冷暖对比,成就一种非常经典的轻奢与时尚。而白色大理石台面光洁硬朗,提升整个空间的亮度。
从中世纪和文艺复兴流传至今的美学里,我们可以瞥见欧洲中古世纪的精致生活
,
一幅达芬奇《抱银貂的女子》,在
这个弥散着古典情怀的厨房里刚刚好。
厨房是最容易反应一个人生活状态的地方,
而这个是不允许有“外来杂质”的厨房,大理石台面的金色方块其实是一个嵌入式垃圾桶的盖子,水盆前的小泵头则是隐藏的洗洁精,从挂钩、水龙头到一切细碎餐具全部都是统一的金色。
▼
客厅 living room
客餐厅区域是Shirley和Bob的主要活动场所。所有的家具都是本着不会被挠坏的考虑去定制。因为猫毛比较多,这一区域的棉麻和织物用品也比较少。
石膏线造型、文化砖背景墙、美式橡木家具营造一股淡淡的美式乡村气息。而浅咖色的墙漆,在灯光的作用下,呈现出一种柔和的肉粉色,温馨舒适。
定制的橡木家具,质重且硬,耐磨,而且纹理很清晰颜色温厚。
白色竖条纹造型的护墙板作为电视背景墙与整体风格和谐统一,又有着自己独特的小别致。
整面墙的玻璃推拉门,能更好的向室内引入光线,因为在负一层,环境相对独立安静,客厅做了一整套环绕式音响,也不会打扰到别人。
跑了三家店才凑齐一套样式颜色配对的古铜拉丝把手,所有的细节都是业主与设计师仔细筛选,一点一点打磨出来的。
▼
卧室 bedroom
主卧槛窗,窗为虚景为实,将居室往外延伸,目之所及,就是一幅画,一年四季,朝朝暮暮。
▼
衣帽间 cloakroom
原本的三居只保留了一间卧室,其他两个空间分别改成衣帽间和健身房,将近15㎡的衣帽间,鞋子、衣服、饰品按区分开,互不干扰,方便整理和查找。
▼
健身房
recreation
健身房其实是一个综合的娱乐区,满足健身、跳舞、唱歌多重功能,还有一整套的灯光设施。
▼
卫生间 bathroom
由两个小卫生间打通后的主卫,更加宽敞舒适,也能满足更多的功能。
打开柜门的时候,我们都有点震惊,满满一柜子码放整齐的各种清洁工具,生活原来可以精致成这样。
这是一个精致到找不到垃圾桶的家。
洗手台边是跟厨房一样的嵌入式垃圾桶,而马桶边的垃圾桶和手抽纸则是嵌入在柜子里。
由于是一个人,所以的空间都是以业主自己的便利和生活习惯为主,这里设计了两个嵌入式洗衣机分别洗不同的衣物,还有烘干机,一应俱全。
▼
庭院 courtyard
“住在这山里,亲眼所见这四季的更替,我才真正体会到了一年三百六十五天的真意”
每个人或多或少都有小院情结,江南人更甚,在北京这样的城市,
能
有一方自己的小院收容春夏秋冬的花开花落,庭下品茶,院中闲读,足以生动所有的日常。
庭院外墙
庭院设计图
这是一个完全下沉式的庭院,整体的玻璃封顶,让空间可以不受天气的影响,按自己的喜好来设计。
庭院的正中间是一个文化石水幕墙,幕墙上面三个高低错落的出水口,组建一个简单的水系景观。而两边是两个独立的功能区。
装修前与施工中的庭院
小院靠近屋内的这面墙用硅藻泥刷出粗糙的纹理,自然朴质。另一面以景观为主,砖墙水景、植被花丛,地面则是砂石小径,所有的一切和谐有序,相辅相成。
茶区,绿植墙与花架相对而立
。阳光带着斑驳的树影洒进小院,躺在地上、墙上、柜子上。
“欲过清明烟雨细。小槛临窗,点点残花坠。”,仿佛没有槛窗就没了院子的灵气
。木格
窗将江南的娟秀带了过来,推窗望外就是“
笔墨纸砚诗酒茶
”的生活。
白桦木花架、爱奥尼亚柱式雕花柱台上放着精致小巧的黄铜色水壶、罗马花纹的石坛插放画轴,中西交融,古典又带着书卷气。
小憩或是闲读,一个人独处的时光就这么开始了,
这是最好的状态,我与世界相处,又是怎么样的丰盛。
消磨完一个下午的时光,慢慢笼上一层稀薄的夜色,清亮灯光穿水而出爬上石墙,这就是这个家日常的一天。
如果今天还碰巧
读了首好诗,听了首好歌或看了幅好画,那么就太欣喜了。
生活的所有模样都是我们自己的模样,从锅碗瓢盆到琴棋书画每一样都记录着我们成为怎么样的自己。时光带着最大的善意,慢慢让生活生起包浆皮壳,变得圆满温厚。感谢遇到这样的业主,让我们看到那些美好生活的样子。
客服
消息
收藏
下载
最近















































