查看完整案例

收藏

下载
以往的旧屋翻新大多会做格局的变动,让空间更适合屋主使用,而这次一样是旧屋翻新,但是独特的无梁建筑,原始可更动的隔间较少,就将卫浴置于中心,其他空间就以围绕式呈现,入门后的左拐右弯,都有了不同表情,将可利用空间发挥到最大,完美的破解六角型钻石格局。
玄关
入门玄关就以白色为基底,搭配上穿衣镜,利用光线折射让小巧尺度的空间有放大效应,大器当中带有精致质感。
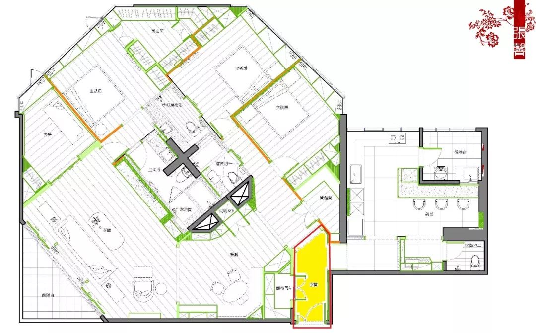
置鞋间
考虑到屋主一家的鞋子数量,特意规划出置鞋间,L型的收纳柜利用活动层板,大型电器、行李箱也可以有位子摆放收纳。
餐厅
左手边第一空间为餐厅,考虑到屋主一家的用餐习惯及格局限制,摆放上方正餐桌,会使动线不便,因此改以轻巧尺度的圆桌,利用卧榻,加大座位数,偶尔朋友来访也能转变为下午茶区,成为多功能使用的区块;
另一侧以玻璃展示柜,让屋主可以展示旅游收藏。
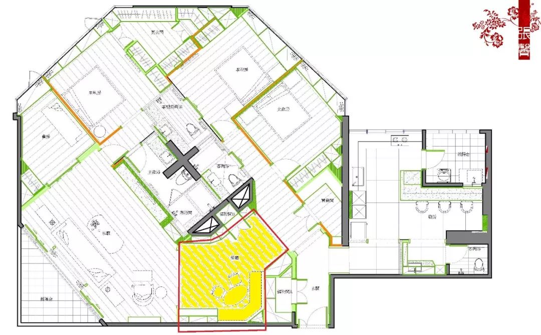
客厅
客厅以柔和浅灰色彩营造出典雅气质氛围,斜角切出壁炉,带进温暖意象,挑选略重色的家具,让色彩比例平衡,颠覆想象以沙发椅凳作为茶几,创造出空间亮点视觉。
书房
以轻透玻璃格子门隔出书房,淡雅花卉壁纸搭配上典雅家具,营造出安心的小角落,不管是静心阅读,或是与朋友拜访,都有隐私空间。
厨房
厨房,仿照餐厅吧台,设置轻食用餐区,屋主的早晨可以轻松悠闲,下方为收纳柜体,充分利用空间,让屋品都能整齐摆放;
卧房
卧房,就以简单白色刷漆保持壁面的干净,加上精致壁灯,呈现温馨氛围,家具软装色彩以柔紫色铺陈出屋主的典雅气质。
小孩房
孩子房延续主卧风格-清新淡雅,也许有点空白,那是为了孩子可以自由填进对于未来的想象。
孝亲房
给长辈准备的孝亲房,就以温温色彩铺叙出人生的朴质,利用软件的色彩让空间具有活力表情。
廊道
廊道围绕着中心的卫浴空间,周围皆以收纳机能为主,充分利用空间,也注重氛围塑造,适时的添加灯饰,使整体空间更添精致度。
看来头疼的特殊格局,其实只要巧妙区隔空间、设置妥当,依然可以拥有开阔的格局空间,不强硬的筑墙分隔,改用美式收框,将空间精巧的框起,让陈设成为一道风景;
围绕中心的空间都有着各自表情,像是写作般的起、承、转、合,在这里写下生活风采。
深圳市瀚观室内装饰有限公司
0755-23998156
地址:
深圳市福田区石厦北二街新天世纪商务中心
A座1402B
张馨团队
专注量身定制您的梦想居家生活
客服
消息
收藏
下载
最近




















