查看完整案例

收藏

下载
作为一位建筑师,
考虑场地及周边因素,
做好场地设计,
揣摩建筑空间的丰富性,
做好空间设计
是最为必要的。
所以本次抄绘,
请仔细品味哦~
1
项目概况
项目名称:松山湖图书馆
设计机构:天津华汇工程建筑设计有限公司
项目地点:广东省东莞市
占地面积:15121㎡
设计时间:2001年
建成时间:2005年
松山湖图书馆位于东莞市松山湖科技园区,园区规划从结构到理念都很有特点,在规划设计中保留了大量原有的地形地貌,尊重自然环境,提倡建筑与环境的相生相融的关系。综合规划结构和环境因素,图书馆设计理念得以明确:充分利用基地的高差及环境特点,强调建筑与地形的契合关系,保留原有树木,并尽量控制好建筑的尺度,使图书馆建筑在带有自身独特风格嵌入环境的同时,融合并悄然的改变着周边环境。
此外,图书馆设计团队也十分关注自身与相邻建筑的关系。为此设计之初便与相邻地块的建筑师一起交流讨论,进一步制定了三者之间的群体关系,并达成了设计原则上的三大共识:1、保持自身地形,并共同围合出基地中的一片自然湿地;2、高度均控制在三层之内;3、体量上以顺应地势的条形布局为主。规划原则的确立也为建筑与建筑,建筑与环境,建筑与城市间的形成了多重有机联系。为此,我们调整了部分规划细节,力图保留现场的那片湿地,但遗憾的是当建筑完成时,湿地因为施工原因被破坏了,后来新做的环境已没有了最初的感觉。
2
基地条件
基地周围自然植被丰富,为保留南侧古树,建筑北移布置,同时,建筑结合山势减少对自然生态的破坏。考虑到与周边环境的关系以及与临近地段同时设计的两座建筑取得呼应,我们与其他两位建筑师制定了共同的高度控制线,因此将一些次要房间埋在半地下,结合采光庭院形成了丰富的空间。此外,基地原有一条小路,设计时考虑保留基地地貌肌理,将L型体量转折处设计为开放空间,小路从其下穿过,人们沿小路拾级而上,遥望到远处的荔枝树,可选择进入图书馆,又可穿越图书馆进入广阔的田野,形成了建筑与周边环境的有机融合。
3
建筑策略
◆
应对坡地:
顺应地势,条形为主。L型形体围合湿地,尽可能保留地貌肌理。
◆
应对古树:
保留南侧古树,建筑北移布置,结合转折处开放空间。
◆
应对小路:
保留小路,并处于悬挑空间下,通过小路可以选择进入图书馆,又可穿越图书馆进入广阔的田野,选择多样性。
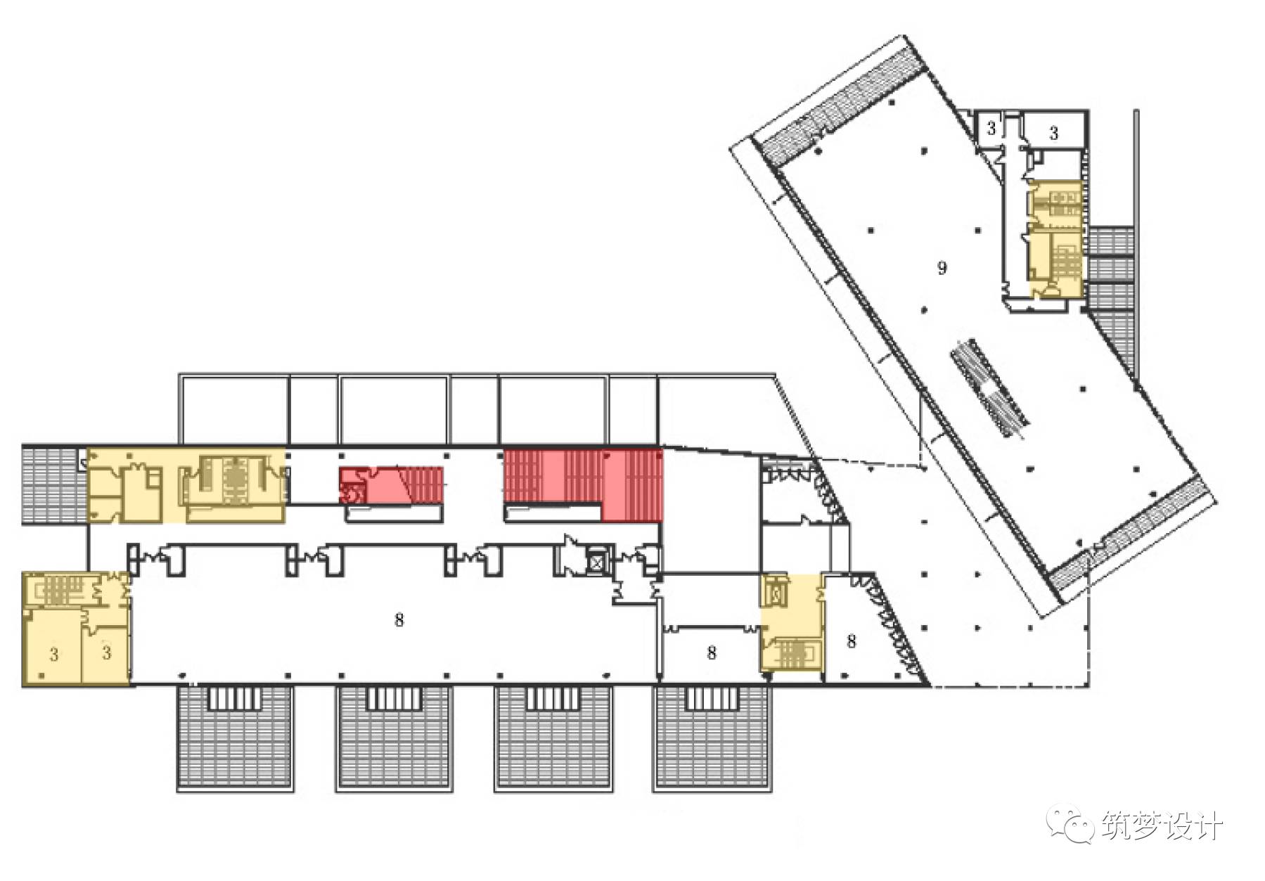
4
平面布局
一层平面图
二层平面图
三层平面图
四层平面图
在形体布局上,沿坡地等高线平行布置的体量对应传统的纸质阅览功能,与之垂直布置的体量对应电子阅览功能,同时从电子预览功能部分斜穿出的悬挑形体不仅打破了单纯的L形构图,其角度也与园区道路相垂直,暗示了建筑主入口的方向。园区主要人流沿着悬挑空间下的坡道拾级而上,当人们行至L形体量转折处的架空开敞空间,远处的自然风景将尽收眼底。体量的穿插和转折形成了建筑与环境的互动,建筑与环境之间也因此建立了良好的对话关系。出于对建筑体量以及高度的控制,图书馆的藏书部分位于地下,并通过部分下沉庭院解决书库的通风采光,地下的连通也将地面的功能联系为一个整体。
5
抄绘注意
形体篇
设计师对于L形拐角处的处理也十分巧妙,在快题设计当中通常会遇到不规则形状的基地,为适应周边环境,会采用这种将两个体量旋转一定角度相互交叠的手法,具有很强的方向性,可以作为观察窗适应周边景观。
大面积的立面处理,首先层数的区分,其次是立面虚实的结合。
空间篇
图书馆类型的大小空间的组合,将底层小房间体块分隔,一方面为了采光通风要求,另一方面创造了一定的室外空间。三四层的阅览空间则做成相对完整的空间,方便使用。
图书馆门厅、交通核、目录和阅览的关系以及内部斜向空间处理。
大楼梯组织三四层的阅览空间以及辅助空间的整合。
运用同样的手法,四川美术学院虎溪校区图书馆内部楼梯。
视频大放送~~~
专业类设计培训机构
北建大科技创新项目
联系地址:北京建筑大学(西城)创客105室
(“筑梦筑梦”全拼)
筑梦讲堂YY频道:79949759
建筑考研交流总群 365143168
规划考研交流总群 417646701
手绘设计表现群 547678113
WELCOME TO OUR STUDIO
客服
消息
收藏
下载
最近





















