查看完整案例

收藏

下载
中国顶级家居微刊 最受欢迎家装类公号
柠檬树装饰家居设计
回复数字“
1
”,获
3000套案例图
写在前面
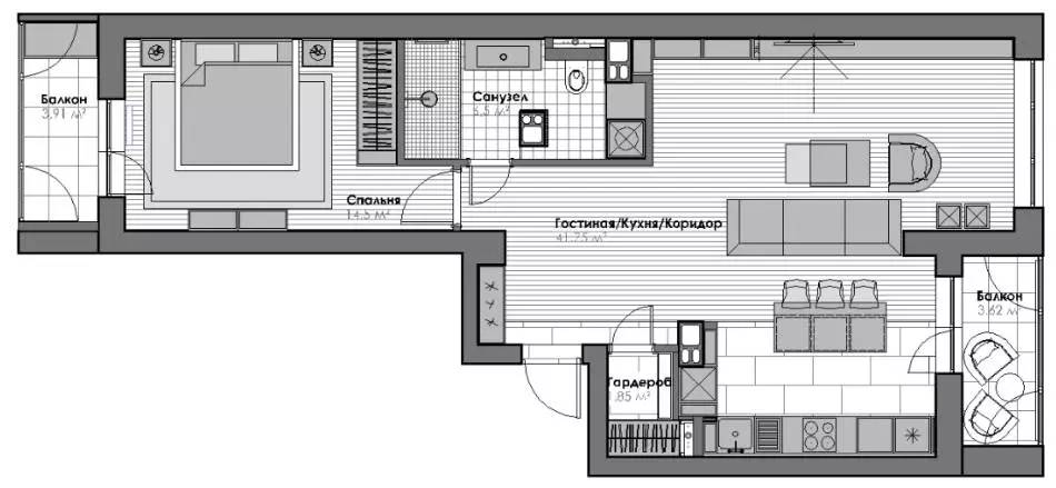
小户型改造一直是家装中的一大难点,小户型一居室如何能够装好?如何满足将来生活的种种需要呢?
一套60m²的一居室,因为户型过小导致生活的各种不方便,为此,他们特意请设计师进行了一番“爆改”,究竟效果如何,一起去看看吧。
L型的房子,功能间的布局最是紧要了,很多人会忽略卫生间的设计,其实影响整体空间的利用,恰巧就是这种小空间!
夫妻俩对玄关的要求就是一定得宽敞
除了必要的收纳柜之外
全身镜也是少不了的
还有有照射灯,保证光源足够亮
玄关的左侧墙是卫生间的外墙
被刷上了一层黑漆
墙面上用一幅纯白版画装饰
零星的点缀倒还有几分艺术感
在外墙的另一边
则被设计成了书橱的模样
可书柜的空间并不大
周围大量的留白难道是为了这两株植物吗?
客厅的陈设看似随心而欲
实则但在每一个节点上
都充满了对细节和设计的追求
配色和软装都异常的精致
客厅后边是开放式厨房和餐厅
一小面墙作为隔断,更加的有层次感
沙发的色彩其实并不沉闷
更多的是一种简约精致的质感
夫妻俩有点执着于空间的整体性
所以卫生间表皮外的书架
与客厅中的茶几、沙发
融合的非常好,过渡的十分自然
从餐厅的角度看向电视
浅灰色的电视柜和背景墙
完美的融合了,整体性很棒
紧凑而有序,
简约而不简单
这便是小柠对客厅最深刻的印象了
厨房,繁琐物件最多的地方
在夫妻俩的设计下,一切迎刃而解
靠墙边设计,可以说是最适合的方法了
L型的厨房布局设计
将必备的电器与灶台区完全分离
让家中的行走动线更为优化
入墙式的壁柜
与一旁的冰箱,合二为一
烤箱和碗具,则放上拐角处的橱柜中
餐桌也能作为一个收纳柜
主卧中靠墙的大衣柜
实际上也是个一物两用的设计
侧面摆放装饰物品,
正面存放衣物
户型小,卧室的面积也小
所以用隔板来增加置物
增加了更多的储物空间
留给卧室的活动区域就变得更多了
化妆桌搭靠在置物柜的一侧
并且在墙角的地方
还放置了一块玻璃长镜
看一下这个加宽后的床头板
它的内部隐藏了一个超大的储物柜
而且在其内部还增加了一条灯带
整个墙面变得更加明亮了
在阳台窗户边安装一个置物架
再摆放些许的瓶瓶罐罐
种上一点绿色小青菜
阳台也能活出小菜园的滋润
虽说是高空处的建筑
但也丝毫不减田园乐趣
坐着沙发看着窗外的美景
真真真是羡煞我也呀~
干湿分离设计的卫生间
斑驳的瓷砖也是一大特色
厚重的大理石洗漱台面,有很质感
空间的整体感觉十分精致简约
储物有序的入墙式壁柜
以原始的隔断墙
将其与洗浴间的湿气隔开
设计得层次分明,功能齐全
客服
消息
收藏
下载
最近






















