查看完整案例

收藏

下载
自在轻生活,都市美学岛屿
Relax your life , Urban Aesthetic Island
公区 | 清爽· 治愈之力
大堂内部空间层次分明,前台区域简洁明快,休息区则更加舒适放松,满足不同客人的需求。
客房 | 宁静 清爽
步入轻居酒店的客房,迎面而来的是一股宁静与温馨。
这里没有传统酒店的繁复装饰,取而代之的是一种简洁却不失格调的美感。
房间的墙壁颜色淡雅,与窗帘、床罩等布艺品的色调相得益彰,营造出一种和谐统一的视觉效果。
这种色彩的运用不仅让房间看起来更加清新自然,也给人一种放松愉悦的感觉。
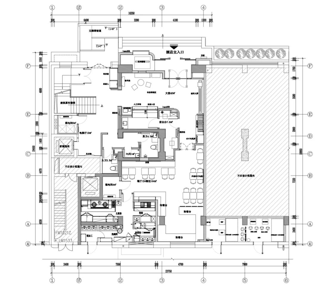
项目平面图
项目名称 | 北京国贸朝阳合生汇轻居酒店
项目地点 | 北京朝阳区西大望路19号院13号楼
项目面积 | 2164㎡
完成时间 | 2025年
设计公司 | 非设计
项目用材 |热压钢板,水泥漆,蓝色质感艺术涂料,小巷石凳,本色镜面不锈钢等
非设计由陈非于2009年创立,是北京睿智博成室内设计公司旗下品牌。专注于国内外中高端酒店设计与商业空间设计。致力于为酒店提供全案设计,迄今为止为国内外众多酒店品牌提供设计服务。
客服
消息
收藏
下载
最近












