查看完整案例

收藏

下载
大概粗略了一下现在的商品房,大多户型都不会分割太细除了卫生间和卧室这种私密的空间必然存在,玄关、储物间、餐厨空间等很多都被归置到一个开放空间里,或者只做了简单的空间隔断并完全封闭,客餐厅和餐厨一体成了一种最常用的空间设计,也逐渐流行了起来。
所以,怎样才能处理好这个大开间,如何合理安排餐、厨空间,也就成了设计师们需要重点解决的问题。今天就根据餐厨空间设计为大家整理了一个新案,让你家的装修焕然一新吧!
餐厨一体设计
开间左右两部分大小均等相当,厨房与客厅一左一右,为了保证势力均衡可以考虑将厨房与餐厅相连,独立出宽敞的客厅空间。
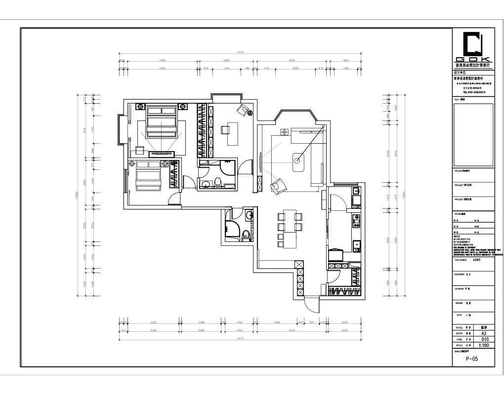
★案例一:餐厨空间相邻
建筑面积:
120 ㎡
房屋位置:
太阳园
项目风格:
现代
设计师:
王志
设计机构:
香港高迪愙设计事务所(北京)
餐厨相邻,厨房做开放式或半开放式,常用玻璃门做搭配,将摆桌上餐的距离缩近也方便了日常,且能让用餐者和烹饪者多了沟通与交流的空间。
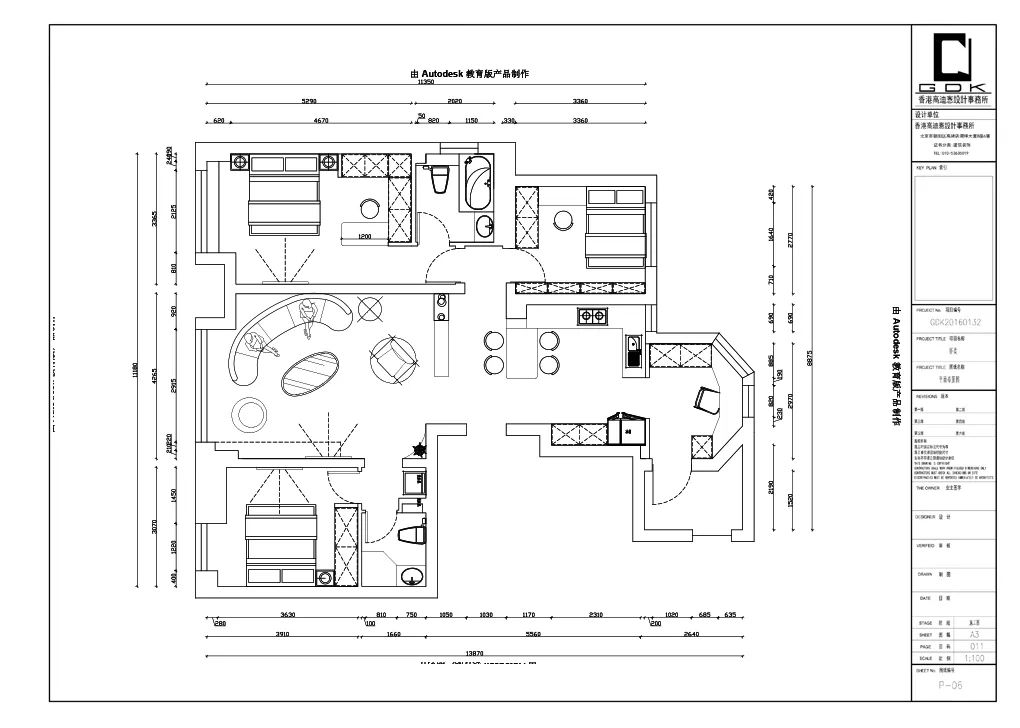
★案例二:餐厨空间融合
建筑面积:
134 ㎡
房屋位置:
京贸国际公馆
项目风格:
现代
设计师:
顾弢
设计机构:
香港高迪愙设计事务所(北京)
近段时间较为流行的开放式餐厅设计打破了空间禁锢,让空间更为通透,以环绕式做橱柜烹饪区中间加入餐桌位置,可以将餐桌与中岛台相结合,既能合理优化动线增加厨房的灵活性也不会影响用餐。
★案例三:餐厨一体吧台设计
建筑面积:
70 ㎡
房屋位置:
青年汇佳园
项目风格:
现代
设计师:
刘文彬
设计机构:
香港高迪愙设计事务所(北京)
吧台设计对于小户型非常友好,将餐桌与橱柜、岛台结合,能最大限度的缩小餐桌占用的空间还可以划分出功能空间。大户型除了独立的餐厅空间在厨房多加一处吧台卡座可以用来品酒放松,也是一个不错的选择。
客餐厅设计
也有些户型没有特别规整方正或是有独立的厨房空间,那么此时的餐厅就可以考虑与客厅结合化解超大的客厅太过空旷。客餐厅是当下非常流行的设计,利用餐桌、餐厅灯来给客厅做修饰也是不错的方法。
★案例四:客餐厅,抹去功能束缚
建筑面积:
100 ㎡
房屋位置:
三里河
项目风格:
现代
设计师:
刘宾
设计机构:
香港高迪愙设计事务所(北京)
客餐厅设计一般有左右搭配和前后搭配两种形式,但都是去掉了两个空间所有的墙面阻隔,餐厅以桌椅、吊灯的简约形式出现,干净利落。没有墙面的遮挡单独看客厅或单独看餐厅都会显得开阔敞亮、无拘无束,客餐厅还能增加家人的活动和用餐的娱乐时光。另外,餐桌旁加个餐边柜增加储物方便拿取也是非常好的选择。
客、餐、厨三维一体设计
相信会有这样的户型:卧室卫生间并列,留下一个方方正的大开间给客厅、餐厅和厨房。或者户型不大但卧室很大,留给其他空间的面积就小很多。这时候想要保留客厅、餐厅和厨房,选择统一设计规划就是相当巧妙的选择。
★案例五:客、餐、厨统一设计
建筑面积:
70 ㎡
房屋位置:
南十里居
项目风格:
现代
设计师:
刘文彬
设计机构:
香港高迪愙设计事务所(北京)
客、餐、厨统一设计一般中间为餐厅,几乎只有餐桌椅相对简单,开放式或半开放式厨房,以
U型厨房最为多见,倒U型开放式或加玻璃推拉、折叠门,侧U型还可以将中间一侧直接延伸出餐桌,更为精简节省空间。
以上,你了解了多少,学会了多少,要是还在手足无措的话那就找专业的设计师帮你规划一下你的家吧,
诚待叨扰。
E N D
客服
消息
收藏
下载
最近






















