查看完整案例

收藏

下载
别人家的小户型设计从来不会让我失望!
小小的空间内卧室、客厅、书房、卫生间一个不少,处处精致,真是绝了!本次两个设计案例来自木卡工作室,以清新的色调,绝妙的小户型设计手法打造出虽然小巧但是精致非常的空间。
0
1
小而不俗的原木居所
Small and decent log residence
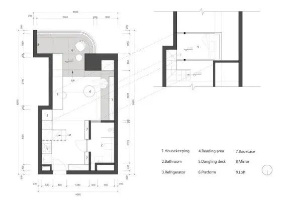
业主希望在不到50平的空间营造一个能够令人情不自禁想坐下来读书的环境,满足三代同堂,二人同时办公,小孩独立学习,还能钢琴演奏,同时需要大量的储物空间,书籍及一些收藏品都需要有地方摆放展示。
▲轴测图
在氛围的营造上,从入门赤脚踏地的那一刻便奠定了这个小而不脱俗的空间基调,“打赤脚是一种生活方式,也看待生命的一种态度。”水泥抹灰的地面自带八分硬度,表面涂有清漆,一尘不染的温润,是大地自带的清凉,不管是冬日还
是夏日都与身体相宜,被书架包围的餐厅,着实让人有坐下安静阅读的欲望。
因此,在空间整合上,进门右手边我们做了一整面的开放柜,视线顺着木质书架感受到强烈而规整的秩序感,转而到了木盒子区域,木盒子内分上下两层,上面小二层为儿童床,下面为软垫休息区。窗边设有儿童书桌,另一边设有工作区,大人孩子可以做到同时工作学习而不互相干扰。木盒子外设有隐藏式封闭帘,拉起帘子后内部自成空间,便成了次卧。木盒子与主公区分隔开,又与书架穿插,整体视觉感受上将南北向的大开间打开,打破了原来的空间规划。
在功能上,我们将最舒适、明亮的南面留给书房、带夹层的儿童卧室、及可变为次卧(父母临时卧室)的客厅休闲区,同时兼具了大量多维度的储存功能给三口之家留够收纳的需求,图书馆式的餐客厅,用极具视觉冲击力的书架墙做氛围背景,满满的承载主人阅读与收藏的乐趣,同时又能展示业主从不同国家带回来的收藏品,赋予物品不同的深刻意义,让意义充盈整个房子。在功能的前提下,让生活多赋予一些予人满足与喜悦的东西,让空间成为随时可以与家人沟通交流的地方,最终呈现出来的状态我们都非常满意。
主卧室的留白墙面原本是想留做投影用,一个猝不及防被男业主贴上地图,满满得标记着到过的国家、城市,让原本简洁的空间多了一个有趣的话题。
▲平面图
项目名称:格
设计方:上海木卡建筑设计有限公司
设计主创:陆凯琳
设计团队:木卡工作室
项目地址:上海市静安区四和花园
建筑面积:50平方米
摄影版权:版权属于木卡工作室
客户:蒋先生
品牌:Hay,西门子,格力
0
2
小而美的极简公寓
Small and beautiful minimalist apartment
建筑师依靠专业与匠心为年轻的设计师业主营造出微型公寓里小而美的极简生活.
▲轴测图
微型公寓最好的资源是窗景与充分的自然光. 建筑师摒弃传统沙发-电视型客厅,通过桦木板制作的地台-书架墙-阅读区域与悬空书桌-伏案区域搭配,使空间整体气质类似一个微型图书馆或工作室. 让特别的空间语言去迎合业主独有的生活习惯.
建筑师保留原始的钢结构阁楼床,并通过金属现场焊接及喷漆打磨,做出极细格栅、扶手线条去呼应金属定制元素.
想让31平米的咫尺空间充分容纳生活起居及学习工作各类业主需求,需要利用好每一处空间做好收纳,例如踏步做烤漆板抽屉,地台下箱体做可开启装置等.
人造石一体式台盆、壁地一体式漆面覆盖、开放式书架以及悬空书桌,设计中处处体现着逻辑与理性的极简美学.
▲平面图
木卡工作室
Muka Architects
做温暖|极简|诗意的设计.
Muka Architects木卡工作室成立于2017 年,创始人张英琦为建筑师出身,并坚持将建筑学与园林的理念带入室内空间设计,提倡“温暖的极简主义”与“东西方结合的人居设计”理念。
关于工作室名字的解释:“木”代表自然、质朴;创造感知与诗性;“卡“代表建造、精准;注重逻辑与克制,此为木卡的核心设计哲学。
工作室的业务范围涵盖家居、酒店、民宿室内设计与人居环境提升;艺术、商业空间设计与品牌形象升级;小型建筑立面改造与室内外一体化设计;设计咨询服务等。作品曾获多个国内外设计奖项与媒体发布。
小编插话
如您喜欢
木卡工作室
作品 想委托他们设计
我们帮您对接该设计机构!
灯光设计
软装全案
训练营第八期 |成都站
2021年9月26日-9月29日
灯光设计
软装全案
训练营
内容介绍
软装 方案 搭配
落地
---讲师:李亮---
系统掌握软装设计全案流程,
从客户需求到软装方案设计再到落地交付
专业软装设计:制作,设计执行,洽谈
材质选择,软硬装设计衔接
软装设计团队搭建以及管理技巧
软装方案优势以及软装谈单技巧
灯光设计法则与光环境营造
---讲师:郑志伟--
提升室内设计师灯光设计认知与专业度
灯光的基本要素,包括灯光参数,
灯光选择,各种空间灯光在运用
光环境营造,以及通过灯光烘托主题
不同空间的灯光设计流程及方案,
设计师如何运用灯光设计知识提升签单率
灯光课程形式:理论学习/小组作业/点评辅导
【学习对象】
室内设计行业相关从业者
硬装、软装设计师
软装店经营者,软装爱好者
环艺专业学生
及有艺术追求及理想的人
训练营咨询(瑞苓老师)
客服
消息
收藏
下载
最近















































