查看完整案例

收藏

下载
空间元素趋于单纯化,体量关系趋于简洁化,动线布局趋于秩序化,物质形态上的 "简" 法与生活态度上的 "减" 法相互加成,构建了一种平衡稳定的状态。
项目面积 | 160㎡
项目位置 | 北京朝阳
硬装设计 | 任志凯
软装设计 | 冯栎桥
全案团队 |
高迪愙设计事务所
说在前面:
不管是工作状态还是人际交流每个人都有自己的“舒适区”,家居环境也同样,在熟悉舒适的氛围下我们往往能达到稳定的状态输出,从而确保效率和最优。
这里的“舒适区”是积极的向上的。
本案业主从事金融投资行业,常年出差,一年中大部分时间都在酒店度过,所以设计之初就明确表达了想要酒店式的家居环境,舒适便捷。工作与生活之间的频繁切换,一个熟悉的居住环境是其间的调剂,使得家这个“舒适区”尤为重要。
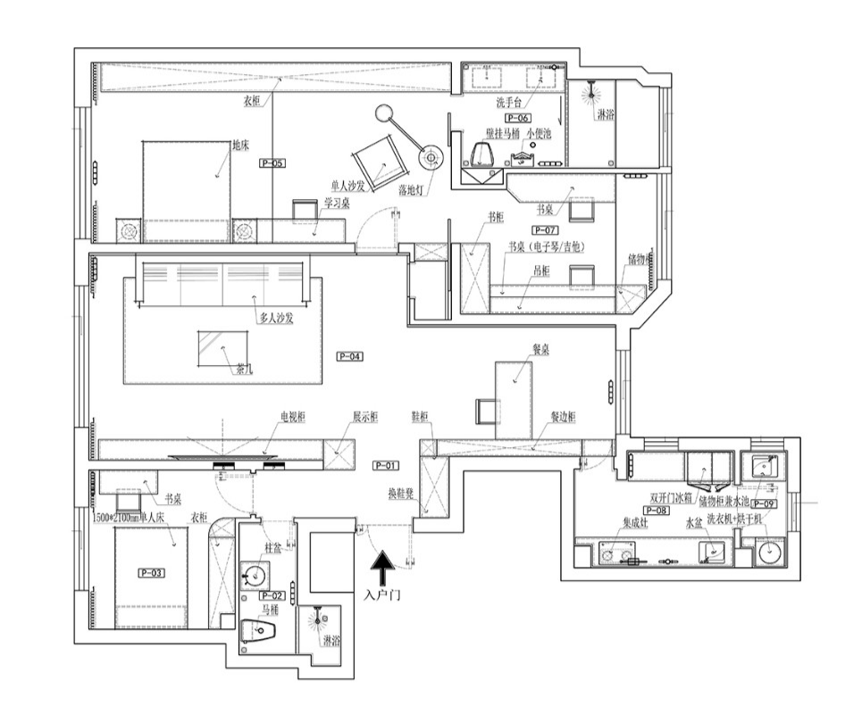
01
户型分析
House type analysis
①
原户型入户位置没有玄关,视线过于开阔,客厅区没有遮挡,设计师通过延长电视背景墙增加展示柜并与鞋柜对齐
来框定玄关区。
②
将通过拆除新建墙体整合主卧,卫生间,书房区域,形成一个独立的套间,与客餐厅动区完全区分开。
02
玄关
Porch
调整后的玄关有了更规整的区域划分,延长的电视背景墙在视觉上起到一定遮挡的作用,同时悬空的柜体增强了空间感。
03
客厅
living room
对于从事金融投资行业的人来说,关注投资回报和理性思维是职业使然,所以在风格上我们很快达成以灰色为基调的空间氛围。不同饱和度的灰色与棕木色通过材质的差异以及区位分布相互呼应,构成一个简洁秩序感的理性空间。
电视背景墙兼具储物和展示柜多种功能,同时具有双面装饰的作用,背面是通往次卧的过道。
沙发、地毯等软饰以布艺为主,能够很好的柔和大理石,饰面板材的硬朗。
元素单纯化,体量关系简洁化,加之无主灯设计,即使是深色的空间也毫无冗杂之感
04
餐厅
restaurant
餐厅线性灯带的设计主要是为了缓解从客厅视觉上看到的几个阳角同时减轻大块面灰色的沉闷感
半透明的玻璃推拉门,让餐厅到厨房的过渡毫无痕迹,既保持了两个空间的整体性,又可以相互独立。
05
厨房
kitchen
06
卧室
Master bedroom
主卧与动区完全分开,是一个完全独立的综合功能空间,包括卫生间,书房,休息区,衣帽间。
正对入门位置是一组综合储物柜,满足衣帽,书籍,展示等需求,单人沙发则可供休憩。
卧室的墙面切分遵循黄金比例原则,抬高地床的设计让主卧的区域划分更加清晰。
书房兼具琴房的功能,此之外看书,乐高拼接等等爱好都可以移步这里。
07
次卧
kitchen
客服
消息
收藏
下载
最近































