查看完整案例

收藏

下载
简约从不是形式的删减,而是对空间本质的精准洞察与捕捉。以“朴素”为核心设计准则,让建筑的结构逻辑、材料的原生特性都得以自然彰显;在强化材质延伸感的设计中,让空间形态顺势生长、自成肌理。这样打破时间与边界桎梏的简约表达,在今天分享的两个案例中尤为鲜明——它们分别来自壹境筑造与Kim设计
游走空间
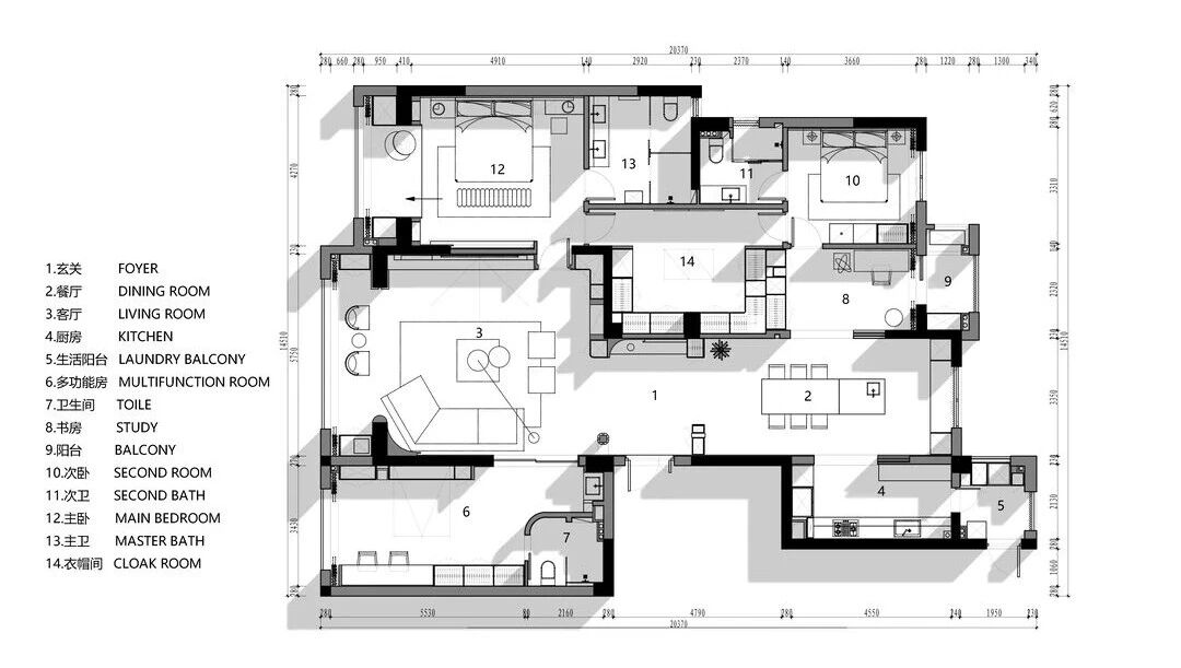
壹境筑造 安徽合肥 150㎡私宅
对居住者而言,房子从不是冰冷的容器,而是自我与生活的联结纽带——它承载着对未来生活方式的构想,既要安放家人间“各自独立又彼此相依”的相处哲学,也要平衡自我与欲望的尺度,更要承接风景、阳光、空气与风的自然馈赠。安徽合肥这处150㎡私宅,便由壹境筑造冯传虎精心勾勒,让每一寸空间都成为关系的温柔载体。
我们将建筑语言的回溯,融入空间整体动线的营造之中。这种回溯并非局限于形式的复刻,而是对空间界面交互逻辑与呈现形态的深度延展。同时,我们以多元材料为媒介进行转译,使身处其中的人,在游走间自然形成对望与窥视的空间互动路径。
将顶面打造为完整的木质体块,对于突出的梁体,则以镜面处理弱化其存在感——这一设计既强化了木质的延伸性,也让空间形态自然生成。地面亦以木质作为空间分隔的媒介,不仅制造出空间层次的丰富变化,更赋予空间灵动的流动感。
地台与天花系统形成巧妙的间隔与区分,以自由流动的形态,高效调和了由结构划分的各个空间场域。设计抛却具象理念的束缚,不局限于固定表达形式,将重心放在比例的均衡把控与形式美感的营造上。
融合于厨房的L形岛台功能多元,既能随时开启惬意品酒时光,也可作为简餐台与烘焙区使用。与之相连的地柜以一体化姿态延伸,顺势将岛台纳入起居空间的范畴,打破功能分区的界限。
在设计过程中,结构形式的确定与材料交接的处理,均遵循着朴素的原则——核心在于“利于空间生长的寻常之道”。我们不刻意追求惊奇的效果,每一个设计判断都力求成熟稳健,确保其具备可生长、可延续的特质。
在专属自己的空间里,打破了空间与时间的固有边界。这里无关既定风格,亦无固定情绪,一切都随居者的心境与需求灵活生长。当我们重塑空间的肌理与形态时,其实也在无形中完成着自我的迭代与重塑。
平面布局图
项目名称 |游走空间
项目地点 |安徽 合肥
项目面积 |150平米
设计时间 |2023.08
竣工时间 |2024.10
设计机构 |壹境筑造
设计范围 |全案设计
创意总监 |冯传虎
设计团队 |翟翟君君
项目摄影 |HOWIE
生活美学 Kim设计 杭州钱塘江边岸 270㎡私宅
当脚步迈入杭州钱塘江边这处270㎡私宅的入户空间,穹顶柔美的弧线即刻勾勒出艺术感十足的轮廓。天然大理石的肌理在地面铺展,如同书写着自然的肌理诗篇,与温润木质形成巧妙碰撞,在相生相融间晕开雅致韵律。一方圆形地毯恰好成为视觉焦点,既完成了空间的温润过渡,更让归家的第一步,便踏入由Kim设计精心打造的、质感与美学并存的私享场域。
踏入空间的瞬间,弧形穹顶便以现代设计语言,勾勒出一气呵成的流畅天际线。暖色调铺就的空间基底,不着痕迹地晕开沉静包容的气场,而藏于其间的每一处细节,都在为归家的仪式感与舒适度做着精准加持。
弧形穹顶之下,线性灯光嵌入其间,精准勾勒出理性的光影秩序;枝桠肆意舒展的绿植,为规整的几何空间注入自然留白,成为灵动的即兴一笔。而每一件家具的造型设计,都是设计师在实用功能与艺术表达之间反复推敲,最终凝结成的雕塑式创作。
当指尖触碰到织物的柔糯,目光定格在轻颤的枝桠上,心绪便在这一触一瞥间沉静下来——外界的浮躁尽数褪去,只留满室安稳与沁心诗意。一旁的沙发以利落线条勾勒轮廓,坐感却柔软得恰到好处,蓬松如云的形态,为现代空间晕开一抹举重若轻的艺术质感。
大理石基底自带的清冷肌理,与暖调包裹的空间形成鲜明对话,碰撞出独特的高级张力。这面功能墙绝非单纯承载影音功能的媒介,更像是一件嵌入日常的立体艺术装置——它以黑与白的平衡博弈、线与面的韵律交响,将实用属性与美学表达完美融合,最终成为锚定整个空间的视觉焦点与美学核心。
步入餐厅空间,简约质感与精致细节在此无缝相融。大理石岛台的水墨肌理晕染开来,宛若浑然天成的艺术画作,与深色哑光餐桌形成巧妙呼应;而角落那一抹灵动红色的悄然点缀,瞬间成为空间的点睛之笔。
黑白配色的餐椅遵循人体工学原理打造,落座瞬间便能感知贴合身形的舒适。米色调墙面铺就出柔和基底,原木吊顶则在空间中暗藏温润暖意,几何造型的吊灯以金属的冷冽碰撞亚克力的通透,为餐厅勾勒出利落的现代线条。
百叶窗将自然光线切割成纤细的光丝,落在大理石台面上,与台面自带的水墨肌理相映成趣,宛若一幅流动的天然画稿。头顶的几何吊灯,以金属的利落线条与玻璃的通透质感相互交织,为空间织就了一抹兼具现代感与艺术感的独特肌理。
木质的温润触感、微水泥的细腻肌理与线性光的轻盈韵律,每一处细节都彼此默契呼应——在喧嚣都市里,共同开辟出一方理性安然的栖息地。极简的空间轮廓之下,藏着高级质感的沉静表达:浅灰与米白的柔和交融铺就基底,巨幅窗景则从容接纳流动江色与城市天际线,让自然与繁华一同涌入室内。
深灰柜体托举着大理石的天然肌理,质感碰撞间更显沉稳;巨幅落地窗则将江天一线的城廓景致完整框入,成为空间的天然背景。简素的基底里藏着先锋格调,这方游戏空间就此跳出刻板印象,自成一方雅致秘境。
浅木色地板与顶面线性灯光交织,铺就温润光影。镜面墙拓展空间通透感,让穿搭灵感即时呼应。从哑光柜体到灯光明暗,细节诠释收纳美学:深黑柜体配内嵌灯带,衬得时装手袋如艺术品;中央黑岛台以玻璃台面分区收纳,精致陈列配饰。
平面布局图
项目名称:喧嚣褪尽艺术与生活的碰撞
设计团队:Kim设计
项目地址:杭州钱塘江边岸
建筑面积:270
项目时间:2025年10月9日
客服
消息
收藏
下载
最近






























































