查看完整案例

收藏

下载
在这个133平的空间里,住着一个幸福的3代之家。这里包裹着三代不同的理念、思想和生活习惯。
一些原有的家具、软装需要继续使用,而如何打造一个既充满童趣、又兼具实用性的儿童房也是父母需要考虑的问题,家庭成员们都对新家有着自己的看法。最终,我们以混搭风格的方式,为这家人诠释出一个完美的新居。
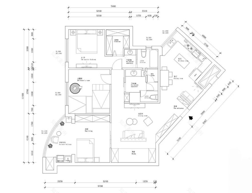
户型图
原始户型是不规则的,而且餐厅的位置比较尴尬。如果想满足三代同住的话,需要合理规划每个卧室的位置。
1,进门处设立玄关隔断,到顶的鞋柜足以收纳日常全家的鞋子;
2,厨房保持开放式格局,和餐厅紧密相连,选用女主人喜欢的湖蓝色橱柜,搭配出低奢简约的视觉感;
3,三个卧室均朝南而设,让每个房间都有足够的采光,通风,居住感十分舒适;
4,主卧增设衣帽间,多一份私密也有了更多收藏空间。
客厅
在古色古香的原木色和室里,搭配亮眼的橙色皮质沙发,不同风格间的碰撞展现出一种非常独特的生活态度。舒服,自然,环保,健康很多时候比格调更重要。
玄关
孩子是每一位大人的心间绕指柔,在家居装饰中一切以孩子的成长和舒适为最大追求。在家里也处处有着童趣~
可爱风身高标记尺,可爱风鸟屋闹钟,可爱的童心童趣!
餐厅
厨房打造成女主人喜欢的现代低奢感,湖蓝色橱柜搭配白色大理石台面,增加中岛以区分厨房、餐厅的空间,制造出一种非常有冲击力的视觉效果。
大理石餐桌搭配皮质餐椅,以及墙面的涂绘,处处彰显出女主人的时尚敏锐度。
厨房
厨房的收纳空间足够宽裕,看上去井井有条,干干净净。
简约金属拉手搭配湖蓝色饰面板,呈现出一种低调而奢华的视觉感。
中岛安装了洗碗机,位置方便操作便捷,使用率很高哦~
卧室
主卧是简约风,并分隔了部分空间做衣帽间。
墙面壁纸颜色以浅淡素雅为主,简单而干净的居住感!
次卧是也简约色调,铺设实木地板脚感很好,搭配浅果绿墙面,活力与氧气感并存~
儿童房
接下来就到了重要的儿童房啦!房间以定制家具分隔为上下两层,游乐和休息合二为一,护栏全部加宽加高,这里就是孩子最安全的乐园~
卫生间
衣帽间
设计师
叶广续
个人设计理念:艺术源于生活,而生活是艺术的来源,在生活中追求艺术之美的存在。
更多装修案例
就在亦帆装饰
总•有•一•款•击•中•你•的•心
客服
消息
收藏
下载
最近

























