查看完整案例

收藏

下载
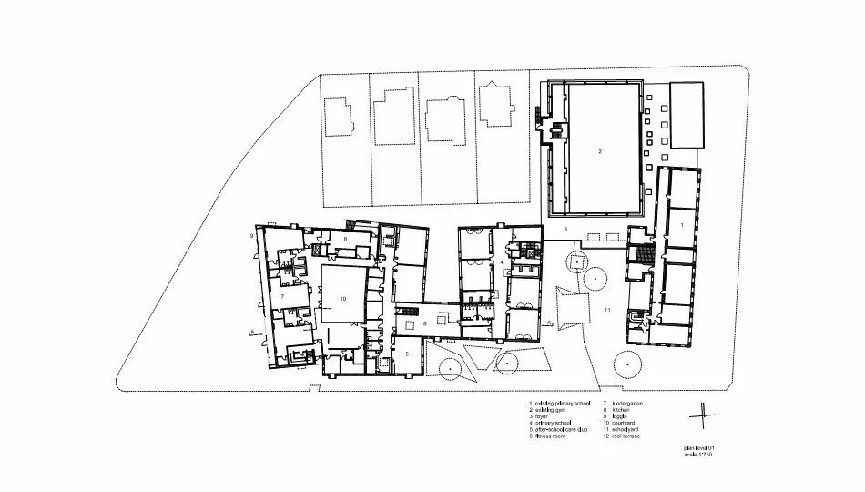
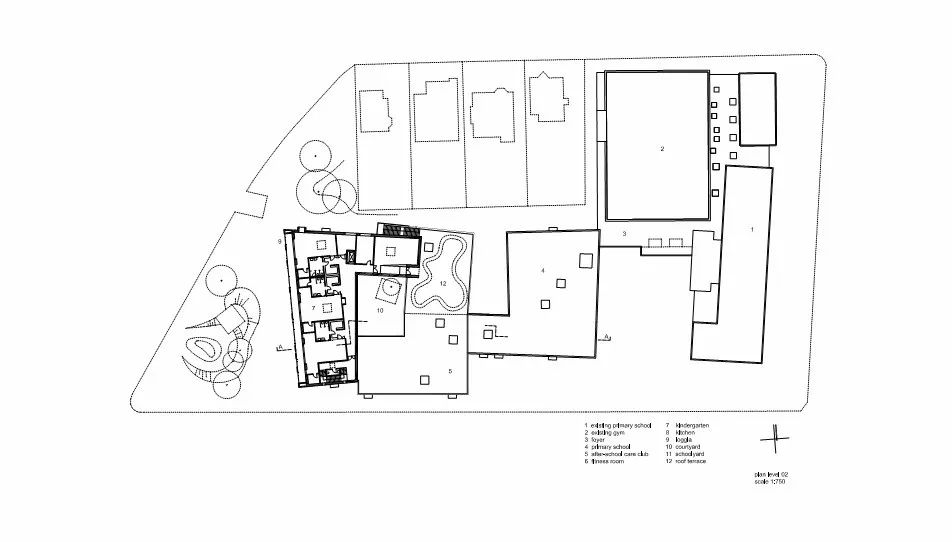
这个项目位于维也纳南部一个小城镇,由于外来人口的大量汇入以及快速增长的出生率,社区需要更多的公共服务设施,尤其是一流的儿童保育设施。因此,在2008年开启了关于新建一个儿童保育中心的投标竞赛。现存的建于19世纪的一所学校(‘Gründerzeit’ )将被扩建成一个由八个小学班级,一个课外活动中心以及一个带有厨房的幼儿园组成的综合项目。
MAGk illiz建筑事务所赢得了这次竞赛并且中标。项目团队在方案初期就打破了传统的矩形体量,采用了“L形”的体量交错布置各种不同的功能用房。体量之间的空隙将作为课外活动的场所。
建筑具有良好的朝向,两层高的主体建筑中为大人和儿童提供了便捷的交通。学校的主入口既是会场的入口,同时也起着连接新老建筑的纽带作用。
建筑的立面开窗设计就像是白色建筑表皮上的一个个像素点。这种“像素化”开窗的形式满足了室内的采光需求,同时室内用房的排布也在立面上得到一定程度的反映与强化。(译者注:可以理解为“形式随从功能”,也就是建筑的内部功能可以从外部得到一定程度的体现)这种立面表皮处理随着光滑和粗糙的灰泥灵活变化,尤其是在灯光的照射下给人留下生动的印象。
与高对比度的立面设计不同,室内用房的设计通过色彩与材质的微妙变化进行区分与联系。 不同活动区域的门、衣帽间和墙板都采用一定范围内不同的颜色进行区分,增强了这些区域的可识别性,方便儿童进行定位。
幼儿共用的衣帽间被包裹在木材质中,就像蜿蜒进入私人壁龛的蜗牛壳。
来自立面的“像素化”窗格突出到走廊,成为幼儿阅读和依偎的小巢。所有的活动区域都采用绿色的自由表面。用于休息的操场由于其耀眼的橘黄色橡胶表面而成为攀爬和“冒险”(译者注:指幼儿活动嬉戏)的绝佳场所。
表面浇筑光滑混凝土的屋顶露台也是幼儿娱乐的好场所。托儿所和幼儿园之间形成了一个通高的庭院。整个庭院作为一个固定的安抚中心被游廊以及多功能活动用房环绕。色彩缤纷的门和可以通风的房间高的玻璃幕墙元素允许出现可以灵活使用的活动室。
幼儿园前面是一个由白色栅格围护的两层长廊,组团式房间的西面是色彩丰富的玻璃幕墙。它(译者注:这里指得是玻璃幕墙和栅格的作用)补充了建筑的整体性,同时也是一种遮阳、防坠落的措施。由于视角不同,立面呈现出从透明到封闭的丰富样式。(译者注:这里指“像素化”开窗对室内的视野角度的影响)
就内部空间而言,这是一种二次保护的措施,这将允许最为年幼的孩童可以(在安全的情况下)看到户外的绿化环境。同时,阳光透过窗格会在室内形成色彩绚丽的光斑。
材料和施工方案的特点是对生态可持续性的高标准贯彻。为了确保工期迅速,新建筑采用了复合材料的新型施工方法。以坚实的核心作为质量中心,预制的、高绝缘的木材框架结构的白色板材,实木面板结构则分别设置。
整个新建筑符合被动式用房标准,其目的是最大程度的方便用户,在满足舒适要求的前提下将运营成本降到最低。 由于采用了创新的通风方案,可以减少机械通风的运行时间从而降低运营费用。同时,教室等功能用房的通风送气是通过直接通向室外的声槽进行输送,从而避免了噪声传入室内。这项技术的实施还确保了室内夏天不会过热且晚上温度不会降得过快。由于对预算成本有效且全面的控制,结余资金也可以用来扩建改善现有的健身房。 此外,节能带形灯也可以被更新,并且安装周向水平的活动遮阳百叶窗。
由于周边环境十分敏感,建筑在形式上采用了传统的小尺度建构,分散的体量绝不会与环境形成竞争。
这个综合项目由已经存在的教室以及新建的小学、托儿所、幼儿园组成,整个项目从前期规划到后期施工仅仅花了三年时间。目前该项目已建设成为下奥地利州最大的保育中心。
建筑图纸
项目信息
项目名称:
Childcare Centre Maria Enzersdorf
地址:奥地利
设计师:
MAGK illiz
面积:9554㎡
摄影:Hertha Hurnaus
如有侵犯请联系后台及时删除。
About GaceDesign
关注全球少儿领域创新
专注少儿教育空间设计
早教托育中心设计 | 幼儿园设计 | 培训机构设计
More Understand
少儿空间 | 少儿产品 | 少儿品牌
客服
消息
收藏
下载
最近
































