查看完整案例

收藏

下载
今天我们这里要分享的是一套面积仅48平的老房改造案例,原仅有1房1厅1卫的格局,为满足一家五口人的需求,需要三个独立的卧室空间,这对设计师来说是极具挑战性的。好在房子在顶层,有个阁楼,经过设计师的巧妙改造后,不仅实现了一房变三房,且美观与实用性兼具。
▲一层平面布局图
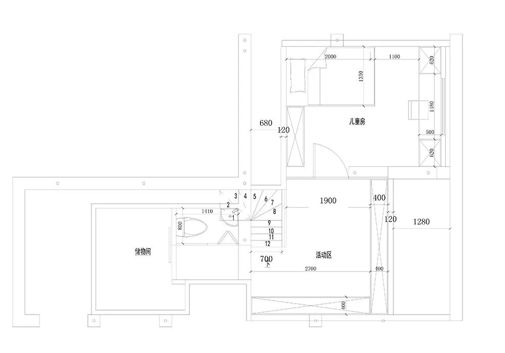
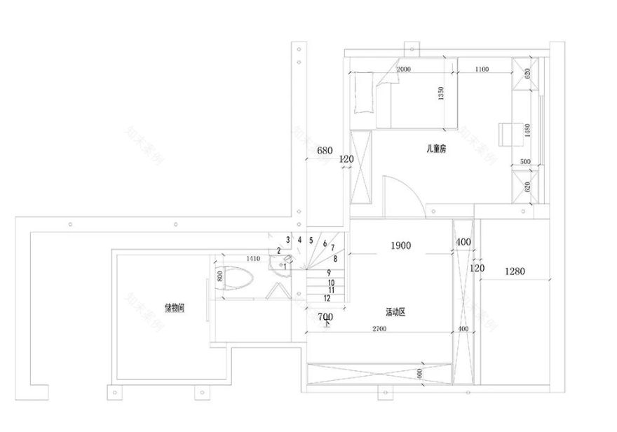
▲阁楼平面布局图
入户
利用入户门移位+卫生间退位,打造了一个功能性的过道。
进门的柜子集多功能于一身,各种电器有了容身之所,中间层装了菜盆,还有烤箱,早餐就在这里解决了。
客厅
将原客厅一分为二,利用玻璃移门隔成了餐厅和父母房。
卡座式餐厅设计,可以说是小户型的法宝,外观简洁,却有着越大的空量。
到顶的餐边柜,向上的空间也得到了充分利用。
进门区使用流行的色砖地砖,充满文艺气息,客厅区域铺的是木地板,温馨舒适。
父母房放的是可以收起变成沙发的壁床,可变成待客区。
主卧
通过改动房门位置成功开辟出一个衣帽间,一道厚重的布帘既实现了遮挡的目的,也节省了造价和开门空间。
楼梯
阁楼
将阁楼合理的用起来了,不仅多出了一间房,而且也让孩子有了足够的活动空间。
玻璃设计,采光更好,也更安全。
上周阅读量前三榜
:
第一
1354人被查出重复社保,逾期不改将按“挂证”行为处理!
第二
国务院这份通知,建筑业巨大调整!读懂了此文便读懂了建筑业的未来!
第三
住房和城乡建设部办公厅关于支持民营建筑企业发展的通知
每天要看到精彩文章,怎么办?
长按下图
| 选择
|
关注
福建装饰行业领先新媒体!
政策资讯/行业分析/项目管理知识
资质/营改增
/工业化/法律法规/
信息化专题
免责声明:
客服
消息
收藏
下载
最近























