查看完整案例

收藏

下载
广州·万科
金色
城品
133㎡
___________________________
DESIGN BY : CHASING DESIGN 启呈
实景实拍视频
本次改造的房屋对象是三代同堂的温馨小窝。家里除了业主夫妻以外还有业主的母亲,和一对非常可爱的上小学的儿女;业主小两口是做化妆造型培训的,平日工作非常繁忙;新置的二手房鸡肋的地方比较多,他们希望一切以简洁温馨为主,能最大化满足三代同堂的生活所需,还能给三只猫猫做个安乐窝。
房屋痛点
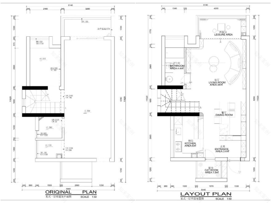
一楼的餐厅对着卫生间的门,舒适感差;
一楼厨房空间太小,操作台也很小,不方便日常操作;
二楼没有公卫,两个次卧上厕所需要去一楼公卫;
二楼仅有主人房配有卫生间且没有干湿分离;
部分区域的采光性不够强,功能性区域划分不科学。
-改造前-
-改造后-
-改造前-
-改造后-
-改造前-
-改造后-
改造重点
考虑到日常居住人口,把四房改为三房,
实用性
增强;
一楼为“动区”
,是日常生活区域,
二楼“静区”
,为卧室休息区域;
二楼增设公卫和饮水区,提高
便利性
;
增设房子的收纳空间,且尽量做隐藏式柜体,实用又美观,光是一楼,就整整有
60组收纳柜
;
合理安排房子的功能区,提高区域
采光性
。
-一楼平面图对比-
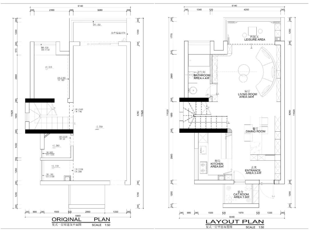
-二楼平面图对比-
客 厅
客厅是一个家的灵魂
,必须是改造的重点。
客厅的空间除了因为将原本一楼卧室改为卫生间,
墙体后移后增大了观影空间,还因为阳台封窗,一整块落地玻璃安排上,拉大了客厅整体面积,解决了之前客厅狭小的痛点。橘色的沙发和同色系的艺术挂画,让背景墙不再空洞,奠定整个空间的基调,我愿称之为橘子汽水味的空间;小面积的拱形隔断,隔而不断,保留的阳台区域,做了猫猫的安乐窝还有收纳柜。
餐 厅
客餐厨一体化
的设计,不仅增加了空间设计感,还能让整体空间利用率蹭蹭往上涨。进门第一个空间就是餐厅,简约的餐桌椅既高档又实用,整体色调温馨协调;餐厅与厨房相连,用餐动线合理,减少厨房和餐厅走动的来回;一面小小的收纳墙,可以收纳平日生活琐碎之物,软装摆件的点缀让整个空间温馨自然而不失生机;侧面一整块落地镜,除了“放大”小空间,还时刻记录着一家人温馨用餐的场景。
厨 房
开放式厨房
巧妙利用空间,将餐桌与厨房紧密相连,放大空间视觉效果;
“L型”的操作台
大大提高了厨房的可操作性,嵌入式的烤箱和消毒柜,大大节省了厨房空间,多个储物柜更是保持空间整洁的法宝;考虑到烹饪时的油烟问题,设计师巧妙地利用了
折叠窗和联动移门
,隔断两个区域的同时也不影响空间的通透感。
楼 梯
楼梯部分设计师开槽装
钢化玻璃作为护栏
,既简洁美观又能起到了很好的采光的作用,使得空间更通透。楼梯底下做了数个镜面式的
隐藏式收纳柜
,解决死角位的整洁问题,提高利用率;楼梯上来,一顶非常有仪式感的
光立方吊灯
(又名“满天星”),增加空间质感,小小的窗户把阳光“请”进屋里,把整体氛围感拉满,这个角落实在不要太美了!
卧 室
二楼是“静区”
,主要是休息的区域,所以在装修的时候采用素净温暖的颜色,静谧温馨之余,还增加房间的通透性,扩大视觉面积。主卧的超大的
室内窗
,增加室内光线,采光性upupup!
悬空式“L型”书桌
,拉长视野,可以减少空间的压抑感;次卧为小朋友和业主妈妈的休息区域,还有一个集洗衣、晾晒、休闲于一体的多功能阳台;特别贴心的是,设计师在二楼增设了一个卫生间和饮水区域,大大提高生活的便利性。
卫 生 间
一楼和二楼都设有卫生间。虽然面积不大,但
干湿分离
必须到位,还能满足业主劳累后泡澡的心愿;精美而实用的摆件,提高生活的幸福感,而储物柜更是增强空间的收纳能力,让空间保持干净整洁。
Project | 项目名称
广州·万科金色城品
Interior Design | 室内设计
CHASING DESIGN 启呈
Construction Organization
| 施工
单位
CHASING DESIGN 启呈
Soft Decoration | 软装设计
CHASING DESIGN 启呈
A
WARDS AND HONORS
|
团队荣誉
启呈®设计团队曾多次荣获国内外专业奖项。包括美国洛杉矶中美国际设计交流展暨中国国际设计大奖赛、中法国际设计交流展暨双面神“GPDP AAWAED”国际设计大奖、中美国际设计大奖(家居空间类)、中国国际空间艺术设计大赛(筑巢奖)、ID+G金创意国际空间设计大赛、红棉中国设计奖、百利玛国际高端住宅设计大赛等众多设计大赛的最高荣誉。团队作品荣登各大设计网站:美国室内设计中文版、环球设计、德国室内设计网、designwire设计腕儿、网易家居、新浪家居和广州设计周等。
•
2021年 第九届金创意奖国际大学生空间设计大赛特聘设计导师
•2021年 第十届筑巢奖评委及专业演讲嘉宾
•
2019年 中国设计品牌榜·年度设计领导力品牌人物
•2018年 美国全球影响力华人典范设计师大奖
•2018年 金创意奖国际大学生空间设计大赛特聘设计导师
•2018年 中南地区国际空间环境艺术设计大赛 "华厦奖”金奖
•2017年 法国双面神年度TOP10最具国际影响力知名设计师大奖
•2017年 百利玛“BERYL杯
“
国际高端住宅设计大赛“2017年度十佳设计师”
•2017年 艾鼎国际设计大奖
•2017年 IDF “为中国设计发声”年度精英人物
•2017年 红棉中国设计奖 2017年度室内设计大奖
•2017年 年度中国室内设计50强杰出青年设计师
•2017年 腾讯家居2017年度时尚设计大赛评委
•2017年 中美国际设计大奖家居空间类-金奖
•2017年 设计作品入选中美国际设计交流展
•2017年 美国洛杉矶第二届中美国际设计交流展暨中美国际设计大奖赛金奖
•2017年 美国TOP100全球影响力华人设计师
•2017年
第五届ID+G金创意奖国际空间设计大赛”专业奖-银奖
•2017年 国际设计大奖/金创意奖特邀导师
......
△
可上下滑动查看更多
CHASING DESIGN
®
启呈® / 李 忠 光 设 计 事 务 所
以上作品版权归启呈装饰所有,禁止商用,侵权必究。
或请联系4000-555-880、020-38886609
地址:广州市天河区富力盈隆广场1309
客服
消息
收藏
下载
最近

















































