查看完整案例

收藏

下载
走心设计
First
项目说明
项目位于苏州吴中区,紧邻苏州湾、太湖之滨。太湖是吴文化的发源地,是天然的历史文化博物馆。
作为一个在将来会成为公共活动空间的场所,景观设计绝不应仅仅局限于如何做好一个拥有精致舞美效果的示范区,设计师更多考虑的是其作为一个城市公共景观应有的地域特色和人文意义。
设计缘起
项目滨太湖是一个重要的资源信息,但是由于场地距离和高差的原因,基地滨湖却不能见湖是场地的痛点。
我们在场地设计中,竭力拉近太湖与基地的时空距离,
以“太湖的形与韵”为设计理念,以“太湖六境”为场景剧本
,把太湖的故事向公众徐徐地铺陈开来,让人们在迂回婉转的空间里,感受若隐若现的太湖意韵。
场地构建思考
场地处于街角三角地区域,空间营造要兼顾近期私密管理和远期开放运作的不同需求。而“太湖”作为地域标志必须要在项目得到强调和呈现,从提升环境认知的角度切入,进而提升项目的人文价值,使其成为一个有太湖印迹的文化体验场所。
NO1:寻水
项目基地距离太湖的直线距离约180米,滨水而不亲水、不见水,我们从研究建筑与水面的关系入手,尝试从空间距离与视觉效果的比例关系中寻找建场地与太湖的关系,寻找自由灵动的平面构图方式。
△ 左右滑动查看
水关系推演
NO2、塑丘
当太湖被 “引上岸”之后,我们开始试图让场地中出现“湖面吹来的风”、“随风漾开的细浪“,“被细浪环绕的洲渚”……我们将这个场景意向,从脑海中移植落实在了地形塑造的过程中。广阔平静的湖面、起伏的草丘、悬浮的岛渚,我们都通过图纸和泥塑模拟一遍遍地推敲,每一次地形起伏的拿捏我们都异常地细致且谨慎。
△ 场地推敲
NO3、造境
我们脑海中的太湖边的艺术公园在图纸、模型中越来越清晰地呈现,场地复杂的配套功能被安置在一个轻盈简洁的建筑盒子里,反衬着公园的灵动与洒脱。
这不仅是艺术融于自然的景观展示区域,更是登楼可远眺太湖,游园可临溪涧追烟雨的艺术公园。
△艺术公园
△ 艺术盒子
场景编排
△ 太湖六境
△ 六境的场景编排
一境:
风形浪丘(开阔的入口景观)。“过江千尺浪,入竹万杆斜”。风无影浪有形,入口广场通过浪纹铺装、水景雕塑、飘带地形、以及大型浪形格栅雕塑等元素从描绘一幅微风起,湖面波光粼粼的动态场景画面。
二境:
暮烟汀湾(先抑后扬的引导)。流畅的弧线道路向前延伸,大尺度的曲面草坡仿佛太湖中被划开水面后向两侧溢开的浪痕,精致的小尺度水道的指引人们缓步前行。
三境:
水逐月影(建筑前场景观)。“此时相望不相闻,愿逐月华流照君”。从传统滨水而建的江南民居中获取灵感,镜面水景与建筑相互映衬,一汪静水只待月影来,描绘一幅空灵、明净的水乡泽国意境。
四境:
沧浪飞虹(迎宾桥)。“复道行空,不霁何虹”,场地中央的水景以太湖的飞虹、浮桥等元素为蓝本,纤巧如柳叶的拱桥倒映水中,水波粼粼,宛若飞虹,突显了入口前场的风雅礼仪。
五境:
水宿移舟(艺术卡座)。“月明移舟去,夜静魂梦归。”建筑右下方设置船形下沉休闲空间,配合灯带形成动态移舟的视觉效果,置身其中仿佛有乘舟幽游之感。
六境:
争流绿渚(林荫绿岛广场)。“草树萦回岛屿,杳霭数峰低”。通过绿洲与水纹铺装来刻画“太湖中沧浪绕洲渚”的场景意境。
设计平面
△ 景观总图
六境 | 若隐若现的太湖美
一境 · 风行浪丘
二境 · 暮烟汀湾
三境·水逐月影
四境·沧浪飞虹
五境·水宿移舟
六境·争流绿渚
匠心营造
Next
场景营建
△ 施工过程
施工阶段是个对项目不断磨砺的落地过程,严苛的造价控制,施工期间连续的阴雨雪天气,都对项目“按时按质按量超效果地呈现”提出了严峻的挑战。我们本着匠心营造的态度,提出并实践了多个解决工程问题的策略,只为最终呈现的精致且气质拔群的工程效果。
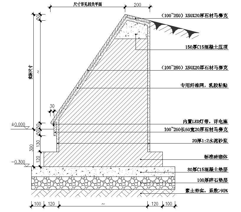
石材的筛选控制
为了营造大气而精致的落地效果,我们经过多轮比选,最终选择了金碧马赛克石材,并通过修改规格、拼贴方式比对和现场多次打样等方式,最终达到了“超值”的效果呈现。
△石材马赛克效果图
△石材马赛克贴面施工图纸
通过多次的打样筛选,我们最终确定采用小规格,大色斑米黄色系的金碧马赛克石材。
△规格及拼贴方式模拟打样
施工过程中异形树池外壁底部的小斜角无法切割铺贴,计划尝试采用胶泥锈粉调和的做法,以期弥补小斜角石材无法切割的缺憾。
△异形树池外壁斜角无法切割铺贴
然而,由于工期的紧迫,加之苏州地区冬雨连绵的天气,导致采用胶泥锈粉工艺的修补效果无法达到预期。
△白胶泥与锈粉处理的效果(尚未晾干)
经过一番探讨,最终我们采取铝板扣角的方式,对下檐口进行一圈收脚装饰,并顺利解决了斜角的问题。
△铝板扣角做法
△实际操作效果
△实景图片
参数化装置
为完美展现“风行浪丘”的场景主题,罗朗资源组整合专业艺术装置公司[MONODESIGN],运用参数化设计手段,对入口对景装置进行了参数化设计,并采用参数化的施工方式创新地呈现了“风行浪丘”的姿态和意境。
△“风行浪丘”的设计效果图
看似简单的设计,推演过程是严谨而复杂的,每一根柱子的角度斜度都是经过参数计算和排布来实现不同角度的静态变化。
通过参数化的角度处理,带来了静态装置动态化的特殊体验,通过控制局部区域的穿透率达到视觉渐变的效果,不同视觉角度会有不同的穿透率,从而达到古典园林移步异景的效果。
△模型大样图
△雕塑实景效果
软景管控
项目中重要的苗木每一棵设计师都要亲自去苗木基地挑选,然后根据选苗的实际资源进行的现场调配。很多主景树都是根据选树的实际资源和实际场地以及反季节种植效果做了二次匹配调整,如丛朴由于造价原因调整为拼种模式,拼种效果在设计师的指导下宛如自然丛生一样。
△入口主景拼种丛朴
△实际资源歪脖树的现场调配
△停车区域植物空间的营造
结束语
反复推演的设计,更高要求的营建品质控制,跨专业整合资源的决心,使“太湖六境,艺术公园“得以完美呈现。我们用简洁统一的弧形线条勾勒出六大山水太湖的写意空间,形成远眺太湖,中临溪涧,近追烟雨的游园体验。在太湖之滨,营建了一个尽显“太湖之美”的新映像。
项目概况
项目地址:江苏省苏州市吴中区天颜路
开发单位:金融街控股
景观面积:6000㎡
建成时间:2019年04月
景观设计:LAURENT罗朗景观
设计团队:江雨龙、杨莉、陈华芬、廖博川、李进、张弛、杨婷婷;王鑫宁、咸堃、胡凯;刘伟,周剑;吴昕;
雕塑设计:MONO DESIGN
建筑设计:PTA上海柏涛
室内设计:梁志天室内设计上海分公司
——OVER——
注:本文转
载
源侵犯您
权益,请及时与我们联系,我们将第一时间做出处理。
更多优秀的资讯,请进
FM设计网:
查看更多!
FM干货铺
分享软件技能,分享免费资料
客服
消息
收藏
下载
最近
















































