查看完整案例

收藏

下载
| 𝐂𝐇𝐔𝐀𝐍𝐇𝐀𝐎 | 𝐃𝐄𝐒𝐈𝐆𝐍 |
致力于创造理想空间
设计风格:现代风
项目面积:80㎡
房屋户型:2室2厅2卫
“
D
esign Preface
设计序言
「将收藏装进新家,让新家成为未来的收藏」环绕艺术而生,是此次改造切入的题旨。在有形的居宅轮廓线里描绘居者的个性与喜好,在格局脉络中梳理动线与机能,一景一物彼此牵引、一点一滴淬炼成形,两人的互动与交集有如一场生活展演,稳妥地盛装入这幢有如私宅艺廊的家。
﹀
▼
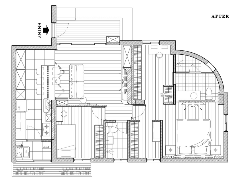
户型
图
PORCH
/玄关
■ ■ ■ ■
依循原始屋况并加以整顿,落实「做回前阳台」的想法,成为步入家屋后的缓冲区,呈现崭新样貌。利用玻璃滑门,保有不被切割的通透性,又能轻盈区划玄关与客厅间的隐形界线,亦是绿化植栽的重点区域。
LIVING ROOM
/客厅
■ ■ ■ ■
采光充足的偌大客厅,铺叙粗犷灰泥质感的艺术漆,低调内敛的纹理撑起电视主墙,上方辅以铁件层板,下方特别采透明感的小冰柱玻璃,穿引光线,达到补光的作用,泛起微微光泽与朦胧美感。
DINING ROOM
/餐厅
■ ■ ■ ■
由一字形厨区拉出一条中岛轴线,与座落于中心点的沙发形成高低落差层次感。坐在可容纳至少5人的中岛,视线可望向电视墙,援引玻璃折门型塑灵动、不受拘束的自由框界,料理时亦能阻绝逸散油烟。
MASTER ROOM
/
主卧
■ ■ ■ ■
将原有 2+1 房重新调配为拥有各自更衣室的大主卧,采嵌入式的木质床头背板,搭衬灰色艺术漆点缀,凝缩成一幅带有日系生活感的画面,打造宁静舒适的睡卧眠区,运用调光帘可视情况微调进光量。
LOCKER ROOM
/
更衣室
■ ■ ■ ■
藉由木质层板与开放式吊杆吊挂各式衣物,梳妆桌轻倚临窗处,捕捉天然日光为梳化打扮的时刻挹注柔光,亦让漫进屋内的光迹,可透过下方的小冰柱玻璃与客厅有所对话。
Second bedroom
/
次卧
■ ■ ■ ■
备有简易软装,一盏金属造型立灯漾起光亮,简约直线语汇搭配素雅的卧室,信手拈来一处可自在独处的阅读时光,或是当作功能客房。
FINAL WORDS
迈开的每寸步伐,都是一场探索与欣赏的开始。
客服
消息
收藏
下载
最近



















