查看完整案例

收藏

下载
【楼盘介绍】
龙湖名景台位于槐荫区青岛路与腊山西路交叉口北行300米。为济南泰瑞房地产开发有限公司开发,物业类型涵盖住宅、洋房和商铺。
【龙湖名景台】
位于西部新城两条主干道的交叉口,交通便捷;偎依腊山河、小清河及腊山河公园,环境宜人,远离城区的喧嚣;物业类型有花园洋房和小高层,是济南西客站片区稀缺的高品质洋房社区。
【作品简介】
此房属于主人第二套房产,即定位于改善型住房。男女主人年龄均在35岁左右且都在银行工作。综上分析,此住房设计思路渐趋明朗:精致、舒适、化繁为简且兼具活力,风格趋向于简约自然。
项目地址:
龙湖名景台
项目面积:
131㎡
户 型:
三室两厅两卫
设 计 师:
胡永波
设计风格:
简约现代
设计材料概括:
墙纸、石材、护墙板、实木成品门、金意陶仿古砖、芬兰芬琳乳胶漆、德国可耐福石膏板、伟星线管水管。
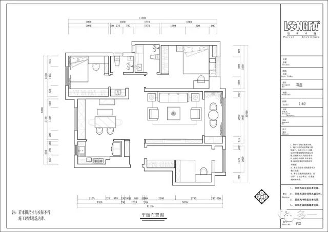
平面布置图:
此为房屋客厅空间,朝向为南向,光线充足。然层高2.7米稍显局促。为此客厅吊顶做的窄,增加空间的高度对比。
配以电视墙大方原木运用,更于亲近自然之处让心以此便是归处
餐厅空间稍小,整体色调为浅色。精致画作搭配,使简约处不失品味。顶面做加法的同时墙地面亦做减法。
此房拥有独立玄关。主人要求实用同时更兼美观大方。此柜多而不乱,为实用。整体木作深浅搭配,清混结合
辅以恰到好处的灯光,使整个空间更显第一印象中主人的品味。入户之处便小处见大。
书房兼客卧空间较小,所以整体色调以浅为主。整体配饰色彩感则较为强烈。似一张白纸置于案上,几笔明眼色彩涂抹,简洁而明快!
主卧室以主人的喜好为主,隐藏灯增加了空间的高度,同时灯光渲染了空间的氛围。吊顶上的角线的运用增加了空间的层次感。深色木地板彰显了主人公的厚重与时间的沉淀。
儿童房的设计墙面以天蓝色为主,明快。儿童房的高低床增加了童趣。是儿童成长中的一个很重要的回忆部分。
工地开工实景展示
【中国高品质家居装饰设计案例】
严抓工程质量,提高客户满意度,是我们产值再提升的基础!让您足不出户就可以直观的看到龙发装饰工地管理制度以及您家施工阶段现场照片。
我们将竭诚为龙发每一位客户用心服务!
设计师个人简介:
设计级别
:济南龙发装饰主任设计师
所属公司
:龙发装饰济南公司北园总部店
工作年限
:8年
擅长风格
:现代风格 中式风格 美式风格
获 奖
:北京龙发首席设计师;中国建筑装饰协会设计作品一等奖;中国室内装饰协会会员
设计理念
:美与多少无关——朱粉不深匀闲花淡淡春。
设计作品
:中海天悦府、领秀城、万科金域国际、绿城百合、锦兰苑、中铁逸都国际、建设银行宿舍、舜奥华府、舜兴东方。
分享是一种美德,点ZAN是一种风度
想了解家装施工工艺?没问题!
参观龙发提供的
五星工程样板间
,让您对施工工艺有更加全面的了解和认识。
龙发装饰
-中国品牌500强企业、中国建筑装饰协会副会长单位、中国AAA级信用企业、国家三标一体化认证单位
龙发优势
:装修设计,施工质量,环保节能,严管管理,售后服务行业标杆。
龙发规模:
97年成立的集团化企业,
全国有80多家分公司,
近700家门店
。
龙发将给您行业最高水准的设计
【龙发装饰】-
设计甲级、施工壹级
|全国前十大品牌装饰公司|
龙发装饰集团创立于1997年,全国首批建筑行业信用评价AAA级、设计甲级、施工壹级企业,全国住宅装饰装修行业百强企业.
承接业务:
●家居空间(高档住宅,商品豪宅,别墅,样板间,跃层)
●商业空间(商场,学校,医院,美容院,专卖店)
●办公空间(办公楼,写字楼,银行,办公室,培训室)
●展示空间(多功能展厅,珠宝店,售楼部,婚纱影楼)
●餐饮空间(酒店,宾馆,中西式餐厅,咖啡厅,品茶社)
●娱乐空间(酒吧,KTV包房,夜总会,洗浴中心,健身房)
装修我就找龙发装饰
央视合作品牌
客服
消息
收藏
下载
最近






























