查看完整案例

收藏

下载
住宅装修空间(方案类)
银 奖 作 品
+
在本案中,整体设计的质感展现出自然的低调美学,在样式及配色上都以自然、宁静的色彩与材质为主。设计中无需刻意装饰,亦无需选用华丽的材料,仅搭配丰富的生活元素就足以营造出一个诗意的空间氛围。客厅及餐厅的落地窗,如同镜子般反映出内外的心情,如同心的本质不会轻易改变,让白天的阳光随着季节迁移与四时推移的流动,在空间中留下虚实的痕迹,光影与树影的共舞,让空间拥有不同层次的表情,而当夜晚悄悄来临时,一切又回归于纯粹的平静。
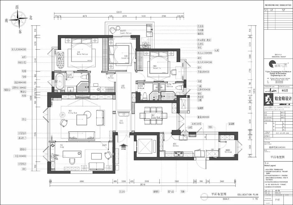
平 面 图
案例名称 :
Simple Life
项目类型:
住宅装修
设计公司:
福建国广一叶建筑装饰设计工程有限公司
主创设计师:
林玉芳
项目所在城市:
福建福州
项目总面积:
160㎡
项目总造价:
40万
主创设计师:林玉芳
上周阅读量前三榜
:
第一
"定时炸弹"被引爆,住建部连续撤销六家一级资质!福建两家被撤销!
第二
关于2017-2018年度第一批福建省 “闽江杯”优质专业工程奖(装饰装修工程)评选申报工作的通知
第三
提醒|"挂证"的注意了!住建部近期已查出近200人!
每天要看到精彩文章,怎么办?
长按下图
| 选择
|
关注
福建装饰行业领先新媒体!
政策资讯/行业分析/项目管理知识
资质/营改增
/工业化/法律法规/
信息化专题
免责声明:
客服
消息
收藏
下载
最近











