查看完整案例

收藏

下载
原来姹紫嫣红开遍,似这般都付与断井颓垣。
良辰美景奈何天,赏心乐事谁家院?
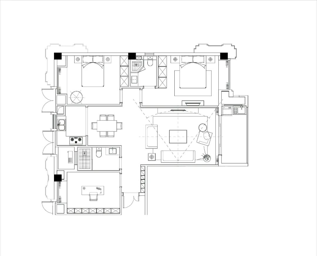
本案为学府天成售楼中心A户型样板房。学府天成售楼中心位于江西抚州临川,历史悠久、人杰地灵,素有“才子之乡”的美誉。本案整体风格为现代中式,打造蕴含东方文化
涵养的氛围,以现代人宜居的方式加以呈现。
客 厅
化繁为简,意境留白,简单的电视背景墙让空间显得简约大气。沙发上方悬挂的书法作品与整体风格浑然一体。加之古雅摆件的点缀,使整个空间
诗意盎然。
呈现出一个低调、纯净、恬静的待客空间。
餐 厅
客餐厅的家具均为中式风格家具,餐桌与沙发的整体风格保持一致。墙面的水墨挂画与中式风韵的灯具交相辉映,打破了
空间的单调性,增加了设计的层次感。
主 卧
主卧采用无主灯设计,让主卧空间的灯光变得更加的柔和,床头再配两盏中式风格的壁灯,使空间更简约有逼格
。飘窗外的自然光源与室内的人造光源相结合,整个空间更敞亮。
儿童房
儿童房的设计有别于其他的空间设计,无论是墙面的动漫人物,还是卡通床品,整体设计都充满了童趣。在卧室的一角还支起了一个小小的帐蓬,是孩子玩耍的一个独立空间。另外,衣柜门不再采用其他空间的深色,而是采用了蓝色,与整个空间风格更加的契合。
书 房
厨 房
厨房设计成L型的整体橱柜,银白色的门板让整个空间看起来更明亮,在吊柜的顶端设计了两格开放式的储物空间,便于物品的拿取,也让整个橱柜看上去更时尚。在这里用柴米油盐酱醋茶料理出的一日三餐,是记忆最深处,家的味道。
卫 浴
整个卫浴空间进行了干湿分离,浴室柜的台盆采用了台下盆的方式,清洁起来会更便捷。淋浴房地面防滑设计,极大地提升了安全性。
客服
消息
收藏
下载
最近


























