查看完整案例

收藏

下载
【项目地址】:
合肥市·群英阁
【户型面积】:
109m²
【房屋类型】:
普通住宅
【设计风格】:
简欧
【设计单位】:
一鸣·空间设计
【方案执行】
:陈真伟、王玉娟(助理)
【案例详情】
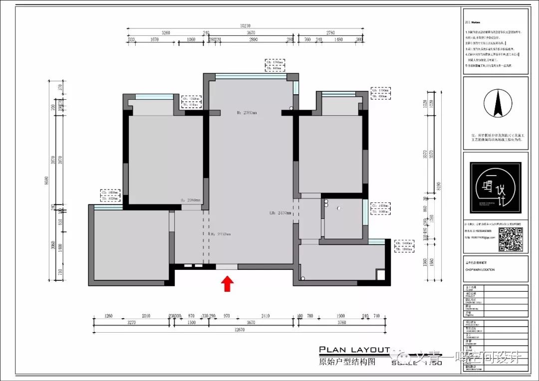
平面户型结构图
【基本情况】
此次委托方是位年轻有为的父亲,一家人在合肥市滨湖区经营自己家的生意。家里有位贤淑的夫人,以及今年刚刚四周岁可爱的儿子。家庭幸福美满。一家人拼搏多年,现在想把自己在肥西的房子好好的装修一番,也算拼搏多年,给自己和家人一个温暖的港湾。我们有幸为这样幸福的一家人提供一个他们满意的未来的家。
【业主要求】
1.对家里的原有的格局不满意。
2.希望家里储物空间充足且不影响整体美观。
3.儿童房希望在设计时,考虑长久一点。
4.整体喜欢简欧风格。
5.希望我们在设计时利用设计上的巧妙之处让成本尽量节约,且能达到想要的简欧效果。
【设计前言】
该项目地址位于合肥市肥西县,房屋结构为钢混结构,空间净高2.75m。根据业主提出的要求以及我们设计师的建议,设计师将部分非承重结构进行合理的拆除和空间分区,一方面让空间格局动线更为舒适,另一方面充分利用房屋的每一块空间。
平面方案设计图
《客餐厅》
【设计思路】:
以前常说装修最花钱的地方是厨卫,其实不然,客餐厅的装修也同样需要投入大量的资金。前文中说到业主想要尽量的节省造价。我们设计师在设计时首先考虑的是居住的舒适性。原房屋格局进厨房需要经过卫生间过道,我们设计师将厨房门改向了客厅,与厨房门连贯一体的就是餐厅的酒柜,酒柜利用了原有的墙体空间,既增加储物,又不占用原有的房屋面积。餐厅背景墙做镜面装饰,让整个空间在视觉上有拉伸感。进门鞋柜利用原有过道空间根据整体和生活的便利,设计一组带换鞋凳的鞋柜。客厅地面设计为体现简欧效果,仅仅利用地砖材质上的差别,做出奢华的层次感。既美观,又节省一大笔装修费用。客厅整体软硬装搭配协调,让整个空间设计感受简洁奢华。
《主卧》
【设计思路】:
主卧主要通过床品家具以及背景墙软包让主卧变得奢华起来。
《次卧》
【设计思路】:
次卧在家居空间设置中属于客房,设计师对客房的理解是,客房的使用率不高,平均的使用次数很低,除非有父母经常来家里居住。单独考虑书房,对三室的户型来说,无疑是将三室变两室。所以客卧在本案中,将书房、储物、客房结合一体,形成独有的多功能房。
《儿童房》
【设计思路】:
儿童房主要考虑孩子现在及将来的成长,将孩子现在及将来需要的功能结合起来,方便孩子在成长过程中居住的舒适性。
来源:一鸣·空间设计(czw1437)
2018-----只做专属您的空间设计
客服
消息
收藏
下载
最近

















