查看完整案例

收藏

下载
形与型,截然不同
设计就是将形与型结合
打造意境和造型结合的
Artistic conception and modeling are quite different
Design is the combination of form and form
Create design aesthetics combining artistic conception and modeling
案例
/
信息
Case information
项目:德商御府天骄
面积:320㎡
案例户型:联排四居
风格定位:现代轻奢风格
风格定位:64W(基装+主材)
设计人员:朱杰
本案业主是一对中年夫妇和女儿,喜欢最能代表当下生活态度的风格---现代轻奢。
设计师以“轻奢华、新时尚”为主旨,深度解析轻奢风格,营造空间氛围,结合实际需求,从多个角度诠释现代轻奢的特质
平面
/
展示
Plane display
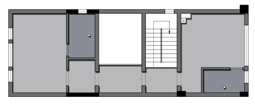
◎原始平面图及平面规划图
设计
/
展示
Design display
◎影视厅
玻璃柜门的酒柜,透露出红棕色的柜体材质,在一片静谧的灰色空间中,彰显出自己的色彩,同时与同色系的木制柜体相呼应。酒精壁炉的火焰,黑色大理石无一不在体现着,冷静与热情的强烈对比。
米色沙发统一色调,用肌理灰色地毯,黑色石材茶几,给人以沉稳之感。
墙面以灯带装饰,既能增加室内亮度,又能装饰空间打造神秘有层次的影音室。
圆叶细密,枝干优美的日本吊钟与爱马仕橙的柜体,是雅致与时尚的有效融合
◎-2F品酒区
◎-1F门厅
晶莹剔透的水晶吊灯错落有致,别致的造型灵动十足。灰色的“黑洞”抽象画给这个空间炫酷的艺术主调。
玻璃的扶手楼梯搭配黑色的扶手,楼梯下部内置灯光带,浪漫、优雅、大气。整个设计充满了层次感!
◎1F客厅
米白色的墙板与木制饰面,摒弃传统的中轴对称的手法,不规则的划分整个墙面,以不锈钢与线型壁灯装饰墙面,有着别样的精致与细腻。大小不同的黑白圆形墙饰,统一墙面色调。
白色的柜门,茶色玻璃,黑色的展示柜与大理石的台面共同构成整个电视墙面,在一片冰冷的颜色中,设计师用灯带与少量的木制格栅,温暖空间氛围。
◎1F客餐厅
白色大理石的桌面,驼色与棕色的椅子,无一不是在呼应着客厅的色调,材质。
◎主卧
在起居空间中,设计师以颜色划分墙面造型,铜色金属点缀空间,青碧色的床品,给空间注入生机。随时随地都可以在走廊过道的两侧打造收纳空间让整个家里秩序井然,玻璃的衣柜更是可以让女主人的衣物一览无余,方便选择。
◎次卧
以米白色为基调,适当的棕色与灰色填充画面,营造出温暖舒适的卧室环境。
整个房屋的设计都加入了“圆”的抽象造型元素,不仅象征了圆满还为我们的设计带来一丝意境的抽象艺术。
设计师
/
介绍
Designer introduction
图片查看更多设计师
个人简介
姓 名:朱杰
级 别:优秀设计师
从业年限:13年
擅长风格:现代,新中式,轻奢,港式,混搭
案例作品:恒大云门、新希望锦官阁、龙湖九里晴川、美城悦荣府、城南一号、城南华府、万达一号、北大资源、龙湖世纪峰景、桐梓林壹号西派澜岸、国色天香卢浮宫、长岸缇香别墅、置信丽都花园别墅、龙湾半岛、上海花园、中海名城、长城·半岛城邦、神仙树大院、鹭岛国际社区、保利花园等。
荣获奖项
四川百名优秀室内建筑师
建筑装饰及设计艺术博览会十大影响力设计师
设计名言
室内设计给每个空间赋予灵魂,给空间氛围更多的艺术创作思想,让美更加有智慧。
REVIEW
东易日盛·用心筑就美好生活
咨询热线|400-0060-251
最新优惠
!
了解最新优惠
客服
消息
收藏
下载
最近



























