查看完整案例

收藏

下载
三代同堂,六口之家,父母需要两间卧室,预留一个晚辈房,由于家里人员多,储蓄功
能也需要要考虑齐全,另外,家里常有朋友聚会,娱乐也要有。该项目通过设计延展业主生活方式的容器,联结情感的栖居之地用简洁大气的设计,展现别墅舒展通透的居住尺度。
生活的丰富性在这一刻灿然而至,家的审美风格也因此经得起岁月的推敲。
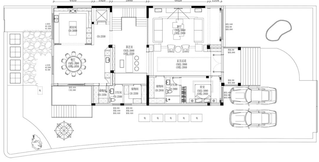
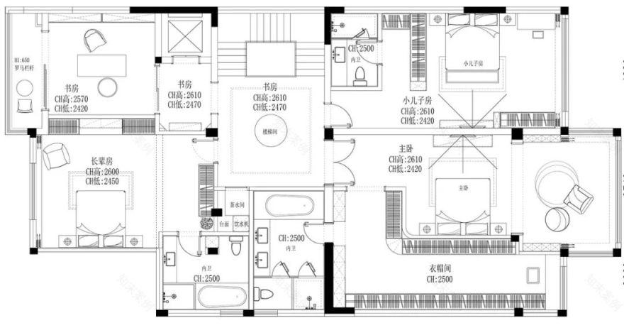
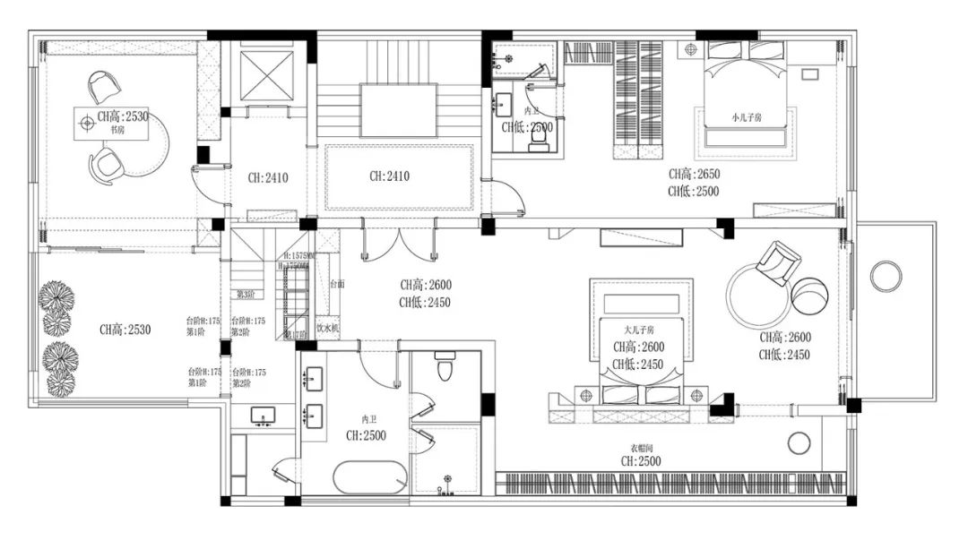
左右滑动查看-1F-3F平面
该项目为双拼别墅的房型,有些可以外扩的区域,原格局入门动线不合理,没有门厅区,整个建筑没有门头。因此在格局做了很大的改动,不仅扩大了增加了使用面积而且优化了动线,外观建筑重新设计。
客厅四周以原木色打造了线形墙体,减少了棱角的线条,增加了盈润的气息,给每一次休憩带来更多暖意。颇具包裹感的沙发,意式的气质,增加了空间的大气通透感。
墙面用棕色的原木,以及温润的大理石,打造了一份低奢的空间流动性。璀璨金和春辰绿的相汇,让蓬勃的自然生机在家中无声游走。
客厅过渡到餐厅空间,设计师利用半开放茶室来做一个空间的缓冲;利用台阶以及透明的玻璃展示架增加茶室空间的采光,同时也给空间增加了很多的氛围感。
1F整体空间演绎了“天圆地方”的设计理念,在餐厅空间,我们弱化了“棱角”多了几分圆润,也给空间舒展开来。整体硬装空间以淡雅为主,通过极简的设计,来突出软装的低奢。
设计师通过岛台的注入,给厨房设计了一个回字型的格局,两边的动线非常开阔,同时设计师在收纳方面,也做了细致的分类,隐藏在岛台的缓冲区域。
客厅餐厅的敞开化设计,使得整个空间舒展,保留直白的装饰语言和完整的户外光源来营造回家的简约氛围,也是餐厨空间的大气构成。
主卧的空间主要看到颜色基本能知道空间的所属人性格,这个卧室是业主的儿子的空间,酷爱手工,所以专门设计了属于他的操作台,以及设计了一个开放的展示柜,来展示它爱的成品。
在大住宅的空间里,卧室以“释放”空间为主,不做过多复杂的功能结合,以休闲,舒展为主要功能规划,保证休息空间的整齐与温暖。
设计师撷取了现代、雅致、温暖、以生活为轴心的居所空间理念倾力打造主卧的整体睡眠氛围。
与客餐厅同色的木饰面,做了不同的造型,在不同空间中展示不同的材质性格。
3F卧室是整个空间最大面积的休憩区,它集合了睡觉/休闲/水吧台以及桑拿,收纳等复合功能。
空间足够的情况下,让各个区域舒展;金属的冲击性与木材的包容性形成碰撞,曲线和直线的完美搭配,提升空间的层次感和精致度。
大卧室的套间里卫生间空间也无比宽敞,甚至融合了桑拿房,深色的石材,多了几分绅士质感。色彩明快通透,在视觉上具有扩大空间的效果,整体简洁大气。
本屋的地下室不是共有空间,而是私有空间,所以在处理地下室时,我们多了几分的私密和独有。
在-1F地下室,设计了一个影音室,还配置了星空顶,整个空间也做了降噪处理,地下室不透光的先天条件,给平时的娱乐享受做了一个空间的加持。
如需了解更多细节
硬装设计丨软装设计丨全案设计
地址:徐汇文定路200号盛源恒华大厦11层1106-1116室
荣誉 Honor
2024入刊杂志《时尚家居》
荣登上海电视台东方卫视《筑家有道》节目20240608期
第二届理想家IDEAT x ASKO入围奖
荣登ELLE家居廊、时尚家居、瑞丽家居、上海家具展
2024 中国台湾 TINTA金邸奖 居住空间/复层住宅类 提名奖
2024 中国台湾 TINTA金邸奖 居住空间/单层类 提名奖
第十三届国际空间设计大奖Idea-Tops居住空间设计 城市入围奖
2023 Hi-Design 第十届室内设计大赛“老房翻新奖”
2023 Hi-Design 第十届室内设计大赛“优秀奖”
2023 Hi-Design 第十届室内设计大赛“大区奖”
爱上美好生活家超级设计大赛 设计达人银奖
多乐士空间色彩设计大赛全国赛区 铜奖
2023 老宅新生设计奖·上海十大改造设计师
2022 营造家 FUTURE私宅坐标人物
2022 好好住年度推荐装修设计机构榜
2022 40UNDER40设计元中国(上海)设计杰出青年
2022 第九届设计本年度大赛-年度最具人气设计师奖
2022 第一届阿里巴巴每平每屋设计挑战赛TOP300
2022 Ariston Design Award 国际室内设计大赛180强
2022 Ariston Design Award 国际室内设计大赛温度设计机构奖
2022 Hi-Design 第十届室内设计大赛全国赛区“设计精英奖”
2022 Hi-Design 第十届室内设计大赛上海赛区“优秀奖”
2021 设计本年度最受业主喜爱设计师
2021 年度第八届日立室内设计大赛华东区新锐奖
2021 年度M+中国高端室内设计大赛TOP100
2021 年度“营造家奖”年度设计TOP500
2021 IHIDA国际人居空间设计-优秀住宅空间奖
2021 设计纪元40UNDER 40中国杰出青年奖
2021 年度HI-Design第九届室内设计大赛-上海设计精英奖
2021 年度HI-Design第九届室内设计大赛-优秀奖
2021 年度住小帮设计师大赛-华东赛区最佳改造奖
2020 国际空间设计'艾特奖'公寓设计优秀奖、入围奖
2020 设计本年度最受业主喜爱设计师
2020 年度“营造家奖”华东赛区TOP150
2019 年第九届'筑巢'别墅空间奖金奖
2019 年度“营造家奖”设计机构
2018 第二届中国室内设计新势力榜上海区TOP10
2018“营造家奖”年度设计师
2018 腾讯家居年度设计时尚盛典·金藤奖
2018 大众点评家居·最佳创意空间奖
2018 年度M+高端室内设计大赛年度优秀设计师
2018 大众点评新锐设计师·最佳软装搭配奖
2017 荣获 40 under 40 中国设计杰出青年
2016 篱笆网装修频道优质商户·鸿鹄设计
2016 第九届大金内装设计大赛上海区公寓组金奖、银奖
2015 央视《交换空间》栏目特邀企业
2013 第四届中国国际环境艺术设计大赛优秀奖
2012 年第二届国际环艺创新设计大赛一等奖
2011 第六届上海学院杯居住环境大赛别墅类金奖
2010 中国样板房大赛最佳规划奖
2009 上海鸿鹄设计成立
大众点评家居最佳创意空间奖
大众点评家居全国TOP4人气奖
大众点评新锐设计师最佳软装搭配奖
营造家 FUTURE私宅坐标人物
营造家奖年度人气设计师/机构
营造家奖华东赛区大户型设计TOP20
营造家奖华东赛区小户型设计TOP20
中国室内设计年度潜力设计师
腾讯家居年度设计时尚盛典·金藤奖
设计源·世界观丨华东赛区精英人物(梁志天颁发)
PCHOUSE AWARD私宅设计全国TOP100杰出设计机构
第8届国际空间设计大赛艾特奖金奖、铜奖
PChouse设计风尚奖、创新风格设计奖
M+中国高端室内设计大赛年度优秀设计师
家装‘匠筑美作’杯全国新锐设计师
第六届日立室内设计大赛全国二等奖(公寓组)
第十届大金内装设计大赛全国美宅设计公寓组铜奖
第十届大金内装设计大赛上海地区美宅设计金奖、银奖、别墅铜奖
第十届大金内装设计大赛上海赛区空间设计奖
第十二届大金内装设计大赛全国美宅设计(别墅)银奖 、公寓银奖、铜奖
第十二届大金内装设计大赛全国生活艺术公寓铜奖
第十二届大金内装设计大赛上海生活艺术(别墅)金奖 、公寓银奖
第十二届大金内装设计大赛上海美宅设计(别墅)银奖
△
可上下滑动查看更多
客服
消息
收藏
下载
最近





















































