查看完整案例

收藏

下载
用心感悟空间,与业主产生共鸣 打造契合心灵的家。
—— 拓展空间设计理念
寻找人文与自然的相得益彰,以自然之眼观景,以自然之景入镜。
一一 拓展空间软装搭配理念
解放碑记录着重庆历史与文化,支撑着重庆的过去与未来,是重庆核心的城市名片。作为西南地区政治、经济、文化中心,解放碑快速的发展并展示着她的文化底蕴与曼妙身姿。
本案业主作为典型的重庆妹子,深深地爱着这方故土,爱她的火辣、爱她的活力、爱她的热情... 并将这份热爱投身于生活当中,在城市中心找寻一个点,让各地人民可放眼眺望解放碑容貌,体验其文化底蕴,身处于此一同感受重庆的无限魅力。
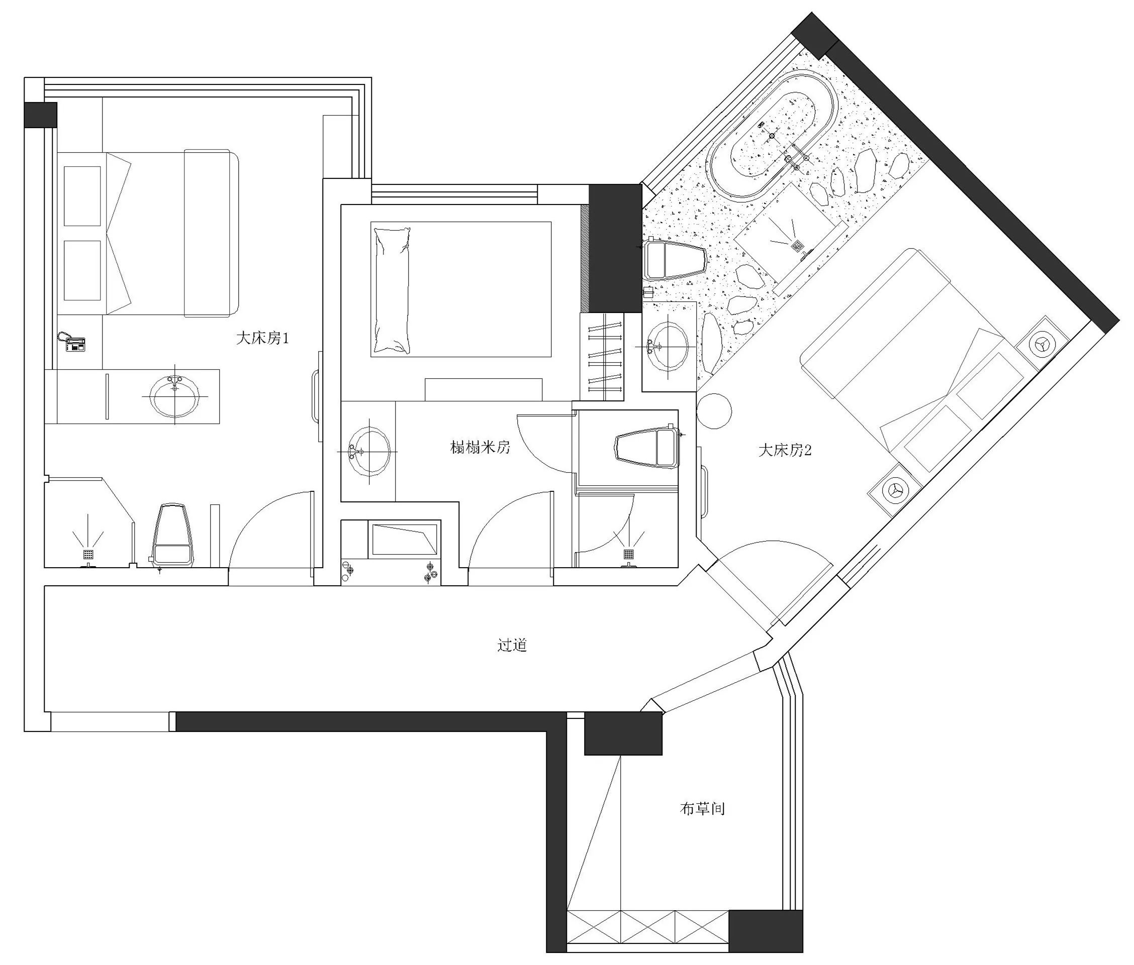
平面布置
设计师将一套60平米大小居室改成三间套房加一个置物间,融合地理位置的时尚感,以个性、前卫且舒适为基调进行布置。
黑白灰三色系的套房分配,高品质设备的配置,每一细节的处理,每一个角落的填充,让入住的客人能感受到解放碑的时尚、热情与舒适的环境。
高级黑
黑色的木纹砖、黑色的防水乳胶漆、黑色的石材、黑色的淋浴区砖、黑色的门、黑色的床头造型,神秘、酷炫。
金色饰品色调优雅简洁大方,一件件精心点缀进高雅的酷黑空间之中,不仅增添了亮点,还使环境更加精致、更具质感。
淋浴区、洗漱去、休息区形成于一条流水线,入室左侧的半墙修砌让进入套房的视线更加宽广,白色窗帘的配饰让空间更具延伸感。金色的质感提升套房的居住档次,暖暖的光线足以让远行的客人有个轻松舒适的居住环境。
典雅白
以白色为主题的套房以榻榻米形式呈现,嵌入式的电视设计节省了居住空间,也使空间更加整洁大气。洗漱台与床头连为一体,给活动腾出空间,大面留白墙面用金色元素加以点缀,洗漱镜于大白墙挂立延伸视线更具空间感。
床脚梳妆与阅读区,赏完窗外美景回过头,写一篇随手日记,记录心中点滴,这样一个小角落也成为一方心灵安放之处。淋浴、如厕区域用玻璃两两隔开,白色的天地墙清爽、整洁靓丽,给出门小憩的身体一个放松的空间。
暖色灯带让客人的半夜起立一个安全的方向。简单的配色、一丝跳跃的蓝色与金色制品的设计,
展示着十足的
时尚感,就连顶上的筒灯走线也是充满了设计感。
含蓄灰
内敛含蓄的灰色空间,少量的黑白配色,金色点缀,颇具质感、时尚感的空间体现出屋主对高品质生活的追求。
夜晚来临百叶帘外能观望解放碑的夜色,百叶帘拉开、投影幕布收起,伴着美景入眠。淋浴时,拉下帘子,侵入浴缸之中,洗去行程中的疲惫。玻璃的阻隔挡住洗浴时飞溅的水滴,留有一个干净整洁的就寝空间。
黑色木地板天、地、墙U型铺设,视觉上隔离出休息区,暖色光源的灯槽,让行程中的客人倍感温馨舒适。
水泥造型的洗漱台时尚美观又耐用,有一种身归大自然身心放松的感觉。用心的看,小小的凹槽、凹槽内的一束束光能看出设计师的倾心设计,亦是给客人每一个细节的体验。
项目地址:时代豪苑
项目用途:名宿
项目名称:上也艺术酒店
设计风格:简约/北欧
项目面积:60平米(套内)
愿岁月静好,愿有一间屋子
能避寒遮雨,有花有草有你
怀匠心
\
践匠行
\
做匠人
拓展空间设计
不止是独立设计工作室,也不仅仅是拥有原创设计、匠心独运有个性的设计团队,而是一种匠人匠心精神的承接,用行动诠释对装修事业的热爱与传承。
拓展空间设计始终坚持梦想,致力于研发创造设计,服务客户,为客户打造独一无二的居住空间。为更好的完成设计作品的整体性,且不安于设计原创性流失,综合客户设计与施工焊接两难,决定自创施工品牌 ——
梦马装饰
。把梦想作为前进的方向和动力,秉持着“怀匠心、践匠行、做匠人”的品牌理念,团队培训、系统管理、精细工艺、售后保障,为客户提供一个省时、省心、省钱、省力的家装体验。
客户写秀家帖时说过 "装修房子,把自己喜欢的元素、适合的物件一样一样的添置,给家满满的细节,为的就是某一天,慵懒宅家的日子,给自己美美的心情;亦或是奔波忙碌的日子,下班回到家里就卸下了一身的疲惫,感受舒适休闲、让人放松的氛围"。对于拓展而言,每一位客户都是我们的家人朋友,感客户所感,想客户所想,因而拓展空间设计致力于把每一套房子当成自己的家去创造设计,在施工过程中精细于每一寸,帮助客户营造一个真正属于自己想要的家。
我们相信,所有好运将与你不期而遇,愿拓展空间设计与你相伴。
M:18983080087
T:023 - 67127964
Q:13530104
重庆市渝北区新南路168号
龙湖moco 2栋808
(龙湖家悦荟A馆)
△
「长按关注
︱
拓展空间设计
怀匠心︱践匠行︱做匠人
」
以上内容皆为拓展空间设计原创。
客服
消息
收藏
下载
最近













































