查看完整案例

收藏

下载
在人生的旅途中并没有车站,也没有一个能够一劳永逸的地方。生活的真正乐趣在于旅行的过程。旅行会改变人的气质,让人的目光变得更加长远。
小区
:公园悦府
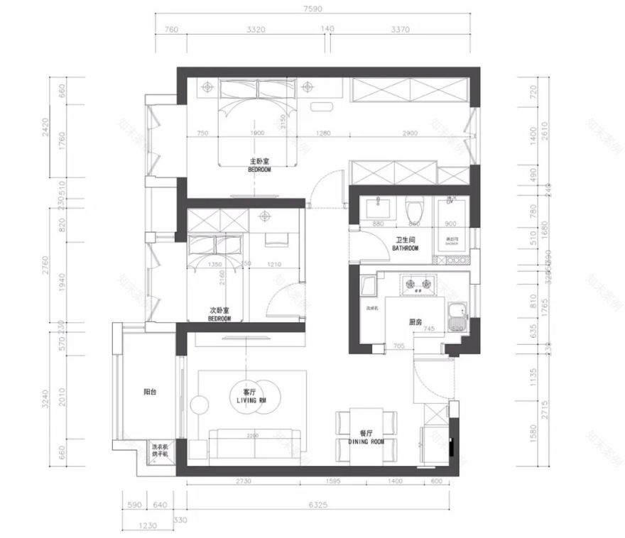
面积
:95平
风格
:现代简约
设计师
:纪苏聪
这是一套房子95平的小三房,因为是女生一个人住,首先做了个套间,主卧室还说做卧室,北面房间做衣帽间。南面的次卧室做个矮的榻榻米地台,作为游乐或者临时访客居住。
厨房做了个半开放式,厨房门口做了个吧台,平时喜欢冲咖啡,做糕点的空间就有了。
实景视频
实景案例
01
餐厅
入户玄关做了一个鞋柜,鞋柜下面镂空了一块进门可以换下来鞋子。门口玄关花砖做了个下沉,客餐厅都是木纹砖抬高。餐厅做个木饰面护墙板,起到了装饰性的作用。
客餐厅满吊顶靠背景墙一侧,做了线性轨道灯,烘托了背景的氛围。
02
客厅
03
01
卧室
主卧室没有放电视机的位置,做了投影仪电视机背景墙直接白墙。
04
卧室
次卧做了榻榻米地台,地台做了一圈灯带,榻榻米上做了衣柜,卧室的收纳空间依然保留。
05
01
厨房
厨房上下柜做了个拼色,木纹,白色配上花砖更显的小清新。
06
01
卫生间
07
阳台
阳台洗衣机和烘干机竖排放着,空余空间做了一整排柜子,放杂物和洗衣液清洗剂这些东西。
客服
消息
收藏
下载
最近




















