知末
知末
创作上传
VIP
收藏下载
登录 | 注册有礼

中央香榭-【设郎空间建设】

2018/11/19 11:57:59
查看完整案例
微信扫一扫
收藏
下载
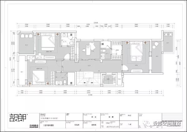
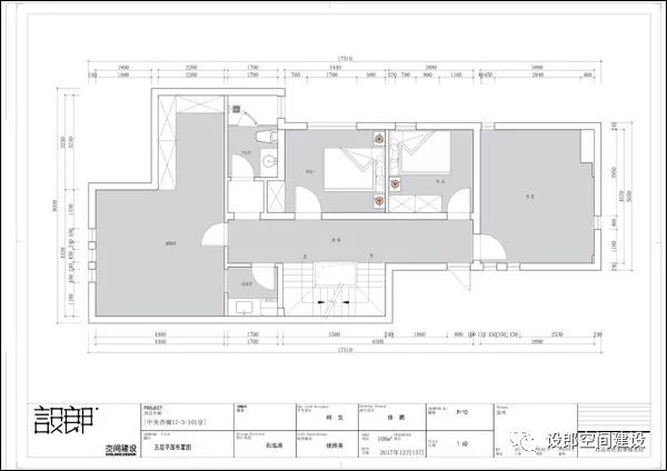
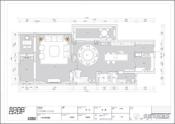
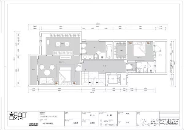
案例名称:中央香榭
案例面积:600
设计师:石泓涛、柯文
软装设计师:徐烨英
施工图设计:徐鹏
案例材料:大理石、仿古砖、拼花地板、樱桃木索色
中央香榭-【设郎空间建设】-7
中央香榭-【设郎空间建设】-8
中央香榭-【设郎空间建设】-9
中央香榭-【设郎空间建设】-10
中央香榭-【设郎空间建设】-11
中央香榭-【设郎空间建设】-12
中央香榭-【设郎空间建设】-13
中央香榭-【设郎空间建设】-14
中央香榭-【设郎空间建设】-15
中央香榭-【设郎空间建设】-16
中央香榭-【设郎空间建设】-17
中央香榭-【设郎空间建设】-18
南京喵熊网络科技有限公司 苏ICP备18050492号-4知末 © 2018—2020 . All photos and trademark graphics are copyrighted by their owners.增值电信业务经营许可证(ICP)苏B2-20201444苏公网安备 32011302321234号
客服
消息
收藏
下载
最近