查看完整案例

收藏

下载
本方案为年轻的两口之家,暂无小孩,注重居住空间的布局和使用功能上的完美结合。设计师希望家是一个安静的容器,居住者能享受这份安宁,面对都市飞快的生活节奏,有一段真正属于家人的幸福时光。
客厅去除一切繁琐与浮夸的装饰,尽可能地将复杂性统一在各种直线中用直线构筑,表达出灰调的氛围意象,即由量体、规律的线条将空间简化。
餐厅是家人情感的重要链接之处,采用餐客厅一体的设计手法,以流畅的动线连接各个空间。一以贯之,最大化利用空间。
以直线架构,来理解材质中的脉络,黑色线条的点缀让整体更为立体,再从墙面延伸到顶面,表达空间想述说的层次。
客厅和书房用玻璃材料结合,产生虚实相间的感觉,模糊与延伸空间的界限。
进入卧室,加入饰面板元素,在配合软装冷与暖之间获得平衡,让置身其中的人感到格外放松与惬意,挂画与屏风为空间增添几分艺术的美感。
儿童房帐篷、摆件、配饰的搭配,满满的童趣,更能体会家的温暖。
▲
电视背景墙效果图
▲
电视背景墙效果呈现
▲
客餐厅效果图
▲客餐厅效果呈现
▲餐厅效果图
▲餐厅效果呈现
▲主卧效果图一
▲主卧效果呈现一
▲主卧效果图二
▲主卧效果呈现二
▲轴测图
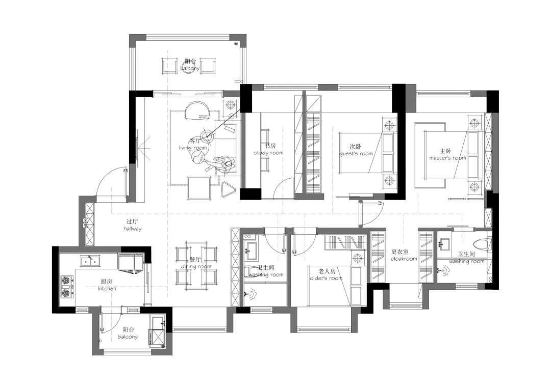
▲原始平面图
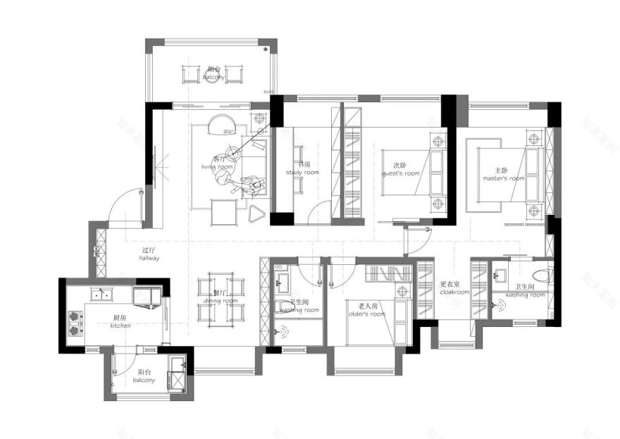
▲平面布局
图
项目名称/Project Location:富力湾私宅
项目面积/Area::132㎡
设计时间/Design Time:2019.5月
DESIGNER COVER
小编插话
如您喜欢
皋邸设
计
作品 想委托他们设计
我们帮您对接该设计机构!
联盟云渲染
特惠活动
客服
消息
收藏
下载
最近
































