查看完整案例

收藏

下载
设计单位:
Vo Trong Nghia Architects
地区:
越南 岘港市
面积:
143平方米
年份:
2015
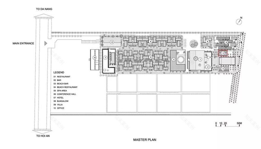
处于连接岘港市以及会安古镇的主要道路之旁,诺曼滨海旅游度假村坐落在离岘港国际机场16公里外的地方
诺曼度假村被设计为一个热带绿色度假村,充满现代化也显得安宁。该项目的任务是协调好80个平房、宾馆、6个VIP别墅以及其他20个别墅,
这个度假村的概念是通过友好的自然环境以及健康的活动(如水疗、瑜伽、沙滩运动等)为长住的游客提供身心上的疗养。为了营造一个完美的氛围使游客身心得到最大的放松,度假村的设计应用了绿色植物、天然石材以及竹子。
面向无尽的泳池,度假村坐落在沙滩旁,隔壁就是一个沙滩酒吧。
这个有遮蓬的半独立式开放空间的设计是为了给游客提供饮品以及欣赏沙滩景色。
这种斜顶屋建筑有着极其简单的结构,不会干扰到对景色的欣赏,而且能吸引游客在餐后到此小酌一杯。
酒吧遮蓬由竹子以及石材建成。石材部门容纳了酒吧的服务以及储藏功能。石墙也充当着承受竹制屋顶的一部分。屋顶的主要结构由8个竹制框架组成,
每个框架包含弯曲以及竖直的竹子,由竹钉和绳索固定。这些架构都垂直于沙滩建造,使得风能够贯穿整个酒吧,从而带来大海阵阵微风。
用于结构上的竹枝都是很自然地就地利用。整个过程包括用火烤弯、水浸以及烟熏。
为了取得最好质量的竹子,这个过程需要花费4个月的时间。之后,建筑结构预先在地面建好,增加了每个框架的精度并减少建造时间。这种建造方式被证明是十分有效的,并且在这个过程中建筑的质量也比较容易控制。屋顶采用的材料是茅草。这种材料伴随着建筑周遭的绿色景观创造了一个热带形象,也增强了度假村的休闲氛围。
客服
消息
收藏
下载
最近





















